**Key Features:**
- Luxurious new build, 4-bedroom detached home within an exclusive gated development in Stock
- High specification finishes including integrated Neff appliances and underfloor heating on the ground floor
- Open plan kitchen-living area with vaulted ceiling, ideal for family gatherings
- Generous rear garden with patio, offering high levels of seclusion
- Conveniently located with local amenities, schools, and scenic countryside nearby
- Chain-free availability and energy-efficient features with EV charging point
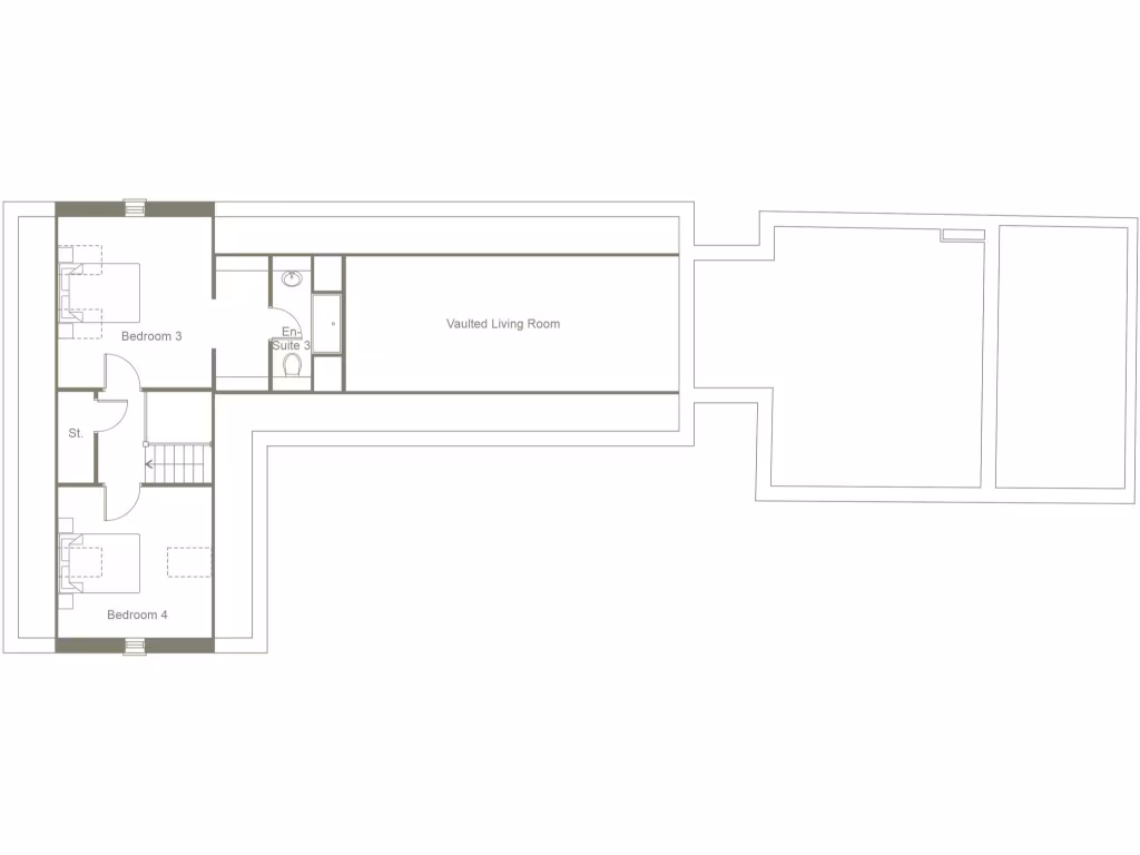
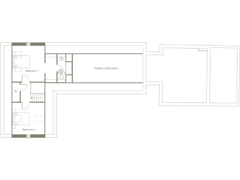
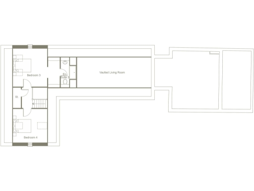
Introducing The Coach House, an exquisite detached property spanning approximately 1,900 square feet in the prestigious Farrows Farm gated development. This newly built home features a remarkable open plan layout, perfect for modern living, with an expansive kitchen, dining, and living area defined by high ceilings and luxury finishes. With four well-appointed bedrooms, each offering access to stylish en-suite bathrooms, this property provides both comfort and privacy for families or guests.
The beautifully landscaped garden, accessible through bifold doors from the kitchen, creates a charming outdoor space perfect for entertaining. Additional features include a garage equipped with an EV point and high-quality materials throughout, ensuring a sophisticated living experience. Nestled in the highly sought-after village of Stock, you benefit from a peaceful countryside lifestyle while remaining conveniently close to essential services and educational institutions. Don’t miss this unique opportunity to own a luxurious home in this desirable location—experience the perfect blend of modern luxury and serene living!
4 bedroom detached house for sale in The Coach House, Stock Road, CM4 — £1,195,000 • 4 bed • 4 bath • 1900 ft²
3 bedroom detached bungalow for sale in The Stables, Stock Road, CM4 — £995,000 • 3 bed • 3 bath • 1600 ft²
5 bedroom detached house for sale in The Oak Barn Stock Road, Stock, CM4 — £1,950,000 • 5 bed • 4 bath • 3000 ft²
3 bedroom bungalow for sale in The Stables, Stock Road, Stock, CM4 — £895,000 • 3 bed • 3 bath • 1600 ft²
4 bedroom detached house for sale in Mill Road, Stock, CM4 — £1,125,000 • 4 bed • 3 bath • 1973 ft²
4 bedroom detached house for sale in Common Road, Stock, Ingatestone, Essex, CM4 — £1,500,000 • 4 bed • 1 bath • 2379 ft²






































































































































