Spacious modern flat with private roof terrace and concierge services.
Chain free two-bedroom, two-bathroom apartment
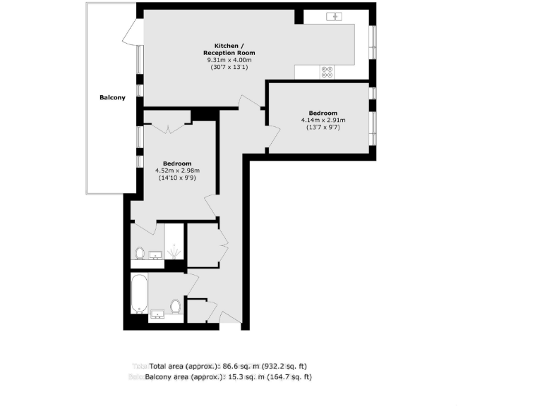
Bright, chain-free two-bedroom apartment in a modern New Cross development, offered with private roof terrace and concierge. At about 932 sq ft this is one of the larger two-bedroom layouts here, with two bathrooms, secure cycle storage and an L-shaped living area that opens to a balcony and the roof terrace. The 990-year lease gives long-term security for buyers.
Practical running costs are notable: an annual service charge of around £4,000 and a ground rent of £550. Heating is via a community scheme; check details and costs with providers. The building sits in an inner-city, cosmopolitan area with excellent mobile signal and fast broadband—appealing for remote-working tech professionals—but the immediate neighbourhood records higher crime and significant local deprivation, which may affect feel and resale in some segments.
Transport and local amenities are strong: New Cross and Deptford connections, independent cafés, bars and eateries are on the doorstep. Several well-rated local primary and secondary schools are within reach, helping family practicality. For buyers prioritising space, long lease length and outdoor private space in an urban setting, this apartment offers immediate move-in potential, but budget planning should include the service charge and ground rent.
2 bedroom apartment for sale in Barkwith House, Cold Blow Lane, New Cross, London, SE14 — £300,000 • 2 bed • 1 bath • 539 ft²
2 bedroom apartment for sale in Moulding Lane, New Cross, SE14 — £450,000 • 2 bed • 2 bath • 744 ft²
2 bedroom flat for sale in Moulding Lane, Deptford, London, SE14 — £460,000 • 2 bed • 2 bath • 878 ft²
2 bedroom flat for sale in Wharf Street, Greenwich, SE8 — £500,000 • 2 bed • 2 bath • 791 ft²
2 bedroom flat for sale in Moulding Lane, London, SE14 — £475,000 • 2 bed • 2 bath • 761 ft²
2 bedroom flat for sale in Besson Street, London, SE14 — £425,000 • 2 bed • 1 bath • 646 ft²


































