Chain-free plot with garage and large private garden, ideal for renovation buyers.
No upward chain — ready to complete without delay
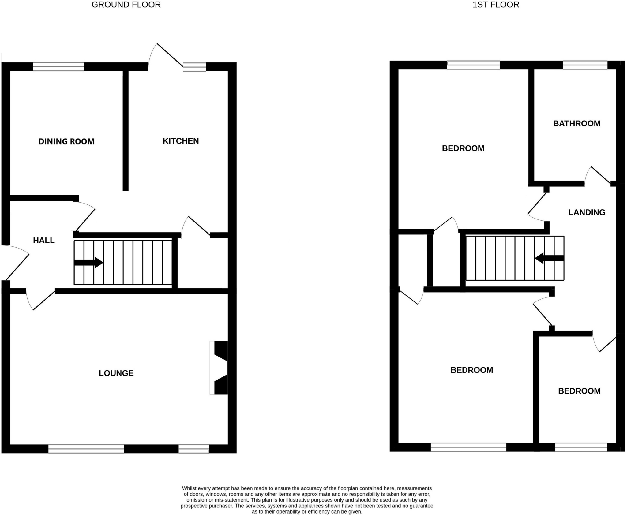
Set on a generous plot in central Sandy, this chain-free semi offers scope for improvement and immediate occupation. The ground floor features a 15ft lounge, separate dining room and fitted kitchen — a layout that works well for family life and entertaining. Outside there’s a single garage, driveway parking for one car and a larger-than-average enclosed rear garden offering good outdoor space.
The property is freehold with gas central heating, double glazing and mains services, and benefits from easy access to local schools, shops and the mainline station to London. At around 744 sq ft the house is compact but efficiently arranged across two floors, making it suitable for a small family or buyers seeking a renovation project with strong location appeal.
Important practical points: the home needs updating and modernisation throughout, cavity walls are assumed uninsulated and some refurbishment will be required to bring finishes up to contemporary standards. There is a single family bathroom and three modest bedrooms, so prospective buyers should factor renovation costs and the compact overall footprint into their plans.
For buyers looking to add value, this property’s plot, location and chain-free status provide a clear opportunity. Early viewings are recommended for those seeking a well-located starter/family home or a renovation project within easy reach of local transport links.
3 bedroom semi-detached house for sale in Swansholme Gardens, Sandy, SG19 — £349,950 • 3 bed • 1 bath • 1605 ft²
3 bedroom end of terrace house for sale in Laburnum Road, Sandy, SG19 — £285,000 • 3 bed • 1 bath • 628 ft²
3 bedroom detached house for sale in Coopers Close, Sandy, SG19 — £399,950 • 3 bed • 1 bath • 792 ft²
2 bedroom end of terrace house for sale in Longfield Road, Sandy, SG19 — £279,950 • 2 bed • 1 bath • 859 ft²
3 bedroom semi-detached house for sale in St. Neots Road, Sandy, SG19 — £385,000 • 3 bed • 2 bath • 1060 ft²
3 bedroom semi-detached house for sale in The Rookery, Sandy, Bedfordshire, SG19 — £350,000 • 3 bed • 3 bath • 915 ft²






















































