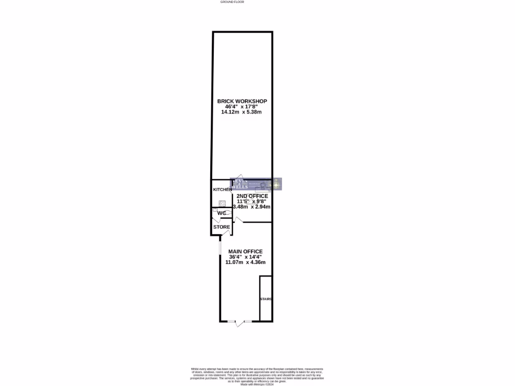
### Property Features:
- **Type:** Multi-use commercial and residential property
- **Main Office Size:** 36ft x 11’5
- **Workshop Area:** 35ft, with rear access
- **Yard/Parking:** Large 76ft area accessible via double gates
- **Residential Unit:** Three-bedroom flat rented until September 2025 at £1300/month
- **Location:** Close to shops, between Staines and Egham with easy access to London
### Summary:
Discover this versatile multi-use property that combines an expansive ground floor office space with a significant workshop and a separate residential unit. The main office, complemented by a well-sized workshop, offers ample room for a productive business setup. The 76ft private yard and parking promises convenience for both residential and commercial uses, making this property an attractive investment for entrepreneurs or families wishing to operate a business from home.
Upstairs, the three-bedroom flat is currently leased, providing an additional income stream until September 2025, perfect for those looking to invest while living on-site. With its traditional brick exterior and located in a mixed-use neighborhood close to local amenities, this property stands out in a desirable area between Staines and Egham. It’s not just a purchase; it’s a future with flexibility and potential. Don’t miss this opportunity to secure a rare property with a blend of residential comfort and commercial potential!
Commercial property for sale in Thorpe Lea Road, Egham, Surrey, TW20 — £600,000 • 3 bed • 1 bath • 700 ft²
Office for sale in 24-26 High Street, Sunningdale, SL5 0NG, SL5 — POA • 1 bed • 1 bath • 5891 ft²
High street retail property for sale in Guildford Street, Chertsey, Surrey, KT16 — £625,000 • 3 bed • 1 bath • 2291 ft²
Office for sale in Richmond Road, Twickenham, TW1 — £550,000 • 1 bed • 1 bath • 935 ft²
2 bedroom house for sale in Long Lane, Staines-Upon-Thames, TW19 — £375,000 • 2 bed • 1 bath • 1452 ft²
Office for sale in 98 Kew Road, London, TW9 2PQ, TW9 — £499,000 • 1 bed • 1 bath • 1342 ft²






































































