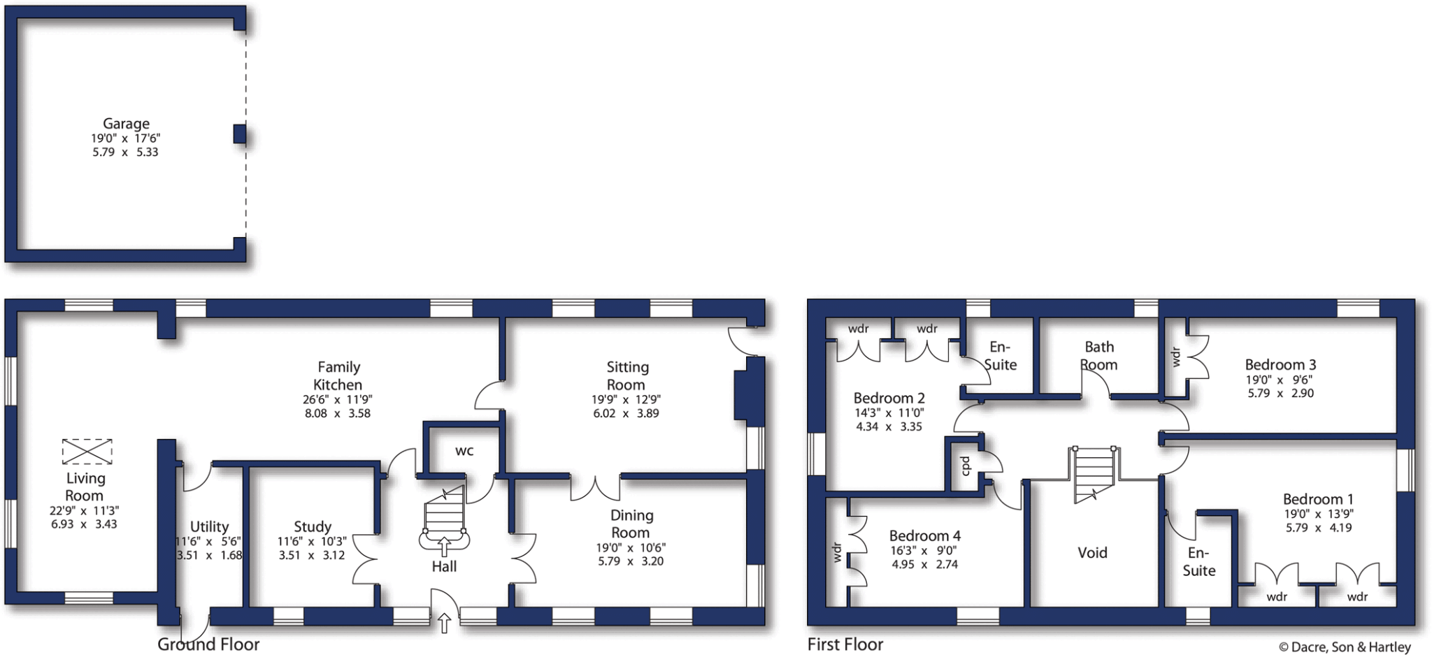
**Standout Features:**
- Stunning four-bedroom detached barn conversion
- Located in the tranquil Nidderdale Area of Outstanding Natural Beauty
- Expansive living space of 2,485 sq ft, including four reception rooms
- Luxurious kitchen with modern fittings and generous granite work surfaces
- Two en-suites and stylish house bathroom
- Beautifully landscaped gardens with outdoor seating areas
- Detached double garage with ample parking
- Chain-free and freehold tenure
**Potential Concerns:**
- Very low mobile signal and slow broadband speed
- Council tax band G could be a consideration for budget-conscious buyers
- Maintenance of the substantial garden expected
Discover a blend of elegance and comfort in this superb four-bedroom barn conversion. Spanning over 2,400 square feet and nestled in a peaceful rural setting, this spacious home features enchanting period details alongside modern luxury, including a beautifully designed kitchen and multiple reception areas perfect for entertaining or family living. The stunning landscaped gardens and additional parking offer a serene outdoor retreat amidst breathtaking views.
This idyllic property, built in 2003 with a charming stone exterior, sits within a small, exclusive community and enjoys easy access to the vibrant amenities of nearby Pateley Bridge. With the added potential of acquiring up to 27 acres of additional land through separate negotiation, this is an excellent opportunity for buyers looking for privacy and a chance to immerse themselves in nature. Although there are some concerns regarding mobile connectivity, the luxury and beauty of this home are undeniable. Act quickly, as homes in this beautiful region are in high demand!
3 bedroom detached house for sale in Foldshaw Lane, Harrogate, North Yorkshire, HG3 — £400,000 • 3 bed • 3 bath • 1300 ft²
4 bedroom detached house for sale in Middlesmoor, Harrogate, North Yorkshire, HG3 — £550,000 • 4 bed • 2 bath • 1547 ft²
5 bedroom detached house for sale in Padside, Harrogate, HG3 — £1,400,000 • 5 bed • 4 bath • 4504 ft²
4 bedroom country house for sale in Cote Hill Road, Felliscliffe, Harrogate, HG3 — £1,150,000 • 4 bed • 1 bath • 1964 ft²
6 bedroom detached house for sale in Dacre, Harrogate, HG3 — £1,200,000 • 6 bed • 3 bath • 2513 ft²
5 bedroom detached house for sale in Rookery Barn, Darley, Harrogate, North Yorkshire, HG3 — £865,000 • 5 bed • 3 bath • 3120 ft²










































































































