Well-presented one-bed, ready to move into near shops and beaches.
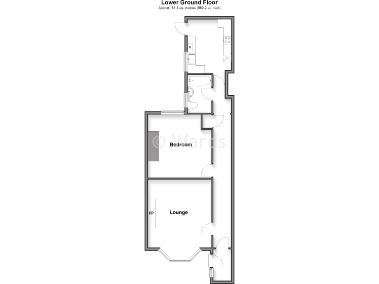
Lower ground (basement) one-bedroom flat with private rear garden
Set on the lower ground floor of a Victorian terrace, this one-bedroom flat is presented for immediate occupation and offers a generous living room, separate kitchen and a sunny rear garden. Its size and layout suit first-time buyers seeking a seaside base or landlords targeting rental demand close to beaches and local amenities.
The property is sold as share of freehold, benefits from mains gas central heating and fast broadband, and sits within walking distance of shops, restaurants, bus routes and the seafront. Council tax is very cheap and there is no flooding risk.
Buyers should note this is a lower ground / basement flat in a very deprived neighbourhood with a high local crime rate; the building has original solid brick walls (likely uninsulated) so energy efficiency may be poor and some buyers may wish to invest in insulation or cosmetic updating. Legal/title and fixture checks should be completed by your solicitor.
Overall this is a spacious, well-presented entry-level home with garden space and clear short-term rental or owner-occupier appeal, balanced by the neighbourhood profile and potential running-cost considerations.
2 bedroom flat for sale in Sweyn Road, Cliftonville, Kent, CT9 — £190,000 • 2 bed • 1 bath • 574 ft²
1 bedroom apartment for sale in Northdown Avenue, Margate, Kent, CT9 — £175,000 • 1 bed • 1 bath • 528 ft²
1 bedroom flat for sale in Eastern Esplanade, Cliftonville, Margate, Kent, CT9 — £195,000 • 1 bed • 1 bath • 501 ft²
1 bedroom flat for sale in Majestic Court, 10-12 Lewis Crescent, Margate, Kent, CT9 — £215,000 • 1 bed • 1 bath • 550 ft²
1 bedroom flat for sale in Athelstan Road, Cliftonville, Margate, Kent, CT9 — £70,000 • 1 bed • 1 bath • 915 ft²
1 bedroom maisonette for sale in Dane Road, Margate, Kent, CT9 — £190,000 • 1 bed • 1 bath • 474 ft²










































