Chain-free coastal flat with long lease and recent communal repairs.
Ground-floor one-bedroom with direct sea views
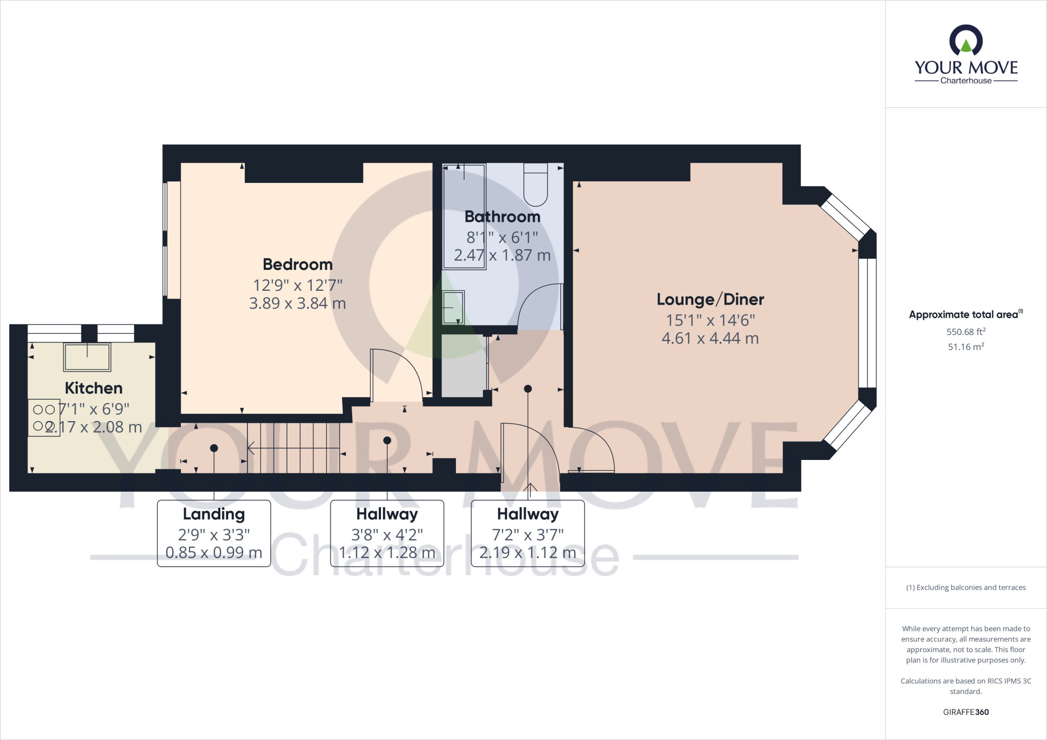
A ground-floor, one-bedroom flat with direct sea views and a very long lease — ideal for a first-time buyer seeking coastal living without chain delays. The living room’s high arched bay window fills the space with light and frames sunsets over the promenade. The building has had recent communal repairs (roof, balconies, external redecoration) which reduce immediate maintenance worry.
Internally the layout is traditional and straightforward: lounge/diner with bay window, separate fitted kitchen, double bedroom and a bathroom with electric shower. Heating is by electric room heaters and the property is on mains electricity only; there is no communal gas. Broadband speeds are reported slow, and the solid-brick construction likely means limited wall insulation, so running costs and comfort could be factors to manage.
Practical advantages include a share of the freehold, an exceptionally long lease (around 995–996 years), and a reasonable annual service charge of about £1,601. The flat is offered chain-free, making a quick completion possible. Downsides to note: the area records high crime rates and the neighbourhood is a mixed urban cultural area with signs of local deprivation; buyers should factor in safety and resale considerations.
Located a short walk from cliff-top paths, Walpole Tidal Pool and Northdown Road’s shops and cafés, this apartment suits someone wanting an affordable seaside base or coastal holiday home with low entry barriers. It’s a practical, characterful property with clear potential, but buyers should budget for heating, possible insulation work and expect slower internet service.
 2 bedroom flat for sale in Third Avenue, Margate, CT9 — £200,000 • 2 bed • 1 bath • 689 ft²
 2 bedroom flat for sale in Third Avenue, Margate, CT9 — £200,000 • 2 bed • 1 bath • 689 ft² 1 bedroom flat for sale in Eastern Esplanade, Cliftonville, Margate, Kent, CT9 — £195,000 • 1 bed • 1 bath • 501 ft²
 1 bedroom flat for sale in Eastern Esplanade, Cliftonville, Margate, Kent, CT9 — £195,000 • 1 bed • 1 bath • 501 ft² 1 bedroom flat for sale in Ethelbert Crescent, Margate, CT9 — £175,000 • 1 bed • 1 bath • 634 ft²
 1 bedroom flat for sale in Ethelbert Crescent, Margate, CT9 — £175,000 • 1 bed • 1 bath • 634 ft² 2 bedroom apartment for sale in Eastern Esplanade, Cliftonville, Margate, Kent, CT9 — £230,000 • 2 bed • 1 bath • 786 ft²
 2 bedroom apartment for sale in Eastern Esplanade, Cliftonville, Margate, Kent, CT9 — £230,000 • 2 bed • 1 bath • 786 ft² 2 bedroom flat for sale in Royal Esplanade, Margate, Kent, CT9 — £300,000 • 2 bed • 2 bath • 663 ft²
 2 bedroom flat for sale in Royal Esplanade, Margate, Kent, CT9 — £300,000 • 2 bed • 2 bath • 663 ft² 1 bedroom flat for sale in Northumberland Avenue, Margate, CT9 — £120,000 • 1 bed • 1 bath • 699 ft²
 1 bedroom flat for sale in Northumberland Avenue, Margate, CT9 — £120,000 • 1 bed • 1 bath • 699 ft²






















































