Quiet hamlet location with large garden and garage, ideal for downsizers.
Two double bedrooms with vaulted main bedroom
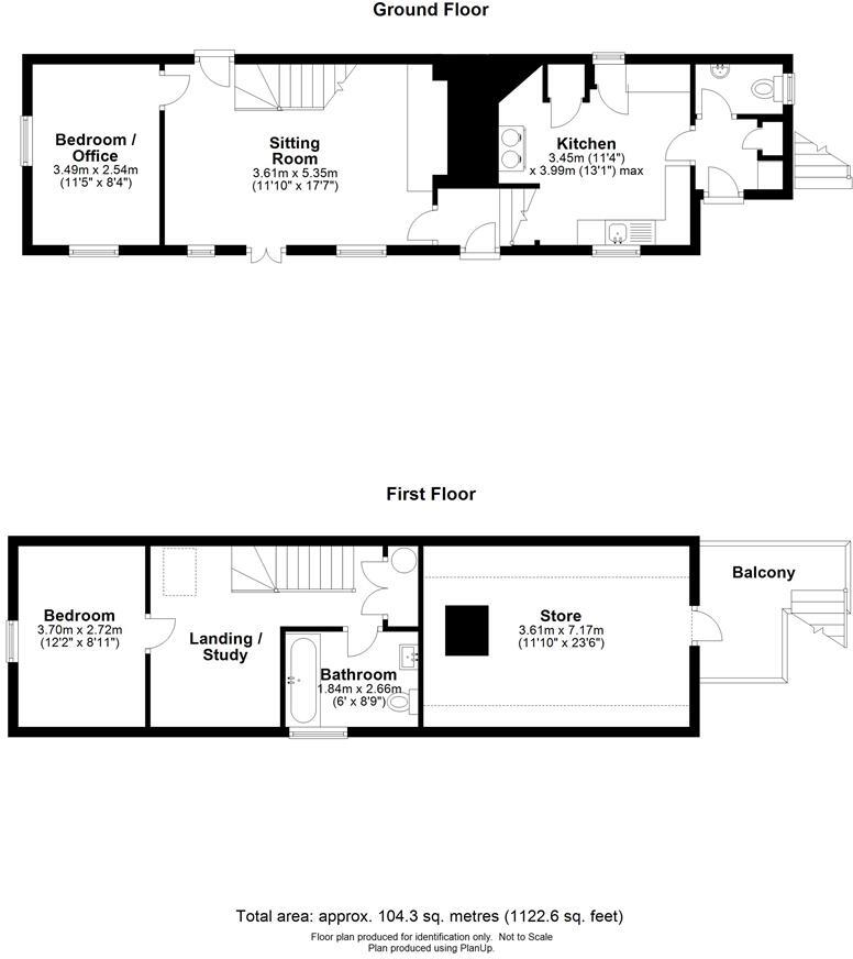
A charming two-bedroom cottage set in a peaceful rural hamlet, this timber-framed property blends traditional character with practical upgrades. The sitting room features exposed beams, a stone fireplace and a wood burner, while double-glazed windows and recently fitted PV panels reduce running costs. The generous plot includes a productive vegetable garden, polytunnel, fruit trees, driveway parking, garage and an open-fronted store.
The layout works well for downsizers or a small family: a ground-floor bedroom or home office, kitchen with oil-fired Rayburn and adjacent utility/cloakroom, plus a first-floor principal bedroom with vaulted ceiling and a landing with study space. A useful loft/store is accessible from a new balcony. Services include mains water and electricity, oil central heating, private drainage replaced in 2022, and fast broadband suitable for remote working.
Notable practical points are straightforward: heating is oil-fired (non-community) and the walls are timber-framed with assumed little or no original insulation, which could mean higher heating demand without further internal/external works. The property is freehold, lies in a very low-crime, remoter rural community and is offered with vacant possession.
This home will suit buyers seeking character, space and productive gardens in a quiet countryside setting. There is scope to improve energy efficiency and to modernise finishes while retaining period features, offering both immediate comfort and future value potential.
3 bedroom detached house for sale in Almeley, Herefordshire, HR3 — £435,000 • 3 bed • 2 bath • 1165 ft²
3 bedroom detached house for sale in Almeley, Herefordshire, HR3 — £395,000 • 3 bed • 2 bath • 1045 ft²
3 bedroom cottage for sale in Mansel Lacy, Hereford, HR4 — £650,000 • 3 bed • 3 bath • 1608 ft²
5 bedroom detached house for sale in Almeley, Herefordshire with annex, HR3 — £600,000 • 5 bed • 2 bath • 2816 ft²
4 bedroom semi-detached house for sale in Kinnersley, Hereford, HR3 — £499,995 • 4 bed • 2 bath • 1639 ft²
3 bedroom cottage for sale in Great Oak, Eardisley, Herefordshire, HR3 — £400,000 • 3 bed • 1 bath • 1477 ft²






































































