Spacious rural home with large gardens and garage, no onward chain.
Detached three-bedroom Tudor-style cottage with character features
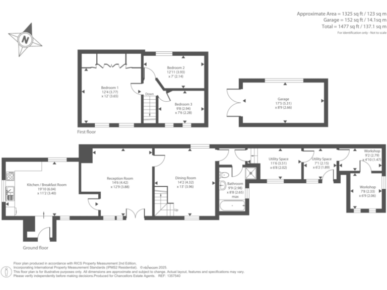
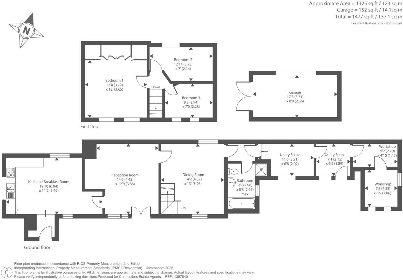
Set in the quiet hamlet of Great Oak, this detached three-bedroom cottage combines Tudor character with practical family living. The living room’s inglenook fireplace, exposed beams and French doors create a comfortable focal point, while the open-plan kitchen/breakfast room with an Aga suits everyday family cooking and weekend gatherings.
Outside, private wrap-around lawns, mature shrubs and a large plot offer safe outdoor space for children and pets, plus scope for a vegetable garden or play area. Driveway parking, a garage and attached workshops give generous storage and hobby space. The sale is offered with no onward chain for a quicker move.
Practical points: heating is oil-fired via boiler and radiators, and there is double glazing though the installation date is unknown — these are items buyers may wish to confirm. The house has one bathroom on the ground floor with a separate shower; families may prefer to consider whether additional bathroom facilities are required. Overall, this sizeable, characterful cottage in a very low-crime rural location will suit buyers seeking country living with roomy gardens and versatile outbuildings.
3 bedroom cottage for sale in Great Oak, Eardisley, Hereford, HR3 — £525,000 • 3 bed • 2 bath • 1459 ft²
3 bedroom detached house for sale in Eardisley, Hereford, HR3 — £375,000 • 3 bed • 2 bath • 1312 ft²
3 bedroom detached house for sale in Eardisley, Hereford, HR3 — £525,000 • 3 bed • 1 bath • 1584 ft²
2 bedroom cottage for sale in Almeley Wootton, Herefordshire, HR3 — £275,000 • 2 bed • 1 bath • 1513 ft²
3 bedroom cottage for sale in Woodseaves, Eardisley, Hereford, HR3 — £350,000 • 3 bed • 1 bath • 1162 ft²
2 bedroom cottage for sale in Coombes Moor, Presteigne, Herefordshire, LD8 — £400,000 • 2 bed • 1 bath • 1076 ft²














































































