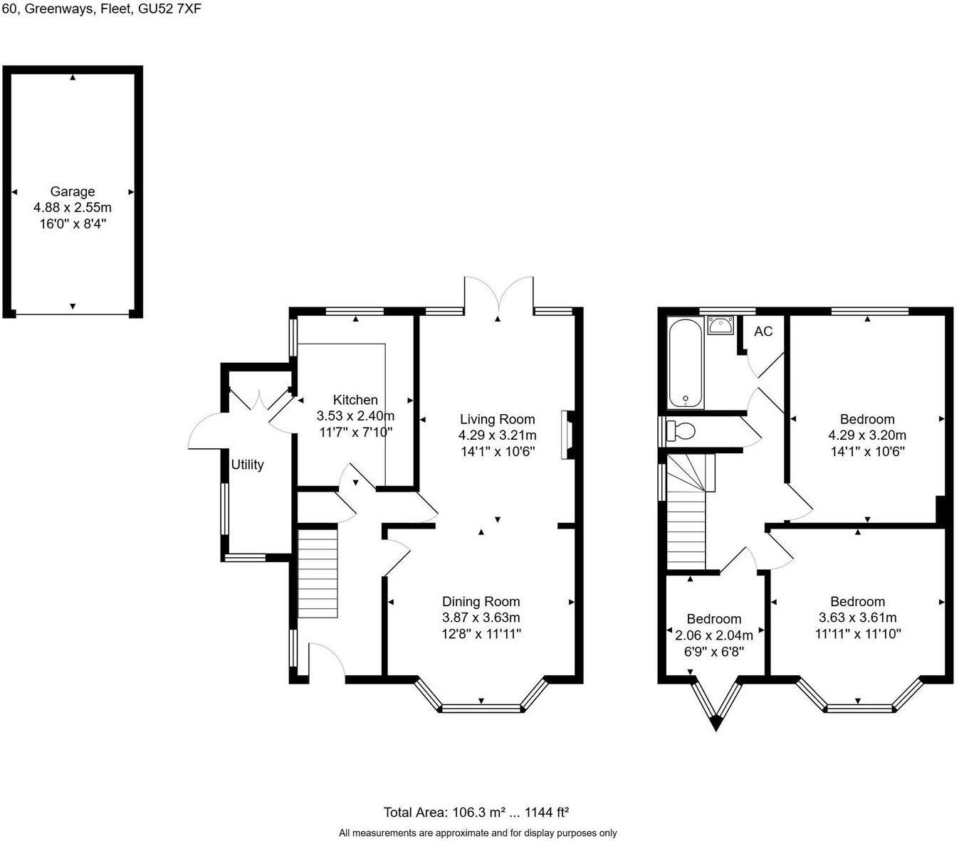
**Standout Features:**
- No onward chain
- Attractive 1960s semi-detached home
- Three spacious bedrooms
- Two reception rooms with a bay window and fireplace
- Functional kitchen with separate utility room
- Garage and off-road parking
- Enclosed rear garden with patio and lawn
- Top-rated local schools within catchment area
Situated in the sought-after Courtmoor area of Fleet, this charming 1960s semi-detached house offers spacious living and a family-friendly layout, perfect for investors or growing families. With three bedrooms, two generous reception rooms, and a well-equipped kitchen leading to a convenient utility area, there's plenty of room for comfortable living and entertaining. The property’s bright interiors include a lovely dining room featuring a bay window, and a living room with a cozy fireplace and sliding doors that open to an enclosed rear garden, ideal for summer gatherings.
This home benefits from a lovely community atmosphere and is within reach of top-rated schools, including Heatherside Infant and Junior Schools, making it perfect for families seeking quality education for their children. Fleet's vibrant town center, with shops, bars, and restaurants, is just a short drive away, while local parks and paths cater to outdoor enthusiasts.
While the property holds fantastic potential, it features double glazing installed before 2002, which may require updates, and the gas boiler and radiators need regular maintenance. With off-road parking and a garage, convenience is ensured. This cherished family home promises a blend of comfort and investment potential—don't miss your opportunity to make it yours!
3 bedroom semi-detached house for sale in Fairmile, Fleet, GU52 — £475,000 • 3 bed • 2 bath • 1055 ft²
3 bedroom semi-detached house for sale in Greenways, Fleet, GU52 — £490,000 • 3 bed • 1 bath • 1092 ft²
3 bedroom detached house for sale in Carthona Drive, Fleet, GU52 7SF, GU52 — £625,000 • 3 bed • 2 bath • 1243 ft²
3 bedroom semi-detached house for sale in Haywood Drive, Fleet, GU52 — £525,000 • 3 bed • 2 bath • 1141 ft²
4 bedroom detached house for sale in Reading Road South, Fleet, GU52 7TD, GU52 — £650,000 • 4 bed • 2 bath • 1728 ft²
3 bedroom semi-detached house for sale in Greenways, Fleet, Hampshire, GU52 — £485,000 • 3 bed • 1 bath • 936 ft²






































































