Charming three-bedroom cottage with large garden and parking, offered with no onward chain.
Detached three-bedroom cottage on a private drive
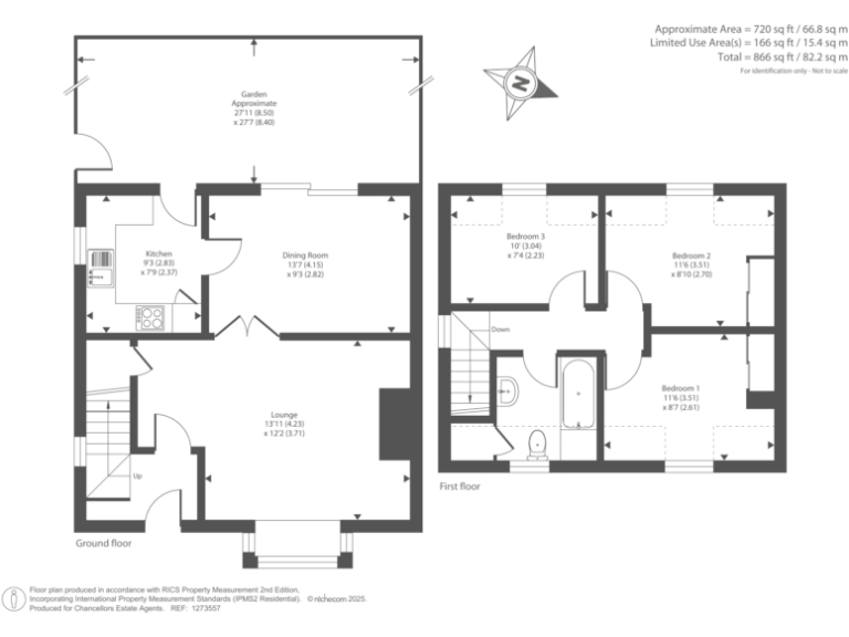
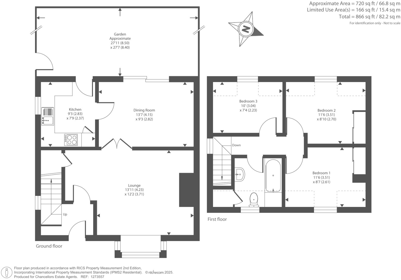
This detached three-bedroom cottage sits at the end of a private drive in Clanfield, set within a very large plot and mature, enclosed rear garden. The layout is traditional with a lounge, separate dining room and kitchen, offering comfortable family living across approximately 886 sq ft. Allocated off-street parking and no onward chain make it a straightforward purchase for buyers seeking a village home.
The property retains period character including a stone fireplace, dormer windows and rustic exterior, while benefiting from double glazing installed post-2002. Heating is via electric storage heaters and the walls are solid brick with no installed cavity insulation, so energy performance may be modest and further insulation work could be desirable. Flooding risk in the area is classed as medium, which should be checked by buyers’ insurers and surveyors.
This cottage will suit families or buyers looking for a characterful village home with scope to modernise. Local amenities include a primary school rated Good, village services and regular bus links; Faringdon Community College is the nearest secondary. The sale is freehold and offered with no onward chain, allowing a quicker move for the successful purchaser.
2 bedroom semi-detached house for sale in Main Street, Clanfield, Bampton, OX18 — £325,000 • 2 bed • 1 bath • 689 ft²
3 bedroom detached house for sale in Main Street, Clanfield, OX18 — £500,000 • 3 bed • 2 bath • 1158 ft²
4 bedroom detached house for sale in Bushey Drive, Clanfield, OX18 — £850,000 • 4 bed • 3 bath • 2874 ft²
4 bedroom detached house for sale in Mill Lane, Clanfield, Bampton, OX18 — £500,000 • 4 bed • 2 bath • 1431 ft²
3 bedroom end of terrace house for sale in Mill Lane, Clanfield, Bampton, Oxfordshire, OX18 — £340,000 • 3 bed • 2 bath • 1044 ft²
3 bedroom terraced house for sale in Mill Lane, Clanfield, OX18 — £360,000 • 3 bed • 2 bath • 856 ft²






































































