Charming historic home with a secret 50ft garden and a powered garden office.
Freehold Georgian cottage with original period features
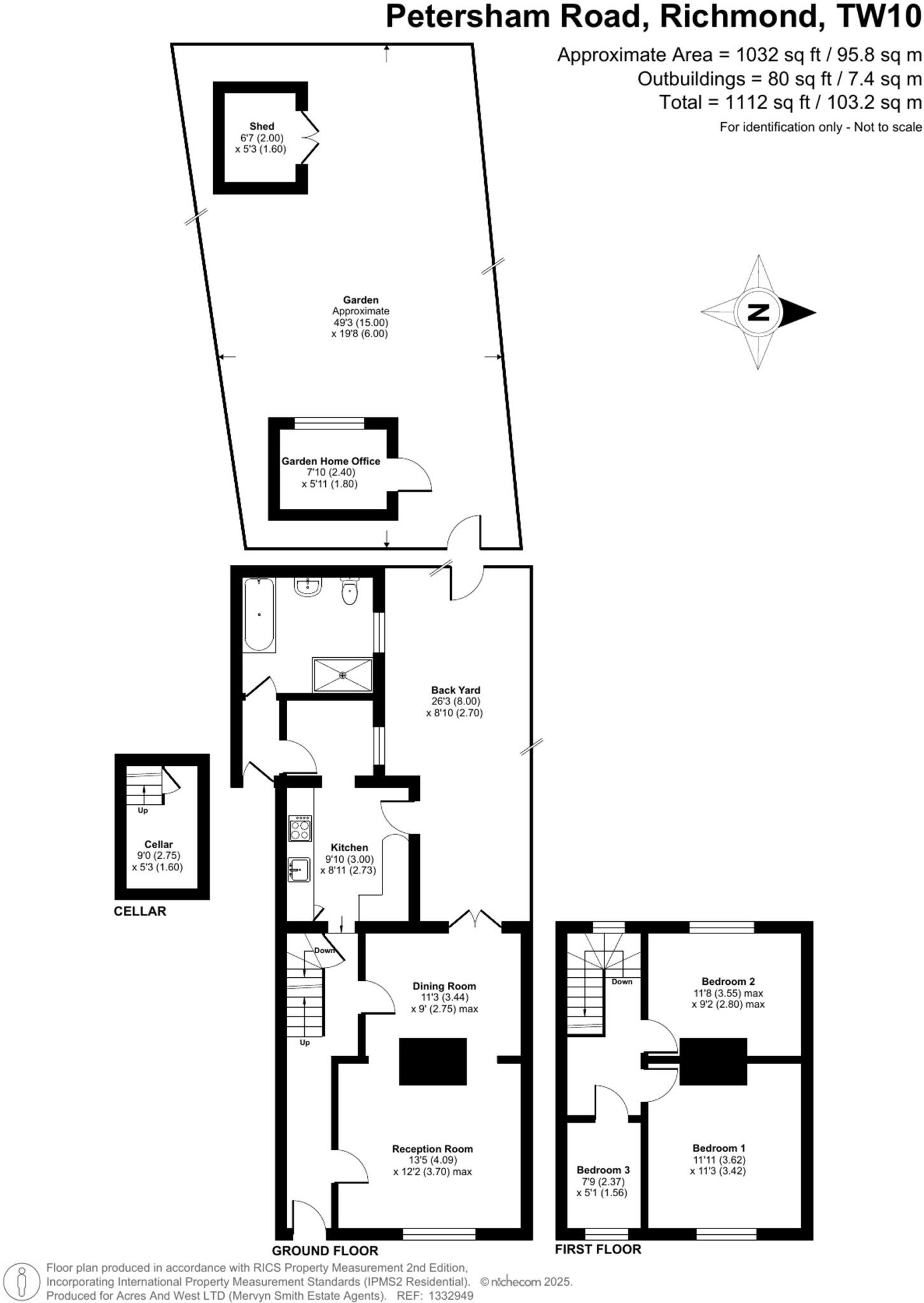
Three bedrooms — two spacious doubles
Large approx. 50ft x 25ft garden across a quiet lane
Converted insulated outbuilding with power, used as a home office
Separate cellar plus two lofts for significant storage
Handmade kitchen with Neff and Miele appliances
Timber frame (no insulation assumed) — potential upgrade required
On-street parking only; single main bathroom; council tax expensive
A beautifully preserved Georgian cottage on Petersham Road that balances period charm with thoughtful modern upgrades. The house offers three bedrooms (two generous doubles), oak parquet floors, exposed timber beams and acoustic Georgian-style double glazing with café shutters — a comfortable, characterful home for a family or professionals who value atmosphere and proximity to green spaces.
Storage is a strong feature: a separate cellar plus two lofts and bespoke built-ins mean space for bikes, seasonal items and everyday clutter. The standout outdoor asset is the private allotment-style garden (approx. 50ft x 25ft) located across a quiet lane, with granite cobbles, fencing and a powered, insulated outbuilding currently used as a home office — ideal for remote working or entertaining.
Practical fittings are high quality: a handmade kitchen fitted with Neff and Miele appliances, and a large CP Hart bathroom with a sunken bath and rainforest shower. The property is freehold, close to Ham House, riverside walks, good schools and reliable transport links, making it well placed for family life and professionals seeking a quieter pocket of Richmond.
Buyers should note a few material considerations. The house is timber-framed and records indicate no built-in insulation (assumed), so buyers may want to budget for thermal improvements. There is one main bathroom and parking is on-street only. Council tax is described as expensive. Overall, the cottage offers rare historic character and substantial garden space but will need routine maintenance and selective upgrading to optimise comfort and running costs.
2 bedroom cottage for sale in Sandpits Road, Richmond, TW10 — £775,000 • 2 bed • 1 bath • 732 ft²
3 bedroom terraced house for sale in Clifford Road, Richmond, TW10 — £850,000 • 3 bed • 2 bath • 1477 ft²
3 bedroom end of terrace house for sale in Forge Lane, Richmond, TW10 — £1,100,000 • 3 bed • 2 bath • 1195 ft²
5 bedroom semi-detached house for sale in Ham Street, Richmond, TW10 — £1,425,000 • 5 bed • 2 bath • 1500 ft²
4 bedroom terraced house for sale in Murray Road, Richmond, TW10 — £750,000 • 4 bed • 1 bath • 1087 ft²
3 bedroom flat for sale in Petersham Road, Richmond, TW10 — £1,350,000 • 3 bed • 2 bath • 1382 ft²














































































