**Standout Features:**
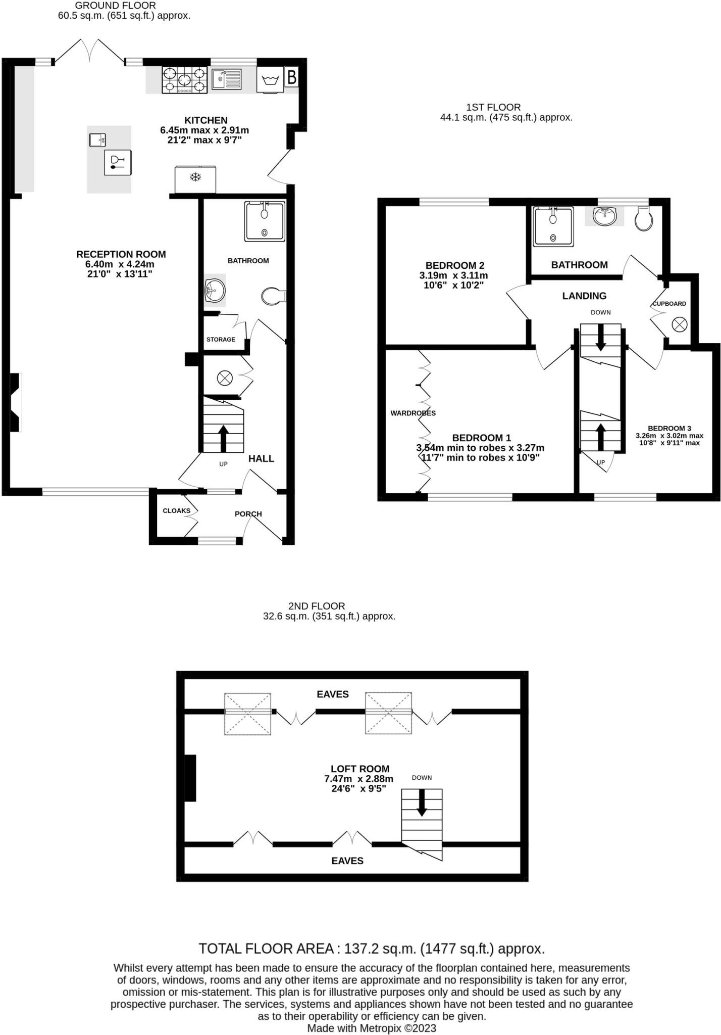
- Recently remodeled and extended 3-bedroom terraced house
- 2 modern bathrooms with dedicated hot water store
- Spacious 21 ft open-plan reception room with fireplace
- Generous 21 ft extended kitchen with range cooker and island workstation
- Loft room over 24 ft, offering extra space and potential
- Close proximity to highly-rated schools (including Ofsted ‘Outstanding’ Grey Court School) and local amenities
- Garden with electricity and outside taps
**Concise Summary:**
Discover this beautifully renovated terraced home boasting 3 spacious bedrooms, 2 modern bathrooms, and a unique loft room, making it ideal for families seeking a blend of comfort and style. The impressive 21 ft open-plan reception area features a cozy fireplace, seamlessly connecting to a generously sized extended kitchen equipped with top-of-the-line appliances, perfect for culinary enthusiasts and entertaining guests. Situated in a highly desirable neighborhood, just moments from excellent schools and picturesque green spaces like Ham Copse, this property offers both convenience and tranquility.
While the home is in excellent condition with recent refurbishments, it provides a canvas for personal touches to make it uniquely yours. With a modest front garden and a manageable outdoor space, you can enjoy low-maintenance living, making it perfect for busy families or professionals. Priced competitively at £850,000, this property combines space, location, and potential—a rare find that won't last long in this affluent community.
3 bedroom terraced house for sale in Sandpits Road, Richmond, TW10 — £850,000 • 3 bed • 1 bath • 1406 ft²
5 bedroom detached house for sale in Petersham Road, Richmond, TW10 — £3,500,000 • 5 bed • 5 bath • 3510 ft²
5 bedroom semi-detached house for sale in Petersham Road, Richmond, TW10 — £3,150,000 • 5 bed • 4 bath • 2794 ft²
3 bedroom terraced house for sale in Sheridan Road, Richmond, TW10 — £695,000 • 3 bed • 2 bath • 901 ft²
3 bedroom house for sale in Mowbray Road, Richmond, TW10 — £725,000 • 3 bed • 1 bath • 791 ft²
4 bedroom terraced house for sale in Murray Road, Richmond, TW10 — £750,000 • 4 bed • 1 bath • 1087 ft²






























































































