Compact investment apartment with parking and low-crime location.
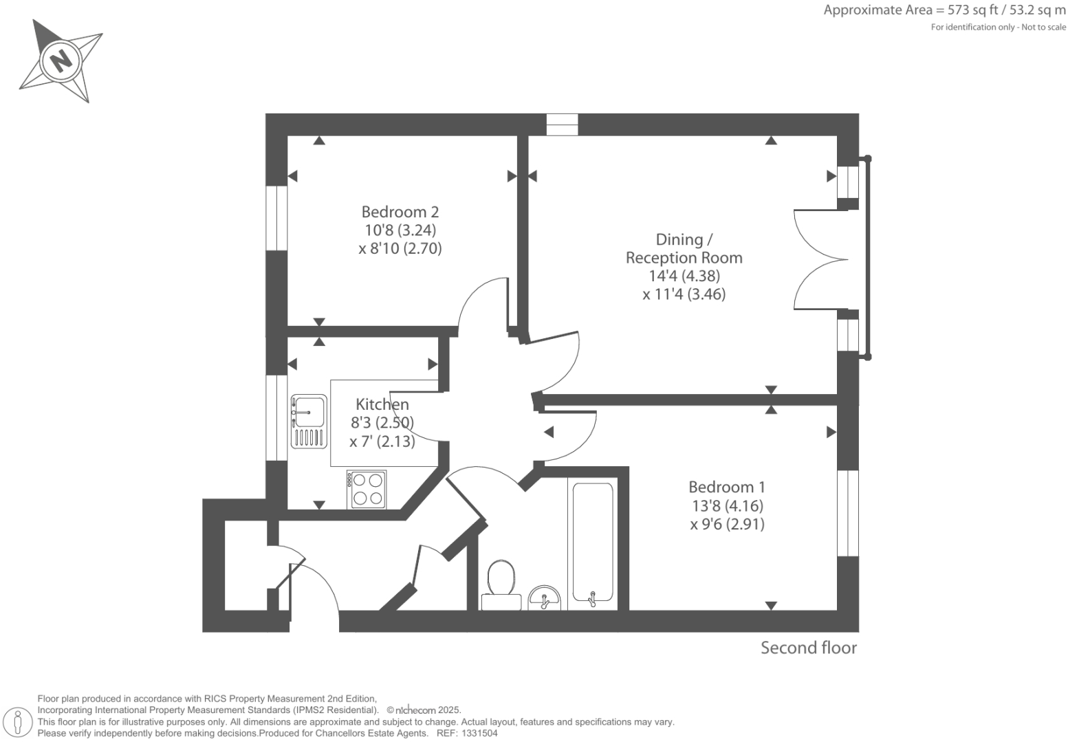
Top-floor two-bedroom apartment, c.573 sq ft
Juliette balcony off living/dining room
Allocated off-street parking
No private garden or garage; communal hallway
Electric storage heating — potentially higher running costs
Leasehold: 125 years from 01/01/2000 (c.94–100 years remaining)
Small overall size; suited to rental occupancy or first-time investor
Average broadband; excellent mobile signal
A compact two-bedroom top-floor apartment presented as a straightforward investment opportunity in Thatcham. The flat offers a living/dining room with a Juliette balcony, a separate kitchen, two bedrooms and a single bathroom across about 573 sq ft — a size that suits rental demand for couples or sharers. Allocated off-street parking and low local crime support steady tenant appeal.
The building is modern (constructed c.1996–2002) with double glazing and cavity wall insulation; main heating is electric storage heaters, which can mean higher running costs and may influence tenant profiles. Broadband speeds are average and mobile signal is excellent — practical for many renters. There is no private garden or garage; communal areas are shared.
The property is leasehold: the original term is 125 years from 01/01/2000 (records indicate roughly 94–100 years remaining). Prospective investors should review the lease length, service charges and any management arrangements before committing. Viewing is recommended to assess condition and yield potential.
2 bedroom ground floor flat for sale in Tarn Howes Close, Thatcham, RG19 — £170,000 • 2 bed • 2 bath • 656 ft²
2 bedroom flat for sale in Thatcham, Berkshire, RG19 — £200,000 • 2 bed • 2 bath • 947 ft²
2 bedroom flat for sale in Thatcham, Berkshire, RG18 — £215,000 • 2 bed • 1 bath • 606 ft²
1 bedroom flat for sale in London Road, Thatcham, RG18 — £179,950 • 1 bed • 1 bath • 529 ft²
2 bedroom apartment for sale in Clerewater Place, Thatcham, Berkshire, RG19 — £210,000 • 2 bed • 1 bath • 598 ft²
2 bedroom apartment for sale in Chapel Street, Thatcham, RG18 — £220,000 • 2 bed • 1 bath • 579 ft²














































































