Affordable entry flat with parking and a long lease near local shops and schools.
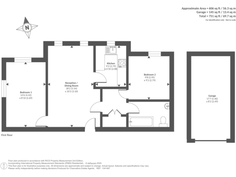
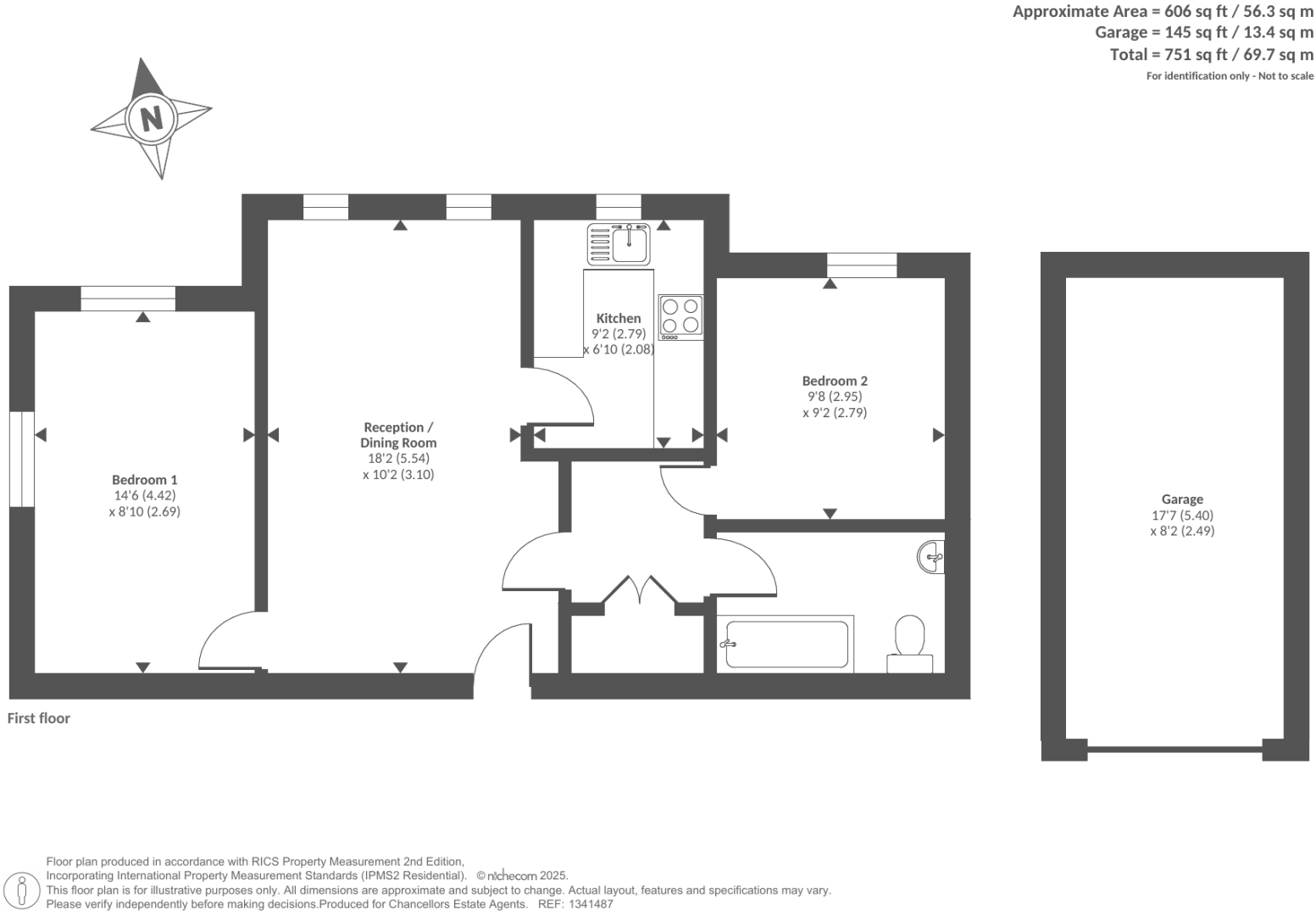
Two double bedrooms within 606 sq ft overall
Allocated parking plus separate garage included
130-year lease from July 2025 (long lease)
Low annual service charge of £600
First-floor position with communal outdoor space
Electric storage heaters — may be costly or require upgrade
Small overall internal size; suited to compact living
Local area records higher-than-average crime levels
This first-floor two-bedroom flat offers an affordable entry into Thatcham with practical space and useful extras. The layout provides a large living area and two double bedrooms within 606 sq ft, making it a sensible choice for first-time buyers or downsizers looking for low running administration costs.
Practical features include allocated parking and a separate garage, plus communal outdoor space. The lease runs for 130 years from July 2025 and the service charge is modest at £600 annually, helping keep ongoing costs predictable. Broadband and mobile signals are strong in the area, and local shops, supermarkets and schools are within easy reach.
The building dates from the late 1970s–early 1980s and uses electric storage heaters; this heating type can be expensive and may merit upgrading in future. Double glazing is present but installation date is unknown. The property is in an area with higher local crime levels, which should be considered alongside the neighbourhood conveniences.
Overall, the flat is a straightforward, well-located home with clear strengths for buyers seeking low service charges, parking and a long lease. It does have some trade-offs — compact overall size and older heating — that are typical of its era and worth inspecting in person.
2 bedroom apartment for sale in Chapel Street, Thatcham, RG18 — £225,000 • 2 bed • 1 bath • 579 ft²
2 bedroom apartment for sale in Rosen Court, Thatcham, RG19 — £200,000 • 2 bed • 1 bath • 796 ft²
2 bedroom apartment for sale in Stephenson Close, Thatcham, Berkshire, RG18 — £225,000 • 2 bed • 2 bath • 568 ft²
2 bedroom flat for sale in Thatcham, Berkshire, RG19 — £230,000 • 2 bed • 1 bath • 698 ft²
3 bedroom flat for sale in Thatcham, Berkshire, RG18 — £200,000 • 3 bed • 1 bath • 818 ft²
2 bedroom flat for sale in Redshank Court, Thatcham, RG19 — £185,000 • 2 bed • 1 bath • 603 ft²


















































































