Renovated two-bed home near excellent schools and transport links.
Freehold Victorian semi-detached with preserved period features
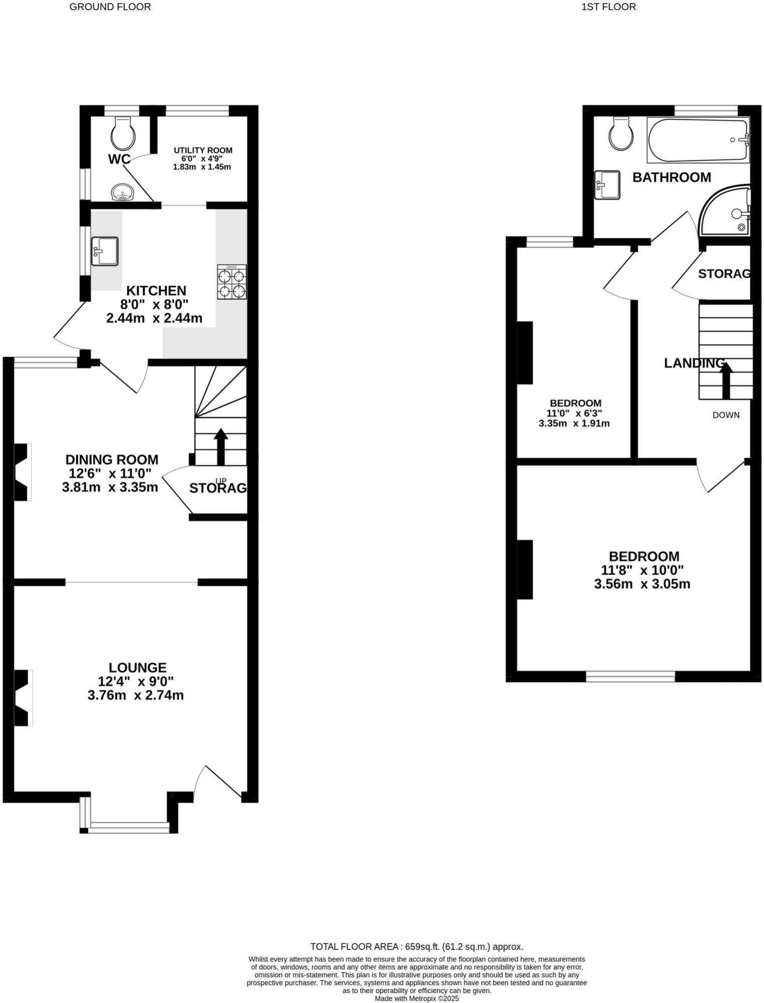
This renovated Victorian semi offers a rare mix of period character and contemporary comfort, ideal for growing families seeking close links to good schools and town amenities. The refurbished kitchen features premium appliances and patio doors that open to a generous rear garden of roughly 40 feet — larger than many nearby larger homes — with useful side access for bikes and bins.
Inside, two well-proportioned bedrooms and a bathroom off the landing give a practical, family-friendly layout. High ceilings, bay window and one of four feature fireplaces preserve character while the living spaces feel bright and modern thanks to recent refurbishment and hardwood flooring.
Practical points are straightforward: the house is freehold, has an EPC rating of C and fast broadband plus excellent mobile signal. Transport links are strong via the A1 and Stevenage station for London commuters. Local schooling is a notable strength, including an Outstanding infant school within 0.3 miles.
Buyers should note a few material facts: the house dates from the early 1900s with solid brick walls (no confirmed wall insulation), and the area records above-average crime levels. Parking is informal and based on local understanding rather than dedicated off-street space. These factors are balanced by the recent renovation and the property’s sizeable garden and convenient location.
2 bedroom semi-detached house for sale in Walkern Road, Stevenage, Hertfordshire, SG1 — £375,000 • 2 bed • 1 bath • 840 ft²
4 bedroom semi-detached house for sale in Stanmore Road, Stevenage, Hertfordshire, SG1 — £550,000 • 4 bed • 1 bath • 1279 ft²
3 bedroom semi-detached house for sale in Stanmore Road, Stevenage, SG1 — £500,000 • 3 bed • 2 bath • 2086 ft²
3 bedroom semi-detached house for sale in Walkern Road, STEVENAGE, Hertfordshire, SG1 — £525,000 • 3 bed • 1 bath • 1217 ft²
3 bedroom semi-detached house for sale in Letchmore Road, Stevenage, SG1 — £525,000 • 3 bed • 2 bath • 1157 ft²
3 bedroom semi-detached house for sale in Pound Avenue, Stevenage, Hertfordshire, SG1 — £575,000 • 3 bed • 1 bath • 1283 ft²


























































