Refurbished two-bedroom house near shops, schools and transport links.
Victorian semi-detached with original period features
A newly refurbished two-bedroom Victorian semi in the heart of Stevenage Old Town, this home blends original character with contemporary finishes. The reception rooms retain period features and centre around a cosy log burner, while a new kitchen with skylights and garden access suits everyday family life and entertaining.
Upstairs offers two well-proportioned bedrooms and a modern bathroom with shower. Outside, a private, secluded rear garden provides a quiet spot for children or relaxing; the small plot also offers scope to extend subject to planning permission (STTP).
Practical benefits include freehold tenure, fast broadband and excellent mobile signal, plus proximity to highly rated primary and secondary schools. Notable points to consider: the garden is modest in size, local crime levels are above average, and the property is awaiting an EPC and floorplan. Overall, this is a character-filled, move-in-ready home for families seeking Old Town location and further renovation or extension potential.
2 bedroom semi-detached house for sale in Alleyns Road, Stevenage, Hertfordshire, SG1 — £430,000 • 2 bed • 2 bath • 760 ft²
4 bedroom semi-detached house for sale in Stanmore Road, Stevenage, Hertfordshire, SG1 — £550,000 • 4 bed • 1 bath • 1279 ft²
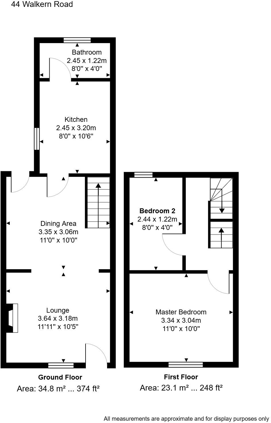
3 bedroom semi-detached house for sale in Walkern Road, STEVENAGE, Hertfordshire, SG1 — £500,000 • 3 bed • 1 bath • 1217 ft²
2 bedroom semi-detached house for sale in Alleyns Road, Stevenage, Hertfordshire, SG1 — £350,000 • 2 bed • 1 bath • 780 ft²
3 bedroom end of terrace house for sale in Ellis Avenue, Stevenage, SG1 — £325,000 • 3 bed • 1 bath • 714 ft²
3 bedroom semi-detached house for sale in Walkern Road, Stevenage, Hertfordshire, SG1 — £475,000 • 3 bed • 1 bath • 1235 ft²










































