Chain-free family home near top-rated schools and local amenities.
Three bedrooms, two bathrooms (one on each floor)
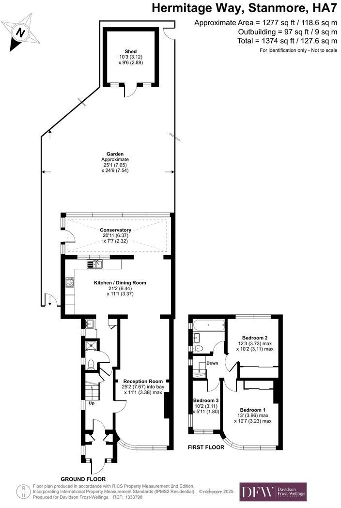
A spacious three-bedroom semi-detached home in Stanmore, offered chain free and ready for family life. The ground floor features a double reception, conservatory and open-plan kitchen, while two double bedrooms, a single bedroom and a family bathroom sit upstairs. Two bathrooms and off-street parking add everyday convenience for a growing household.
The property is in good condition with modern finishes and fast broadband, making it suitable for home working and family routines. Local amenities include bus links, nearby good and outstanding-rated schools, Stanmore Golf Club and Belmont United Synagogue; the area is affluent with low crime figures.
Practical points to note: the house is a 1930s/40s solid-brick build with assumed no cavity insulation and double glazing of unknown age, which may mean future energy-efficiency upgrades. Council Tax is in Band E (above average). There is planning potential to extend, subject to permission, offering scope to increase space or value.
Overall this is a comfortable, well-located family home with scope for improvement and extension. Buyers seeking a move-in-ready property in a strong school catchment will find clear appeal; those prioritising top energy efficiency should factor in retrofit works.
3 bedroom house for sale in Floriston Gardens, Stanmore, HA7 — £680,000 • 3 bed • 1 bath • 860 ft²
3 bedroom detached house for sale in Daventer Drive, Stanmore, HA7 — £595,000 • 3 bed • 1 bath • 915 ft²
3 bedroom semi-detached house for sale in Morley Crescent East, Stanmore, HA7 — £585,000 • 3 bed • 1 bath • 632 ft²
3 bedroom semi-detached house for sale in Honister Close, Stanmore, HA7 — £550,000 • 3 bed • 1 bath • 1048 ft²
4 bedroom semi-detached house for sale in Merrion Avenue, Stanmore, HA7 — £850,000 • 4 bed • 2 bath • 1683 ft²
4 bedroom semi-detached house for sale in Peareswood Gardens, Stanmore, HA7 — £795,000 • 4 bed • 2 bath • 1108 ft²


































































