Character-filled, family-friendly terrace minutes from Broadstairs beaches and schools.
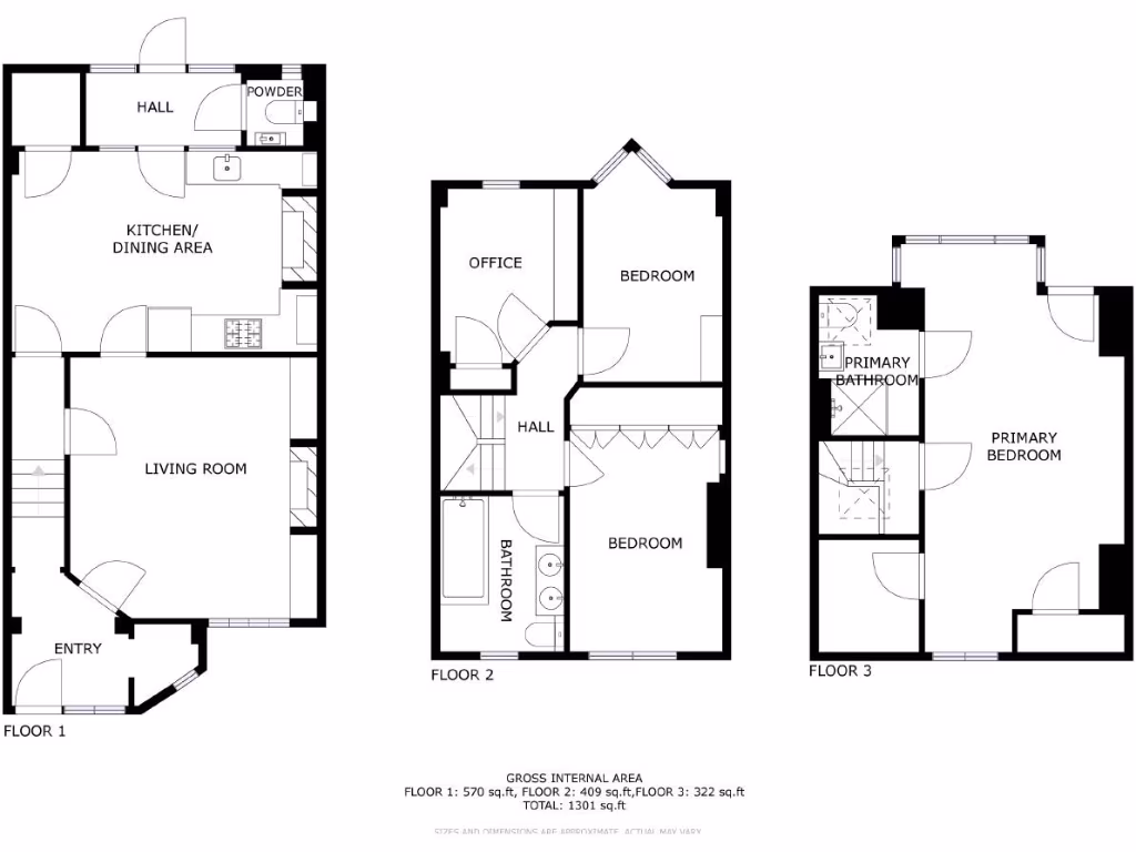
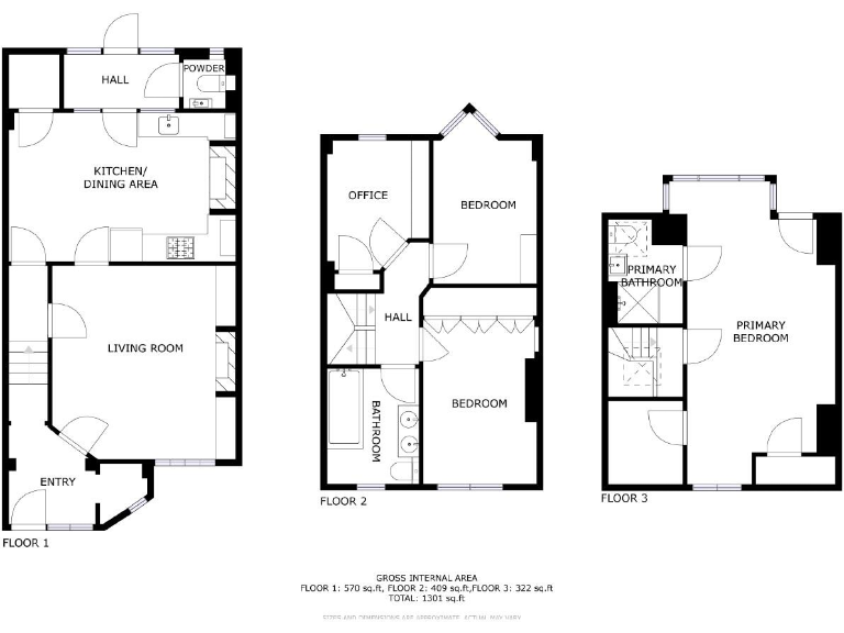
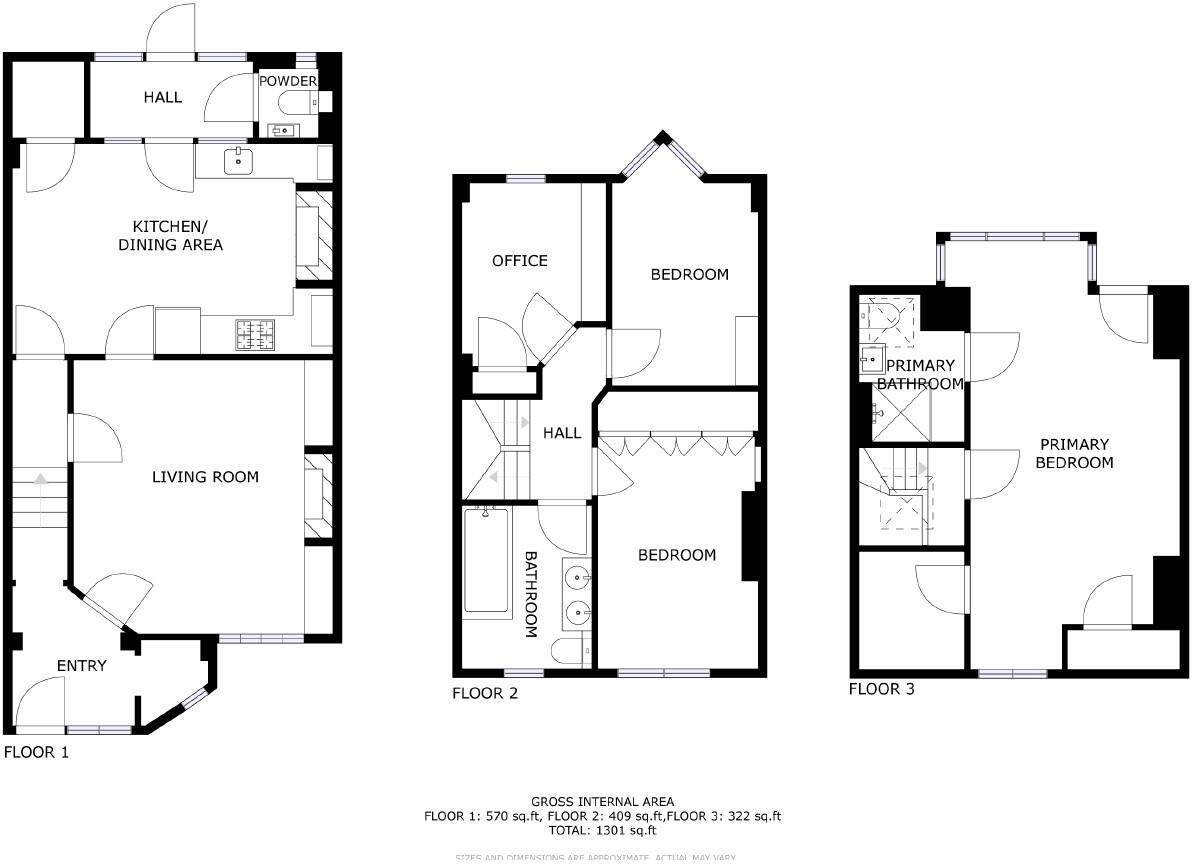
- 1301 sq ft period terrace with original fireplaces and oak flooring
- Elevated sea views from the top‑floor principal bedroom
- Bespoke kitchen/diner with pantry and Rayburn AGA
- Master ensuite with Hansgrohe shower and underfloor heating
- Paved east-facing courtyard; small plot, no lawn
- Solid brick walls assumed uninsulated; may need thermal upgrades
- Higher-than-average local crime rate; central town location
- Chain free freehold; fast broadband, average mobile signal
A handsome Victorian terrace arranged over three floors, this 1301 sq ft home blends original character with considered upgrades. Oak floors, exposed brick, original fireplaces and a wood-burning stove give the principal rooms warmth and period appeal, while a bespoke kitchen/diner with pantry and Rayburn AGA serves family life and entertaining.
The top-floor principal bedroom enjoys elevated sea views and a well-appointed en-suite with Hansgrohe rainfall and waterfall shower and underfloor heating. A modern family bathroom serves the first floor, and a paved east-facing courtyard provides private outside space ideal for morning sun and alfresco meals. Broadband speeds are fast and the property is offered chain free on a freehold title.
Buyers should note material practicalities: the mid-terrace walls are solid brick with no known insulation (assumed), which will affect running costs and may require upgrading. The plot is small and outdoor space is a paved courtyard rather than a garden. The property sits in an area with higher-than-average crime, and the multi-storey layout may not suit limited mobility.
Positioned centrally in Broadstairs, the house offers quick access to beaches, shops and outstanding primary and good secondary schools, plus rail links to London. For families seeking a characterful seaside home with scope to improve thermal efficiency, this period terrace presents immediate comfort and clear potential.
4 bedroom semi-detached house for sale in Rectory Road, Broadstairs, Kent, CT10 — £700,000 • 4 bed • 2 bath • 1658 ft²
3 bedroom end of terrace house for sale in Livingstone Road, Broadstairs, CT10 — £300,000 • 3 bed • 2 bath • 927 ft²
3 bedroom end of terrace house for sale in Belvedere Road, Broadstairs, Kent, CT10 — £350,000 • 3 bed • 1 bath • 1109 ft²
3 bedroom semi-detached house for sale in Grosvenor Road, Broadstairs, Kent, CT10 — £390,000 • 3 bed • 1 bath • 1150 ft²
4 bedroom terraced house for sale in Inverness Terrace, Broadstairs, Kent, CT10 — £650,000 • 4 bed • 2 bath • 2054 ft²
2 bedroom end of terrace house for sale in Church Square, Broadstairs, CT10 — £350,000 • 2 bed • 1 bath • 529 ft²














































