Period features, ready to move in — close to transport and local amenities.
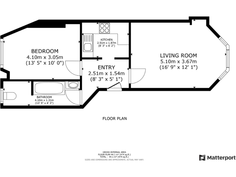
Freehold ground-floor one-bedroom tenement flat, 452 sq ft
A charming one-bedroom ground-floor tenement flat in Battlefield, presented ready to move into. Set within a handsome red sandstone building, the apartment retains period character — a bay-windowed lounge and high ceilings — while offering a modern fitted kitchen and a newly installed galley bathroom. The property is freehold and practical in layout, making it suitable for a first-time buyer or buy-to-let investor.
Transport links are a major convenience: multiple bus routes on nearby Sinclair Drive and Langside Rail Station within 0.5 miles make the city centre easily accessible. Local amenities include cafés, pubs, shops and leisure facilities a short walk away. Broadband speeds are fast and mobile signal is excellent, supporting home working and online life.
The flat measures approximately 452 sq ft and is comfortably proportioned for a one-bedroom home, but it is on the compact side compared with larger flats. There is no private garden and the apartment sits on the ground floor, which offers easy access but less privacy than upper floors. The surrounding area is classified as very deprived, which should be considered by buyers weighing long-term resale or rental prospects.
Practical positives include a secure buzzer entry, freehold tenure and an EPC rating of C. The property’s combination of period features and contemporary fittings provides immediate comfort with scope for cosmetic updates to personalise the space or enhance rental appeal.
1 bedroom flat for sale in 22 Battlefield Avenue, Flat 1/2, Battlefield, Glasgow, G42 9RJ, G42 — £159,000 • 1 bed • 1 bath • 721 ft²
1 bedroom flat for sale in Battlefield Gardens, Battlefield, G42 9JW, G42 — £175,000 • 1 bed • 1 bath • 719 ft²
2 bedroom apartment for sale in Ledard Road, Battlefield, Glasgow, G42 — £220,000 • 2 bed • 1 bath • 977 ft²
1 bedroom flat for sale in 87 Dundrennan Road, Flat 0/1, Battlefield, Glasgow, G42 9SL, G42 — £190,000 • 1 bed • 1 bath • 710 ft²
1 bedroom flat for sale in 14 Cartside Street, Flat 2/2, Battlefield, Glasgow, G42 9TF, G42 — £109,000 • 1 bed • 1 bath • 495 ft²
1 bedroom flat for sale in Cartside Street, Battlefield, G42 9TG, G42 — £95,000 • 1 bed • 1 bath • 631 ft²


























































