**Standout Features:**
- Spacious mid-20th century detached bungalow
- Three double bedrooms, including a master with en-suite and dressing room
- Bright living room with large windows overlooking the garden
- Kitchen/breakfast room connected to a utility room
- Charming south-east facing garden with mature borders, greenhouse, and shed
- Detached double garage with EV charging point and ample parking
- Located in a peaceful no-through road in Headley Down, surrounded by natural beauty
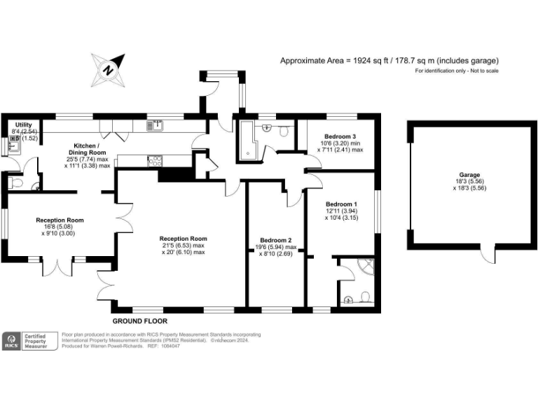
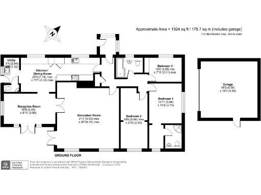
This generous, three-bedroom detached bungalow presents an exceptional opportunity for families and first-time buyers seeking comfort and space in a tranquil, semi-rural setting. The bright and airy living room, with its large windows, offers stunning views of the lovely garden, creating a perfect place to unwind. The well-designed layout includes a separate dining room and a functional kitchen/breakfast area, complemented by a convenient utility room.
Step outside into the south-east facing garden, ideal for outdoor entertaining or simply enjoying a quiet moment in nature, complete with mature borders and a greenhouse for gardening enthusiasts. The property features a large driveway and a detached double garage, adding convenience for busy families.
Situated close to a variety of local amenities and just a stone's throw from picturesque National Trust land, this bungalow combines peaceful living with accessibility. With high-rated schools nearby and excellent transport links to London and the south coast, it’s perfect for families seeking a serene yet connected lifestyle.
However, potential buyers should be aware of slow broadband speeds in the area, which may be a consideration for those requiring high-speed internet access. With such a competitively priced property, this is an excellent opportunity that won’t last long—envision your future in this charming home today!
3 bedroom bungalow for sale in Fairview Road, Headley Down, Hampshire, GU35 — £775,000 • 3 bed • 2 bath • 1530 ft²
3 bedroom detached bungalow for sale in Beech Hill, Bordon, GU35 — £650,000 • 3 bed • 2 bath • 1094 ft²
3 bedroom detached bungalow for sale in Glebe Road, Headley, Bordon, Hampshire, GU35 — £700,000 • 3 bed • 2 bath • 1488 ft²
5 bedroom detached house for sale in Wilsons Road, Headley Down, Hampshire, GU35 — £815,000 • 5 bed • 2 bath • 1733 ft²
2 bedroom detached bungalow for sale in Hilland Rise, Headley, Hampshire, GU35 — £510,000 • 2 bed • 1 bath • 1234 ft²
2 bedroom bungalow for sale in Churchill Crescent, Headley, Bordon, Hampshire, GU35 — £425,000 • 2 bed • 1 bath • 738 ft²


















































































