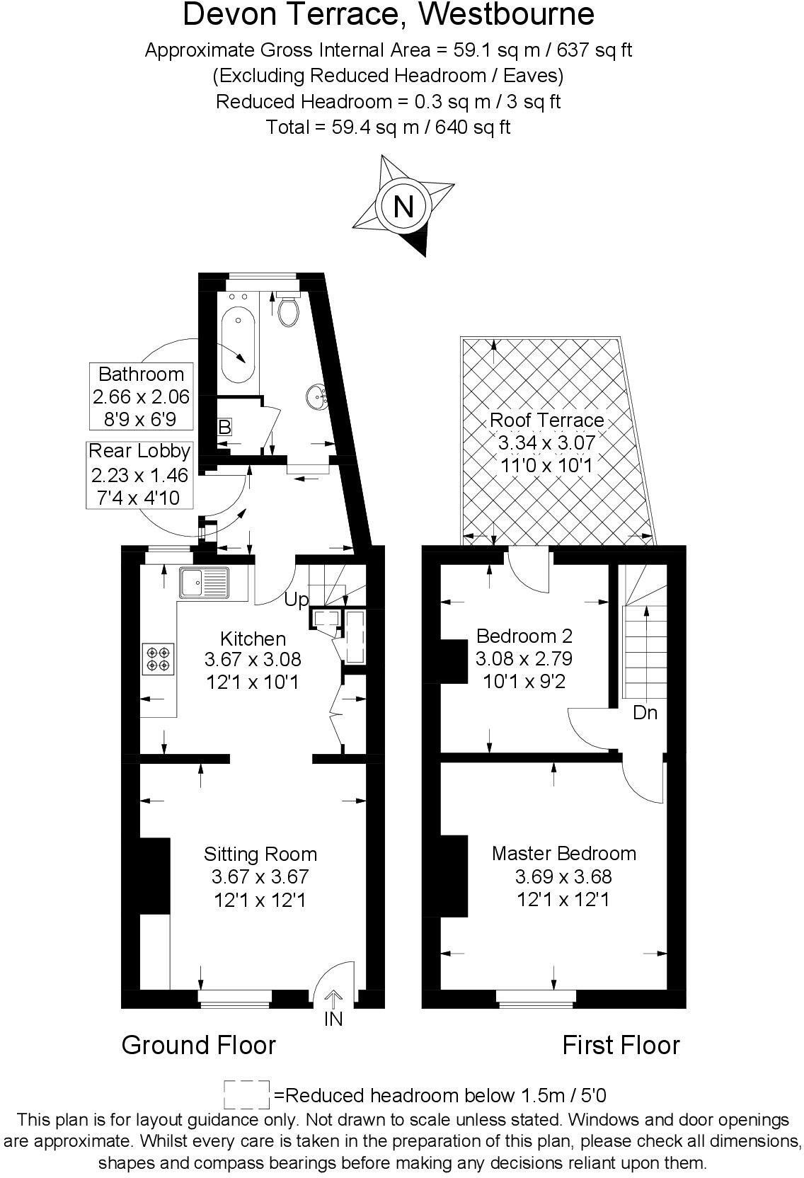
**Standout Features:**
- Charming character cottage built in 1885
- No forward chain for an immediate move
- Central village location with easy walking access to amenities
- Cosy sitting room with original oak flooring and fireplace
- Spacious kitchen/breakfast room with utility cupboard
- Two double bedrooms, one with access to roof terrace
- Courtyard-style garden designed for low maintenance
- On-street parking available
**Summary:**
Step into this delightful character cottage nestled in the heart of Westbourne, an inviting village that offers charm and convenience. With two spacious double bedrooms and smartly presented interiors, this home exemplifies cottage living. The ground floor features a cosy sitting room adorned with oak flooring and an open fireplace, seamlessly connecting to a practical kitchen/breakfast area designed for warmth and communal living.
Boasting a neatly finished bathroom complete with essential amenities, this property is ready for you to move in, thanks to its no forward chain. Outside, enjoy your private courtyard garden, an ideal sanctuary for low-maintenance outdoor relaxation, alongside a roof terrace accessed from the rear bedroom, perfect for those peaceful mornings.
Located just a short stroll from local shops and essential services in lively Westbourne, this cottage is also a gateway to delightful walking routes and the scenic harbor of Emsworth. While on-street parking is readily available, potential buyers should consider the limited outside space. This charming home is perfect for first-time buyers or small families craving a community-centric lifestyle. Don’t miss this opportunity to own a slice of idyllic country living with modern conveniences!
2 bedroom end of terrace house for sale in East Street, Westbourne, Emsworth, PO10 — £320,000 • 2 bed • 2 bath • 814 ft²
2 bedroom end of terrace house for sale in Jubilee Terrace, East Street, Westbourne, PO10 8SG, PO10 — £295,000 • 2 bed • 1 bath • 544 ft²
2 bedroom house for sale in King Street, Westbourne, PO10 — £325,000 • 2 bed • 2 bath • 1107 ft²
2 bedroom terraced house for sale in White Chimney Row, Westbourne, Emsworth, PO10 — £320,000 • 2 bed • 1 bath • 721 ft²
2 bedroom end of terrace house for sale in White Chimney Row, Westbourne, Emsworth, West Sussex, PO10 — £335,000 • 2 bed • 1 bath • 509 ft²
3 bedroom terraced house for sale in Covington Road, Westbourne , PO10 — £350,000 • 3 bed • 1 bath • 859 ft²














































































