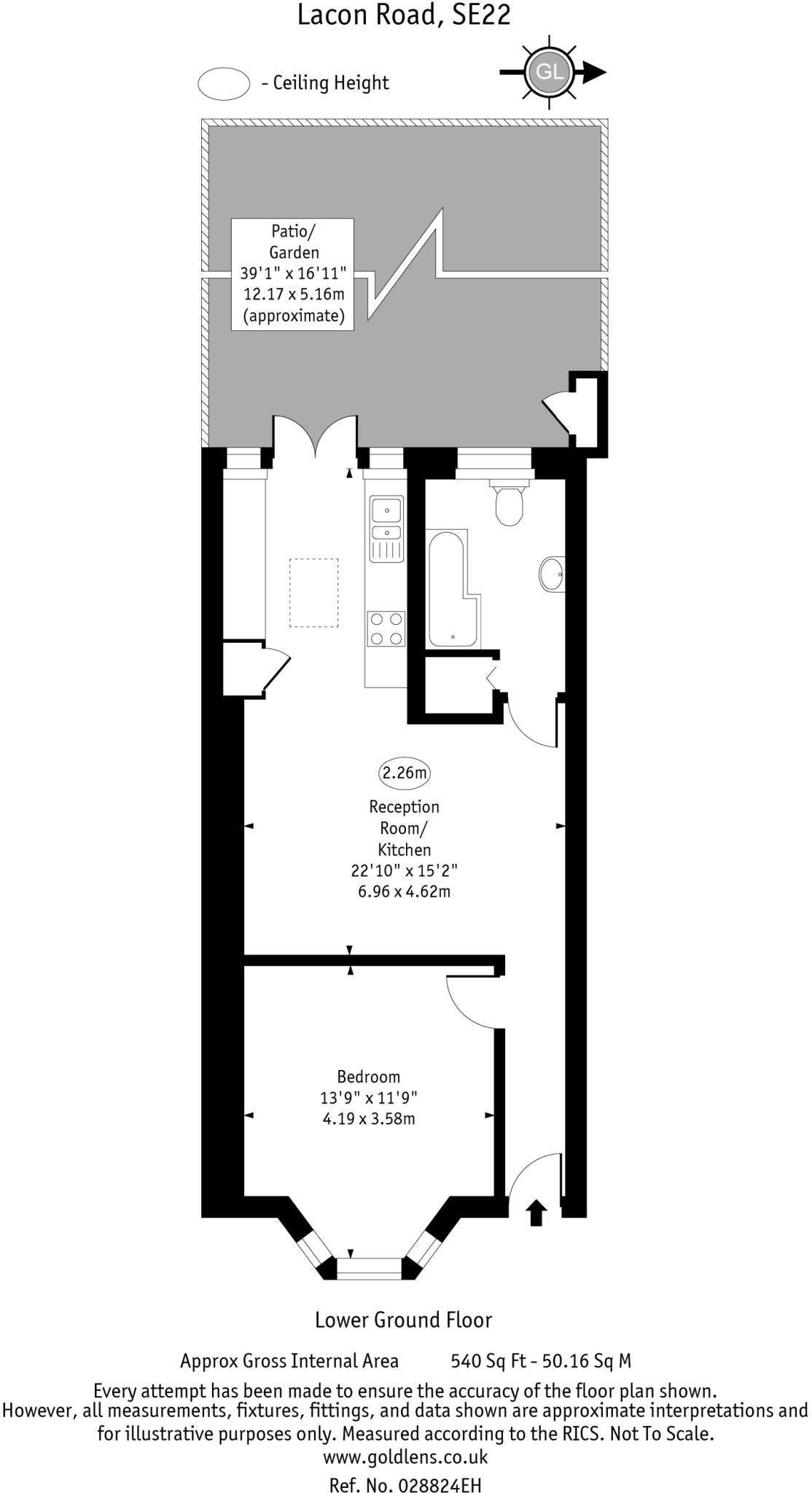
One-bedroom home with rare secluded outdoor area near Lordship Lane.
Chain-free lower ground floor maisonette with private entrance
Very large private garden for sole use — rare for flats
Open-plan kitchen/reception with French doors and high ceilings
Preventative damp-proofing completed; 20-year guarantee from 2025
Built before 1900 with solid brick walls; may need energy upgrades
Double glazing fitted before 2002; could be less efficient than new glazing
Mains gas boiler and radiators; standard maintenance applies
Local area crime rate higher than average — factor for security/insurance
Set on a tree-lined street just off Lordship Lane, this chain-free lower ground floor maisonette combines period character with contemporary finishes. The open-plan kitchen/reception floods with light from high ceilings and French doors that open onto a very large private garden — a rare outdoor space in SE22.
The apartment has a well-proportioned double bedroom, a modern bathroom and useful utility cupboard. Recent preventative damp-proofing works (20-year guarantee from 2025) provide added reassurance for buyers concerned about subterranean properties.
Practical details: the building dates from before 1900 with solid brick walls and double glazing installed before 2002; heating is mains gas with a boiler and radiators. These features mean the flat is comfortable now but may benefit from targeted energy upgrades over time.
Location is a strong selling point — East Dulwich’s cafés, shops and transport links (East Dulwich and Denmark Hill nearby) are all within easy reach. The flat suits first-time buyers or downsizers seeking a low-maintenance starter home with outdoor space, and investors looking for a reputable SE22 postcode. Note the local crime level is higher than average for the area; buyers should consider personal security measures and insurance accordingly.
1 bedroom flat for sale in Crystal Palace Road, East Dulwich, SE22 — £450,000 • 1 bed • 1 bath • 465 ft²
1 bedroom ground floor flat for sale in Crystal Palace Road, East Dulwich, SE22 — £549,950 • 1 bed • 1 bath • 537 ft²
1 bedroom flat for sale in East Dulwich Grove, East Dulwich, SE22 — £550,000 • 1 bed • 1 bath • 786 ft²
2 bedroom apartment for sale in Lordship Lane, East Dulwich, London, SE22 — £800,000 • 2 bed • 2 bath • 1104 ft²
2 bedroom flat for sale in Crystal Palace Road, East Dulwich, SE22 — £550,000 • 2 bed • 1 bath • 640 ft²
1 bedroom flat for sale in Derwent Grove, East Dulwich, SE22 — £500,000 • 1 bed • 1 bath • 646 ft²


































