Ready-to-move-in three-bedroom close to schools and transport links.
Freehold three-bedroom end-of-terrace in central Holmes Chapel
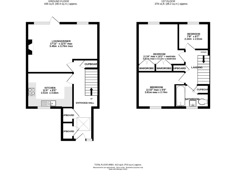
Short walk to shops, schools and train station
Block-paved driveway plus additional communal parking space
Enclosed rear garden with Indian Stone patio and timber shed
Extended hallway with vaulted ceiling and substantial storage
Single white three-piece bathroom only; one bath/shower
Small overall floor area (approx. 813 sqft) — modest room sizes
Fast broadband, very low local crime and affordable council tax
This neatly presented three-bedroom end-of-terrace sits in the heart of Holmes Chapel, an easy walk to shops, schools and the train station. The interior is tastefully finished, offering ready-to-move-in accommodation for a small family or professional couple.
A modern kitchen opens to the extended hallway with a vaulted ceiling and generous built-in storage. The light lounge-diner runs to the rear and has doors onto a private, low-maintenance garden with an Indian stone patio and shed — a manageable outside space for children or pets.
Practical features include a block-paved driveway plus a communal parking space, fast broadband and freehold tenure. The house is modest in overall size and has a single family bathroom, so buyers seeking larger rooms or more bathrooms should note the scale. Overall, this is a convenient, well-kept village home suited to those prioritising location and low-maintenance living.
3 bedroom terraced house for sale in Crofters Court, Holmes Chapel, CW4 — £290,000 • 3 bed • 1 bath • 539 ft²
4 bedroom detached house for sale in Eastgate Road, Holmes Chapel, CW4 — £375,000 • 4 bed • 1 bath • 811 ft²
3 bedroom semi-detached house for sale in George Jackson Avenue, Holmes Chapel, CW4 — £340,000 • 3 bed • 2 bath • 815 ft²
3 bedroom detached house for sale in Troon Close, Holmes Chapel, CW4 — £395,000 • 3 bed • 1 bath • 992 ft²
3 bedroom link detached house for sale in St. Andrews Drive, Holmes Chapel, CW4 — £425,000 • 3 bed • 1 bath • 1129 ft²
3 bedroom semi-detached house for sale in Dunoon Close, Holmes Chapel, CW4 — £300,000 • 3 bed • 1 bath • 861 ft²










































































