Ideal buy-to-let near university and hospital, quick to occupy.
No upward chain, ready for quick purchase
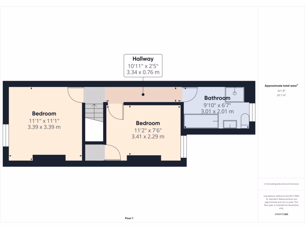
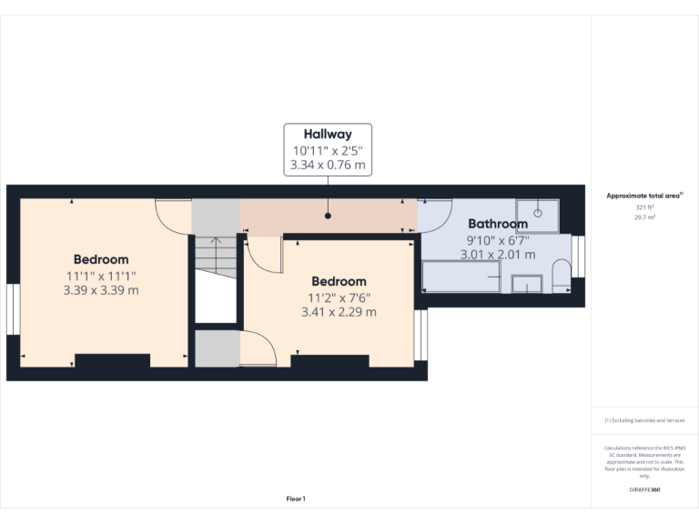
A straightforward Victorian mid-terrace offering clear rental and short-term resale potential in a city-centre neighbourhood popular with students and professionals. The property has two reception rooms, a fitted kitchen, two double bedrooms and a good-sized bathroom, all laid out over an average-sized 652 sq ft. Proximity to the university, hospital and city transport links supports steady tenant demand.
Built before 1900 with solid brick walls and double glazing, the house benefits from mains gas central heating and a very low council tax band. There is an enclosed rear garden and on-street parking. No upward chain makes this an easy purchase for an investor or first-time buyer seeking a quick move-in or rental let.
Practical considerations: the property currently has an EPC rating of D and its solid brick construction likely lacks cavity insulation, so energy improvements may be needed to raise efficiency and long-term running costs. Rooms are described as small to medium, so modernisation to optimise layouts and storage will add value. Crime levels in the area are above average, which should be considered when assessing rental yields and insurance costs.
Overall this is a compact, period terrace with reliable fundamentals for buy-to-let or a starter home. It will suit buyers willing to invest modestly in energy improvements and cosmetic updating to maximise rental income or resale value.
2 bedroom terraced house for sale in Howe Street, DERBY, Derbyshire, DE22 — £145,000 • 2 bed • 1 bath • 944 ft²
3 bedroom terraced house for sale in Peach Street, Derby, DE22 — £150,000 • 3 bed • 1 bath • 781 ft²
2 bedroom terraced house for sale in South Street, Derby, DE1 — £150,000 • 2 bed • 1 bath • 679 ft²
2 bedroom terraced house for sale in Camden Street, Derby, DE22 — £140,000 • 2 bed • 1 bath • 663 ft²
2 bedroom terraced house for sale in Etwall Street, Derby, DE22 — £175,000 • 2 bed • 1 bath • 628 ft²
2 bedroom terraced house for sale in Scott Street, Normanton, DE23 — £150,000 • 2 bed • 1 bath • 904 ft²






















































































