NN12 7RU - Plot for sale in Main Road, Shutlanger, NN12
View on Property Piper
Plot for sale in Main Road, Shutlanger, NN12
Property Details
- Price: £120000
- Bedrooms: 1
- Bathrooms: 1
- Property Type: undefined
- Property SubType: undefined
Brochure Descriptions
- A rectangular building plot directly adjacent to number 67 Main Road, Shutlanger. The site appears level with an existing concrete side path running alongside the neighbouring house and a grassed area extending to mature, tall conifer hedging providing good privacy and wind shelter. There are small existing utility/ground features visible on the plot. Suitable in layout for a single-family dwelling subject to planning; plot size is medium/average for a village infill parcel. Overall setting is semi-rural/village with enclosed, private boundaries; no internal buildings of significant size are present on the plot. Excludes any commentary about removable items or interiors.
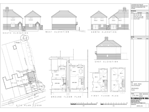
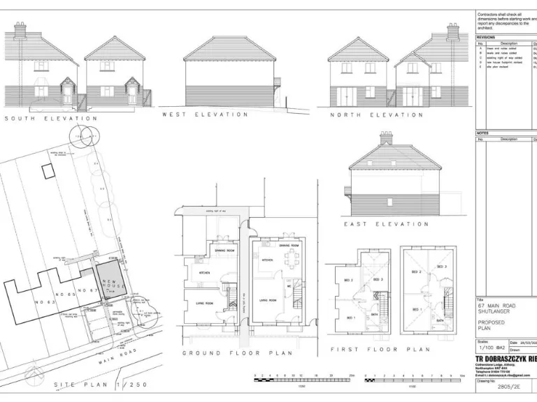
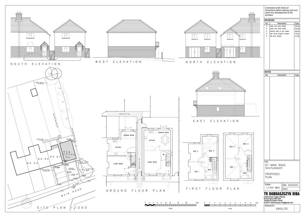
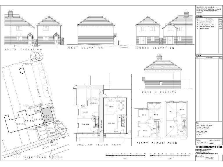
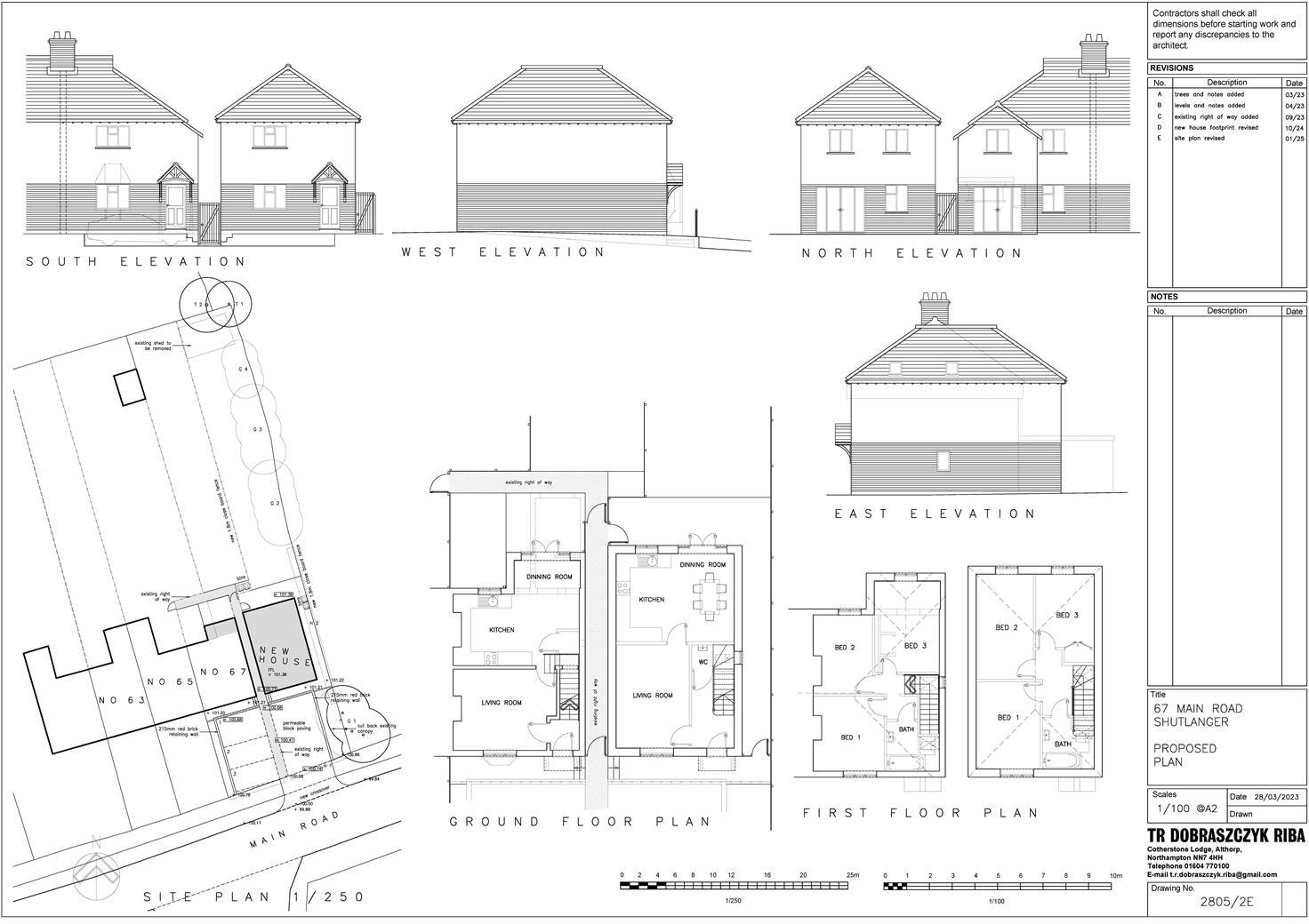
- A single building plot with Full Planning Permission (reference 2025/0737/FULL) for a two-storey, three-bedroom house. The plot is positioned adjacent to number 67 on Main Road in the village of Shutlanger, on the edge of the settlement. Consent is for a detached house with driveway parking and a long, established rear garden. The site appears to be a modest residential plot suitable for a small/average-sized family home; garden size described in the listing as long (average-to-large for a village plot). No internal accommodation exists yet (development plot).
Image Descriptions
- garden
- back garden Traditional
Floorplan Description
- Proposed plan for 67 MAIN ROAD SHUTLANGER
Rooms
- KITCHEN:
- DINING ROOM:
- LIVING ROOM:
- WC:
- BED 1:
- BED 2:
- BED 3:
- BATH:
Textual Property Features
Detected Visual Features
- garden
- large
- outdoor space
- lawn
- privacy
- hedge
- patio
- concrete path
- trees
- shrubs
- natural
- mature
- fixer-upper
- unkempt
Nearby Schools
- John Hellins Primary School
- Paulerspury Church of England Primary School
- Marie Weller Primary School
- Stoke Bruerne Church of England Primary School
- Ashton CofE Primary School
- Tiffield Church of England Voluntary Aided Primary School
- Gayton Church of England Primary School
- Collingtree Church of England Primary School
- Preston Hedges Primary School
- Whittlebury Church of England Primary School
- Yardley Gobion Church of England Primary School
- Nicholas Hawksmoor Primary School
- Towcester Church of England Primary School
- Sponne School
- Wootton Primary School
- Northampton High School
- Hardingstone Academy
- Simon de Senlis Primary School
- Abbeyfield School
- Blisworth Community Primary School
- Woodland View Primary School
- East Hunsbury Primary School
- Wootton Park School
- Hartwell Primary School
- Roade Primary School
- Milton Parochial Primary School
- Caroline Chisholm School
- Rothersthorpe Church of England Primary School
Nearest General Shops
- Id: 848198177
- Tags:
- Addr:
- City: Northampton
- Country: GB
- Housenumber: 2-8
- Postcode: NN7 2NJ
- Street: Stratford Road
- Village: Roade
- Name: RoadeMainGarage
- Phone: +44 1604 862 262
- Shop: car_repair
- Website: https://www.roademaingarage.co.uk/
- TagsNormalized:
- garage
- car repair
- repair
- shop
- Lat: 52.1569846
- Lon: -0.8985775
- FullGeoHash: gcr2ewcsmwsh
- PartitionGeoHash: gcr2
- Images:
- FoodStandards: null
- Distance: 2727.6
,- Id: 135249236
- Tags:
- Building: yes
- Name: The Canal Museum
- Shop: gift
- Source: Bing
- Tourism: museum
- Wikidata: Q16248172
- Wikipedia: en:The Canal Museum
- TagsNormalized:
- canal
- museum
- gift
- shop
- tourism
- Lat: 52.142537
- Lon: -0.9149928
- FullGeoHash: gcr2ehm8r17u
- PartitionGeoHash: gcr2
- Images:
- FoodStandards: null
- Distance: 1190.7
,- Id: 5768399849
- Tags:
- Name: The Canal Shop
- Shop: gift
- TagsNormalized:
- Lat: 52.1425219
- Lon: -0.9156012
- FullGeoHash: gcr2ehm20yw6
- PartitionGeoHash: gcr2
- Images:
- FoodStandards: null
- Distance: 1149.7
}
Nearest Religious buildings
- Id: 207875847
- Tags:
- Addr:
- City: Towcester
- Country: GB
- Place: Easton Neston
- Postcode: NN12 7HS
- Amenity: place_of_worship
- Denomination: anglican
- Name: St Mary's, Easton Neston
- Religion: christian
- Wikidata: Q17527159
- TagsNormalized:
- place of worship
- anglican
- christian
- church
- Lat: 52.1364699
- Lon: -0.9755029
- FullGeoHash: gcr29g1svnkm
- PartitionGeoHash: gcr2
- Images:
- FoodStandards: null
- Distance: 3058.6
,- Id: 392175735
- Tags:
- Addr:
- City: Towcester
- Country: GB
- Place: Stoke Bruerne
- Postcode: NN12 7SD
- Street: Bridge Road
- Amenity: school
- Capacity: 72
- Denomination: anglican
- Diocese: Diocese of Peterborough
- Email: head@stokebruerne.northants-ecl.gov.uk
- Isced:
- Max_age: 11
- Min_age: 4
- Name: Stoke Bruerne Church of England Primary School
- Phone: +44 1604 862872
- Ref: 9283060
- Ref:GB:uprn: 100032140485
- Ref:edubase: 121992
- Ref:edubase:group: 1873
- Religion: christian
- School:
- Boarding: no
- Federation:
- Name: The Forest CE Federation
- Gender: mixed
- Selective: no
- Trust: no
- Type: voluntary_controlled
- Website: https://www.forestfederation.co.uk
- Wikidata: Q66226808
- TagsNormalized:
- school
- anglican
- church
- christian
- Lat: 52.1421087
- Lon: -0.9163133
- FullGeoHash: gcr2ehhvb3e3
- PartitionGeoHash: gcr2
- Images:
- FoodStandards: null
- Distance: 1108.5
,- Id: 288227431
- Tags:
- Addr:
- City: Towcester
- Country: GB
- Postcode: NN12 7SB
- Street: Bridge Road
- Village: Stoke Bruerne
- Amenity: place_of_worship
- Building: church
- Denomination: anglican
- Name: Saint Mary the Virgin
- Religion: christian
- Wikidata: Q17545157
- TagsNormalized:
- place of worship
- church
- anglican
- christian
- Lat: 52.1419097
- Lon: -0.919078
- FullGeoHash: gcr2eh4sxumy
- PartitionGeoHash: gcr2
- Images:
- FoodStandards: null
- Distance: 928.1
}
Nearest Airports
- Id: 110273499
- Tags:
- Addr:
- Country: GB
- Postcode: LU2 9LY
- Aerodrome: international
- Aerodrome:type: public
- Aeroway: aerodrome
- Alt_name: London Luton
- Iata: LTN
- Icao: EGGW
- Name: London Luton Airport
- Website: https://www.london-luton.co.uk/
- Wikidata: Q8712
- Wikipedia: en:Luton Airport
- TagsNormalized:
- airport
- international airport
- Lat: 51.8780363
- Lon: -0.3701408
- FullGeoHash: gcpxps47rngh
- PartitionGeoHash: gcpx
- Images:
- FoodStandards: null
- Distance: 48516.5
}
Nearest Leisure Facilities
- Id: 288231674
- Tags:
- Leisure: park
- Natural: wood
- TagsNormalized:
- Lat: 52.1452189
- Lon: -0.9198483
- FullGeoHash: gcr2ehdpvvr6
- PartitionGeoHash: gcr2
- Images:
- FoodStandards: null
- Distance: 864.7
,- Id: 700841549
- Tags:
- TagsNormalized:
- Lat: 52.1418867
- Lon: -0.9220431
- FullGeoHash: gcr2eh0sdb4v
- PartitionGeoHash: gcr2
- Images:
- FoodStandards: null
- Distance: 733.4
,- Id: 700841548
- Tags:
- Leisure: pitch
- Sport: soccer
- TagsNormalized:
- Lat: 52.1426777
- Lon: -0.9220011
- FullGeoHash: gcr2eh295gdh
- PartitionGeoHash: gcr2
- Images:
- FoodStandards: null
- Distance: 715.3
,- Id: 1094072170
- Tags:
- TagsNormalized:
- Lat: 52.1445808
- Lon: -0.9415086
- FullGeoHash: gcr2dsdkjq2k
- PartitionGeoHash: gcr2
- Images:
- FoodStandards: null
- Distance: 632.9
,- Id: 1094072171
- Tags:
- Leisure: pitch
- Sport: football;basketball
- TagsNormalized:
- pitch
- leisure
- football
- basketball
- sports
- Lat: 52.1446233
- Lon: -0.9409838
- FullGeoHash: gcr2dsdu3qrd
- PartitionGeoHash: gcr2
- Images:
- FoodStandards: null
- Distance: 598.1
}
Nearest Tourist attractions
- Id: 288321535
- Tags:
- Addr:
- City: Towcester
- Country: GB
- Housename: Waterways Cottage
- Postcode: NN12 7SD
- Street: Bridge Road
- Village: Stoke Bruerne
- Building: yes
- Name: Waterways Cottage B&B
- Tourism: guest_house
- TagsNormalized:
- Lat: 52.1416458
- Lon: -0.9153258
- FullGeoHash: gcr2ehj7p778
- PartitionGeoHash: gcr2
- Images:
- FoodStandards: null
- Distance: 1184.4
,- Id: 288321532
- Tags:
- Addr:
- City: Towcester
- Country: GB
- Housename: Waterways Cottage
- Postcode: NN12 7SD
- Street: Bridge Road
- Village: Stoke Bruerne
- Building: yes
- Name: Waterways Cottage B&B
- Tourism: guest_house
- TagsNormalized:
- Lat: 52.1417405
- Lon: -0.9154151
- FullGeoHash: gcr2ehj7tkcj
- PartitionGeoHash: gcr2
- Images:
- FoodStandards: null
- Distance: 1176.3
,- Id: 35220262
- Tags:
- Natural: grassland
- Tourism: picnic_site
- TagsNormalized:
- Lat: 52.1427887
- Lon: -0.9152925
- FullGeoHash: gcr2ehm9b0k6
- PartitionGeoHash: gcr2
- Images:
- FoodStandards: null
- Distance: 1167.3
}
Nearest Bus stations and stops
- Id: 9472527338
- Tags:
- Highway: bus_stop
- Name: 30 Connegar Leys (opp)
- Naptan:
- AtcoCode: 300000032CN
- CommonName: 30 Connegar Leys
- Indicator: opp
- Landmark: Number 30
- NaptanCode: nthdmjmd
- Street: Connegar Leys
- Public_transport: platform
- TagsNormalized:
- Lat: 52.1734249
- Lon: -0.9298774
- FullGeoHash: gcr2fcfuhr34
- PartitionGeoHash: gcr2
- Images:
- FoodStandards: null
- Distance: 3295.6
,- Id: 9472527339
- Tags:
- Highway: bus_stop
- Name: Home Close (opp)
- Naptan:
- AtcoCode: 300000032BU
- CommonName: Home Close
- Indicator: opp
- Landmark: Home Close
- NaptanCode: nthdmjgt
- Street: Buttmead
- Public_transport: platform
- TagsNormalized:
- Lat: 52.1732987
- Lon: -0.9367879
- FullGeoHash: gcr2f9vg7rb3
- PartitionGeoHash: gcr2
- Images:
- FoodStandards: null
- Distance: 3291.5
,- Id: 9472527329
- Tags:
- Highway: bus_stop
- Name: Wood Cottage (opp)
- Naptan:
- AtcoCode: 300000032TR
- CommonName: Wood Cottage
- Indicator: opp
- Landmark: Wood Cottage
- NaptanCode: nthadajw
- Street: Towcester Road
- Public_transport: platform
- TagsNormalized:
- Lat: 52.1691926
- Lon: -0.9516549
- FullGeoHash: gcr2f3558f6e
- PartitionGeoHash: gcr2
- Images:
- FoodStandards: null
- Distance: 3114.1
,- Id: 715361062
- Tags:
- Bus: yes
- Highway: bus_stop
- Public_transport: platform
- TagsNormalized:
- Lat: 52.1690718
- Lon: -0.9518831
- FullGeoHash: gcr2f34fgebe
- PartitionGeoHash: gcr2
- Images:
- FoodStandards: null
- Distance: 3108.5
,- Id: 715361045
- Tags:
- Highway: bus_stop
- Name: Wood Cottage (o/s)
- Naptan:
- AtcoCode: 300000032TO
- CommonName: Wood Cottage
- Indicator: o/s
- Landmark: Wood Cottage
- NaptanCode: nthadajt
- Street: Towcester Road
- Public_transport: platform
- TagsNormalized:
- Lat: 52.1689764
- Lon: -0.9517999
- FullGeoHash: gcr2f34fm6n9
- PartitionGeoHash: gcr2
- Images:
- FoodStandards: null
- Distance: 3096.5
}
Nearest Hotels
- Id: 4810951624
- Tags:
- Addr:
- City: Towcester
- Country: GB
- Place: Paulerspury
- Postcode: NN12 6LQ
- Street: Watling Street
- Fhrs:
- Authority: West Northamptonshire
- Id: 1540786
- Local_authority_id: FR/000000395
- Name: Plum Park Hotel
- Tourism: hotel
- TagsNormalized:
- Lat: 52.1076482
- Lon: -0.9473617
- FullGeoHash: gcr26myjhcev
- PartitionGeoHash: gcr2
- Images:
- FoodStandards: null
- Distance: 4151.7
,- Id: 258963395
- Tags:
- Addr:
- City: Towcester
- Country: GB
- Housenumber: 219
- Postcode: NN12 6BX
- Street: Watling Street
- Amenity: pub
- Fhrs:
- Authority: West Northamptonshire
- Id: 1541638
- Local_authority_id: FR/202200033
- Name: The Saracen's Head
- Outdoor_seating: yes
- Tourism: hotel
- Wikidata: Q26292716
- TagsNormalized:
- Lat: 52.1334075
- Lon: -0.9906163
- FullGeoHash: gcr296wehgwc
- PartitionGeoHash: gcr2
- Images:
- FoodStandards: null
- Distance: 4144
,- Id: 1954729727
- Tags:
- Addr:
- City: Towcester
- Country: GB
- Housenumber: 104-106
- Postcode: NN12 6BT
- Street: Watling Street
- Fhrs:
- Authority: West Northamptonshire
- Id: 1577109
- Local_authority_id: FR/202200201
- Name: Brave Old Oak
- Outdoor_seating: yes
- Tourism: hotel
- TagsNormalized:
- Lat: 52.1325688
- Lon: -0.9890459
- FullGeoHash: gcr296ry1x1y
- PartitionGeoHash: gcr2
- Images:
- FoodStandards: null
- Distance: 4069
}
Tags
- garden
- large
- outdoor space
- lawn
- privacy
- hedge
- patio
- concrete path
- garden
- lawn
- trees
- shrubs
- outdoor space
- privacy
- natural
- mature
- fixer-upper
- unkempt
Local Market Stats
- Average Price/sqft: £344
- Avg Income: £50600
- Rental Yield: 3.9%
- Social Housing: 8%
- Planning Success Rate: 91%
AirBnB Data
- 1km average: £105/night
- Listings in 1km: 1
Similar Properties
Land for sale in Shutlanger, Towcester, NN12 — £220,000 • 1 bed • 1 bath
2 bedroom end of terrace house for sale in Main Road, Shutlanger, NN12 — £275,000 • 2 bed • 1 bath • 912 ft²
Plot for sale in Water Lane, Sherington, Newport Pagnell, Buckinghamshire, MK16 — £410,000 • 1 bed • 1 bath • 2000 ft²
Plot for sale in Water Lane, Sherington, Newport Pagnell, Buckinghamshire, MK16 — £425,000 • 1 bed • 1 bath • 2000 ft²
Plot for sale in Water Lane, Sherington, Newport Pagnell, Buckinghamshire, MK16 — £390,000 • 1 bed • 1 bath • 2000 ft²
Plot for sale in 13 Hartwell Road, Roade, NN7 — £275,000 • 1 bed • 1 bath • 3336 ft²
Meta
- {
"@context": "https://schema.org",
"@type": "Residence",
"name": "Plot for sale in Main Road, Shutlanger, NN12",
"description": "",
"url": "https://propertypiper.co.uk/property/7f72669a-aa75-4300-bdd0-59e070f8d16c",
"image": "https://image-a.propertypiper.co.uk/29a1b9d4-a212-450f-a58e-de1de0ba55ba-1024.jpeg",
"address": {
"@type": "PostalAddress",
"streetAddress": "67 Main Road, Shutlanger, TOWCESTER",
"postalCode": "NN12 7RU",
"addressLocality": "West Northamptonshire",
"addressRegion": "South Northamptonshire",
"addressCountry": "England"
},
"geo": {
"@type": "GeoCoordinates",
"latitude": 52.14382485954845,
"longitude": -0.9323154104174213
},
"numberOfRooms": 1,
"numberOfBathroomsTotal": 1,
"offers": {
"@type": "Offer",
"price": 120000,
"priceCurrency": "GBP",
"availability": "https://schema.org/InStock"
},
"additionalProperty": [
{
"@type": "PropertyValue",
"name": "Feature",
"value": "garden"
},
{
"@type": "PropertyValue",
"name": "Feature",
"value": "large"
},
{
"@type": "PropertyValue",
"name": "Feature",
"value": "outdoor space"
},
{
"@type": "PropertyValue",
"name": "Feature",
"value": "lawn"
},
{
"@type": "PropertyValue",
"name": "Feature",
"value": "privacy"
},
{
"@type": "PropertyValue",
"name": "Feature",
"value": "hedge"
},
{
"@type": "PropertyValue",
"name": "Feature",
"value": "patio"
},
{
"@type": "PropertyValue",
"name": "Feature",
"value": "concrete path"
},
{
"@type": "PropertyValue",
"name": "Feature",
"value": "garden"
},
{
"@type": "PropertyValue",
"name": "Feature",
"value": "lawn"
},
{
"@type": "PropertyValue",
"name": "Feature",
"value": "trees"
},
{
"@type": "PropertyValue",
"name": "Feature",
"value": "shrubs"
},
{
"@type": "PropertyValue",
"name": "Feature",
"value": "outdoor space"
},
{
"@type": "PropertyValue",
"name": "Feature",
"value": "privacy"
},
{
"@type": "PropertyValue",
"name": "Feature",
"value": "natural"
},
{
"@type": "PropertyValue",
"name": "Feature",
"value": "mature"
},
{
"@type": "PropertyValue",
"name": "Feature",
"value": "fixer-upper"
},
{
"@type": "PropertyValue",
"name": "Feature",
"value": "unkempt"
}
]
}
High Res Floorplan Images
Compatible Floorplan Images
FloorplanImages Thumbnail