**Standout Features:**
- Rare building plot with full planning permission granted (reference 2024/1544/FULL) as of July 4, 2024.
- Plot size of 310 sq mts (3,336 sq ft), perfect for a bespoke family home.
- Ideal central village location in Roade with all mains services available.
- Excellent community amenities including shops, schools, and recreational activities.
- Close proximity to major transport links (A508, M1, and nearby train stations).
- Community Infrastructure Levy (CIL) applies, but self-build exemption may be available.
**Summary:**
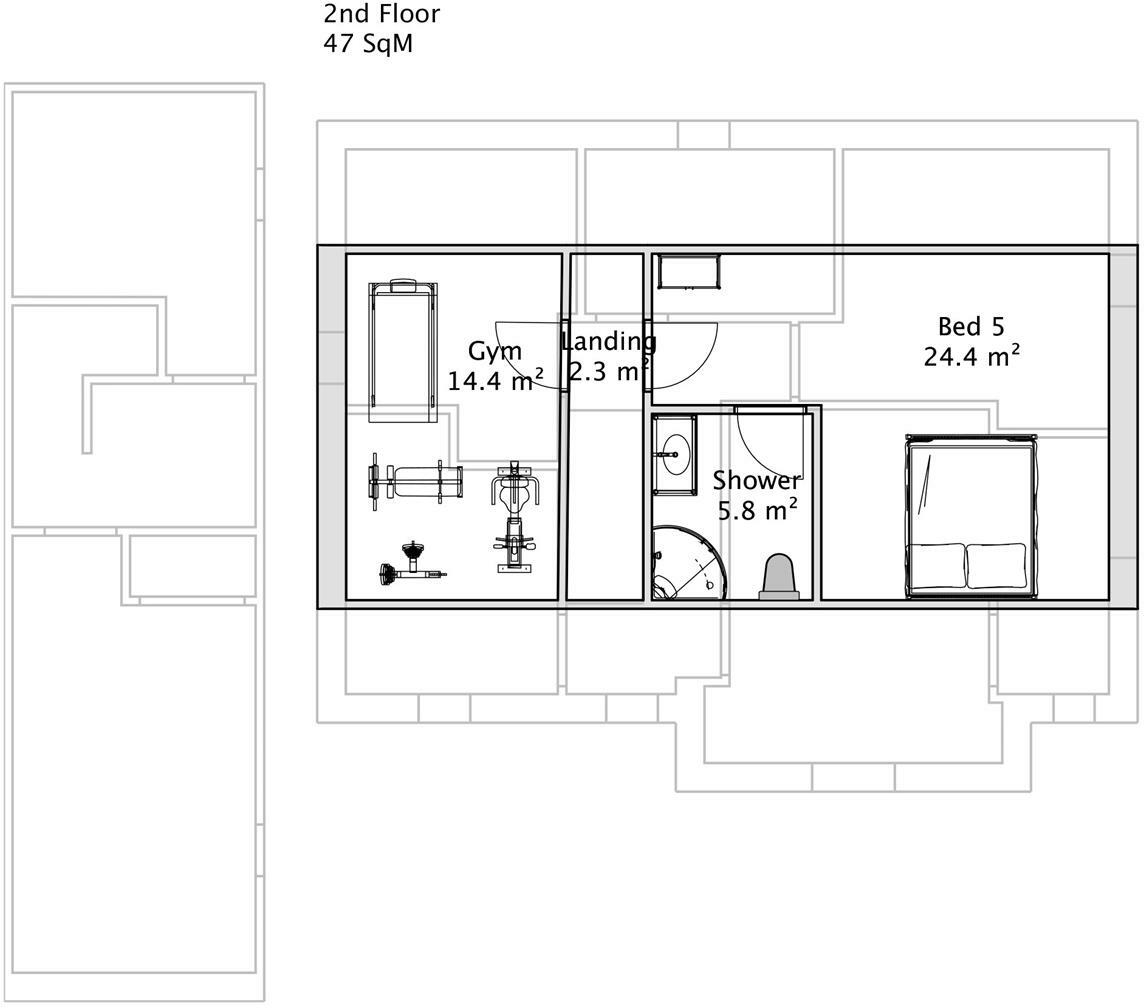
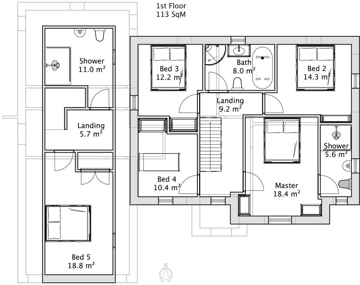
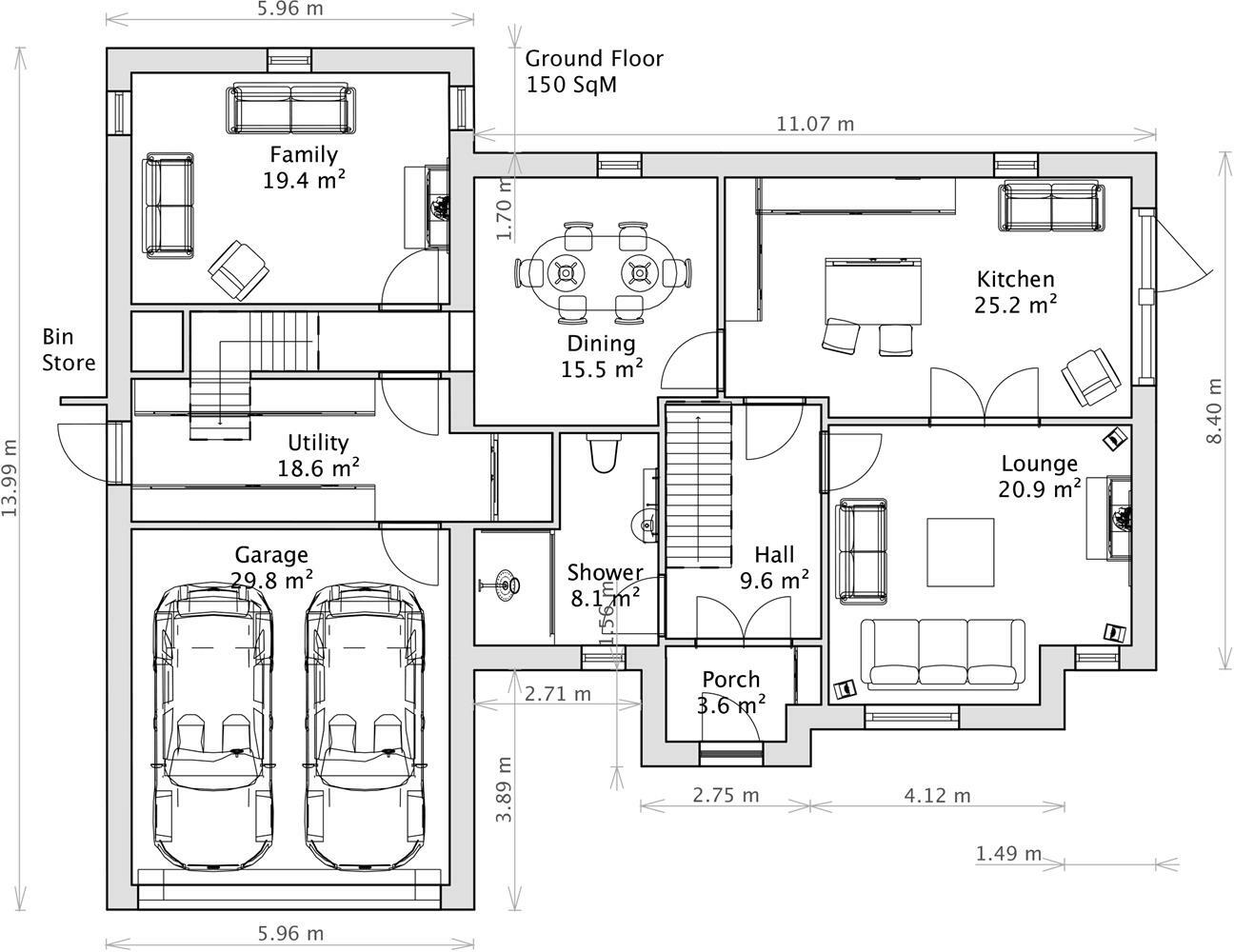
Discover a rare opportunity to create your dream family home in the heart of Roade, Northamptonshire. This enticing building plot, measuring 310 sq mts (3,336 sq ft), comes with full planning permission to construct a substantial estate featuring five to six bedrooms, four bathrooms, and extensive living spaces across three floors. The level, accessible site is ideally situated amongst a vibrant village community, boasting local shops, schools, and recreational activities, making it an attractive option for families or investors.
With convenient connections via the A508 and nearby train stations, you’ll enjoy everything from picturesque countryside walks to thrilling experiences at Silverstone race circuit. While the Community Infrastructure Levy (CIL) applies, the potential for a self-build exemption adds an appealing layer of flexibility for future owners. Given its promising location and plans in place, this plot presents an incredible chance for creative and dedicated individuals ready to realize their vision. Don’t miss out on this exclusive opportunity—secure your future today!
Plot for sale in Hartwell Road, Roade, NN7 — £325,000 • 1 bed • 1 bath • 4273 ft²
Land for sale in London Road, Roade, Northampton, NN7 — £100,000 • 1 bed • 1 bath
Plot for sale in High Street, Paulerspury, Towcester, NN12 — £120,000 • 1 bed • 1 bath • 521 ft²
Plot for sale in Tews End Lane, Paulerspury, Towcester, Northamptonshire, NN12 — £350,000 • 1 bed • 1 bath • 3078 ft²
Plot for sale in Bozenham Mill Road, Ashton, Northamptonshire, NN7 — £285,000 • 1 bed • 1 bath • 2023 ft²
Detached bungalow for sale in Kingsley Road, Kingsley, Northampton NN2 — £100,000 • 1 bed • 1 bath


























































