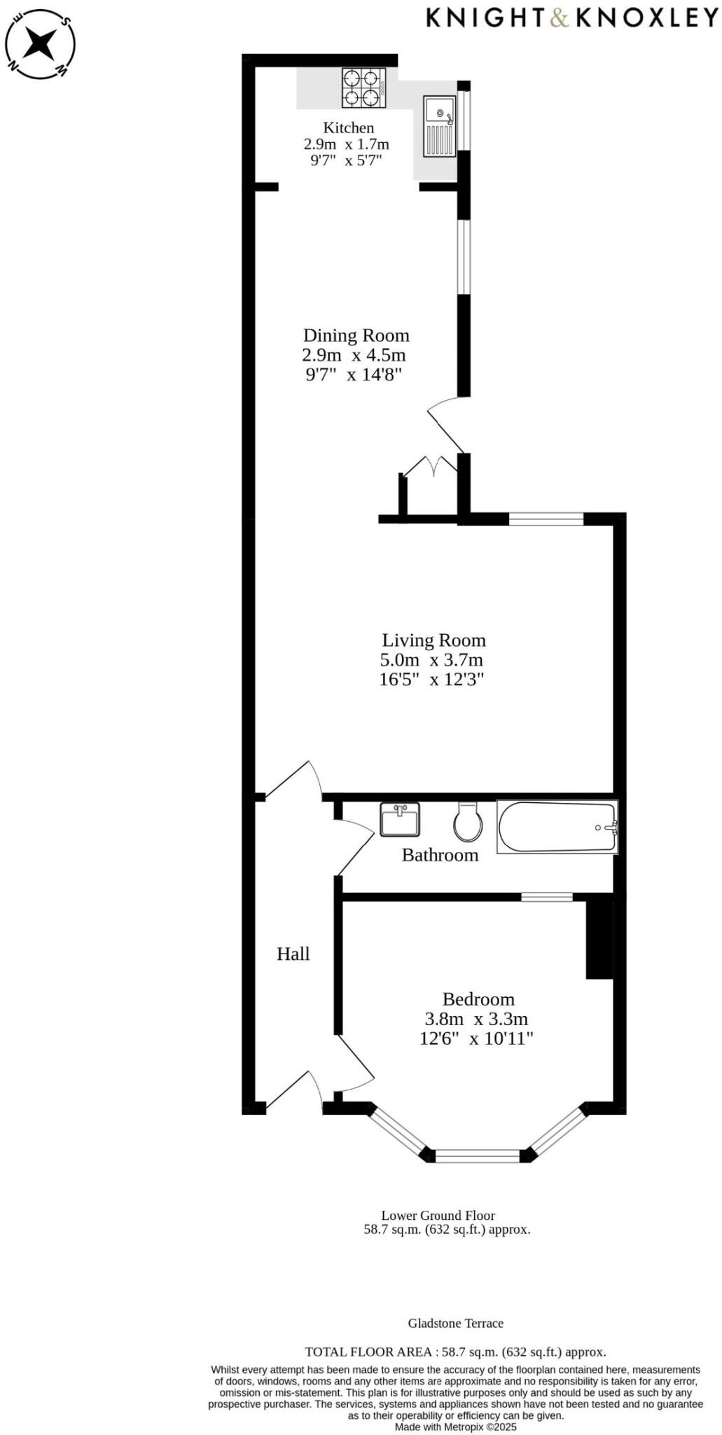
Large one‑bed garden apartment close to Brighton station and city centre.
Private ground-floor entrance with front and rear gardens
Large double bedroom with bay sash windows and high ceilings
Spacious living room with cast-iron fireplace and full-width window
Modern kitchen/diner with integrated appliances and larder cupboard
Leasehold: 106 years remaining — buyer should verify title
Service charge £504/year; very low council tax (Band A)
Victorian solid-brick walls likely uninsulated; some external redecoration needed
Located in a cosmopolitan student neighbourhood; crime rate above average
This spacious one-bedroom apartment occupies a lower/raised-ground position in an attractive Victorian terrace on Gladstone Terrace, a short walk from Brighton city centre and the mainline station. The flat benefits from its own private entrance, front and rear outdoor spaces, high ceilings and bay sash windows that deliver a light, airy feel uncommon at this price point.
The layout suits a single professional or couple: a large double bedroom, a generous through living room with a cast-iron fireplace, separate kitchen/diner and practical storage cupboards. The kitchen is modern and fitted with integrated appliances; the property is gas‑heated via boiler and radiators and double glazed.
Practical points to note: the apartment is leasehold with 106 years remaining, a modest annual service charge of £504 and very low council tax (Band A). The building is of solid brick Victorian construction, likely lacking wall insulation, and the communal and external areas could benefit from redecoration and light landscaping.
Location strengths include excellent transport links, fast broadband and easy walking access to local shops, pubs in Hanover, North Laine and the seafront. The wider area is a cosmopolitan, student‑dominated neighbourhood which brings vibrancy but can mean higher local footfall and an above‑average crime statistic compared with quieter suburbs.
Overall this is a roomy, characterful central Brighton flat with good immediate rental or owner‑occupier appeal and clear potential to add value through targeted internal upgrades and improved external maintenance.
1 bedroom apartment for sale in Gladstone Terrace, Brighton, BN2 — £240,000 • 1 bed • 1 bath • 635 ft²
1 bedroom flat for sale in Wakefield Road, Brighton, East Sussex, BN2 — £300,000 • 1 bed • 1 bath • 517 ft²
1 bedroom apartment for sale in Ewart Street, Brighton, BN2 — £240,000 • 1 bed • 1 bath • 430 ft²
1 bedroom flat for sale in Victoria Road, Brighton, BN1 — £210,000 • 1 bed • 1 bath • 479 ft²
1 bedroom apartment for sale in Gladstone Terrace, Brighton, East Sussex, BN2 — £260,000 • 1 bed • 1 bath • 584 ft²
1 bedroom flat for sale in Upper Lewes Road, Brighton, East Sussex, BN2 — £250,000 • 1 bed • 1 bath • 504 ft²














































