Move-in-ready period flat with balcony and loft potential, close to Bruce Grove station.
Recently refurbished two-bedroom Victorian conversion
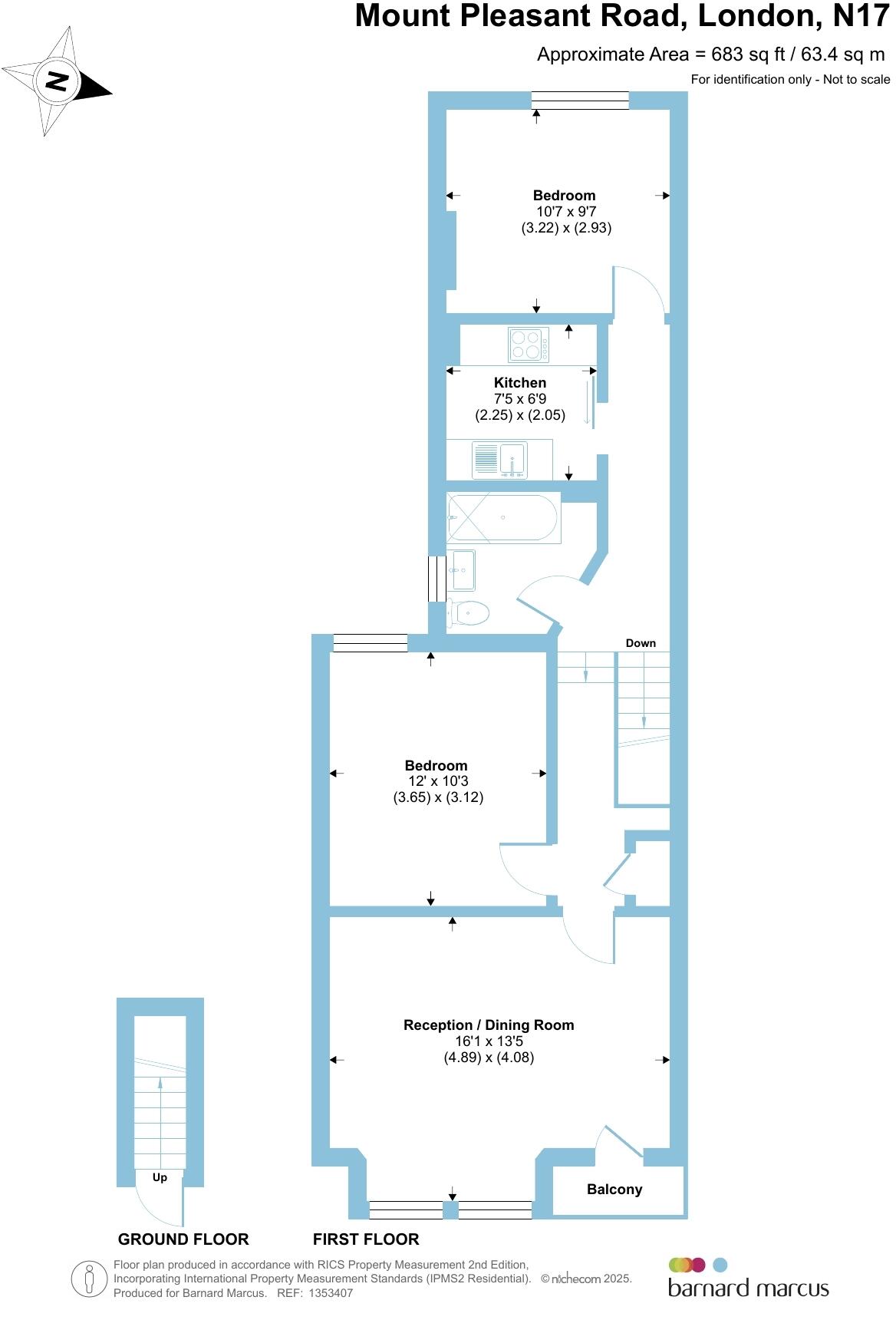
This recently refurbished two-bedroom Victorian conversion combines period charm with ready-to-move-in convenience. High ceilings, decorative plasterwork and sash-style windows give the reception room character, while the contemporary kitchen and new bathroom keep day-to-day living straightforward.
Both bedrooms face west and capture afternoon sun; a private balcony extends the living space for weekend coffee or potted plants. The flat totals around 683 sq ft and is offered with a share of freehold, giving owners more control over the building and future works.
There is scope to add value: loft extension is possible subject to planning permission (STPP). Practical considerations include a 95-year lease remaining, potential additional costs for leasehold documentation, and the building’s original solid-brick walls (likely without cavity insulation) plus double glazing installed before 2002 — sensible upgrade opportunities for improved energy efficiency.
Set on a tree-lined street 0.4 miles from Bruce Grove station, the flat sits in an area popular with established renting families and benefits from several well-rated local schools. Local amenities, good broadband and excellent mobile signal make this an attractive pick for first-time buyers wanting a period home that’s ready now, with clear scope to enhance value over time.
2 bedroom ground floor flat for sale in Mount Pleasant Road, London, N17 — £400,000 • 2 bed • 1 bath • 697 ft²
2 bedroom flat for sale in Hartham Road, Tottenham, London, N17 — £375,000 • 2 bed • 1 bath • 633 ft²
2 bedroom flat for sale in Hartham Road, Tottenham, N17 — £375,000 • 2 bed • 1 bath • 620 ft²
2 bedroom flat for sale in Woodside Gardens, London, N17 — £425,000 • 2 bed • 1 bath • 904 ft²
2 bedroom flat for sale in Hartham Road, Tottenham, London, N17 — £390,000 • 2 bed • 1 bath • 575 ft²
2 bedroom ground floor flat for sale in Mount Pleasant Road, London, N17 — £350,000 • 2 bed • 1 bath • 630 ft²






















































