YO26 6AW - 3 bed large garden semi detached in York Central, YO26 6AW

View on Property Piper

3 bedroom semi-detached house for sale in The Paddock, York, YO26

Summary - The Paddock, York YO26 6AW

3 bed 1 bath Semi-Detached

Spacious plot and upgrade potential for families or value-focused buyers.
Three bedrooms, two doubles and one single study/bedroom
Extended open-plan living dining with rear garden access
Large rear garden; potential to extend (subject to planning)
Driveway parking plus single garage for practical storage
Requires modernisation throughout; cosmetic and system updates likely
Single family bathroom only; limited shower/bath facilities
EPC rating TBC; energy performance currently unknown
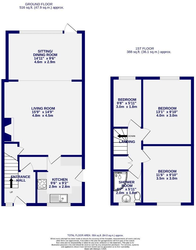
Freehold tenure; average overall footprint (approx 904 sq ft)
Set on a quiet cul-de-sac west of York, this three-bedroom semi-detached house sits on a substantially larger-than-average rear plot. The ground floor benefits from an extended open-plan living and dining area with garden views and direct access, while two double bedrooms and a third smaller room occupy the first floor. Driveway parking and a single garage add practical off-street parking.

The property requires modernisation throughout, offering clear scope to update kitchens, bathroom and finishes to current tastes. There is strong potential to extend (subject to planning permission) given the generous plot, making this an attractive opportunity for a growing family or a buyer seeking to add value.

Practical points: the home currently has one bathroom and dated interiors, and the energy performance rating is to be confirmed. Buyers should expect refurbishment works rather than a turnkey purchase. The location is convenient for local shops, good primary and secondary schools, and direct access into York.

In short, this is a family-sized home on a large plot with immediate renovation potential and possible extension opportunity. It will suit purchasers wanting a well-located property they can personalise or investors targeting capital improvement.

Property Details

Brochure Descriptions

Image Descriptions

Floorplan Description

Rooms

Textual Property Features

Target Audience

AI Tags

Detected Visual Features

Nearby Schools

Nearest Bars And Restaurants

,,,,}

Nearest General Shops

,,}

Nearest Grocery shops

,,}

Nearest Supermarkets

,,}

Nearest Religious buildings

,,}

Nearest Medical buildings

,,,}

Nearest Airports

}

Nearest Leisure Facilities

,,,,}

Nearest Tourist attractions

,,}

Nearest Train stations

,,,,}

Nearest Bus stations and stops

,,,,}

Nearest Hotels

,,}

Tags

Local Market Stats

AirBnB Data

Similar Properties

Meta

High Res Images

Compatible Images

Low res Images

Thumbnails

Raw Images

High Res Floorplan Images

Compatible Floorplan Images

Low res Floorplan Images

FloorplanImages Thumbnail

Raw Floorplan Images