Affordable shared-ownership two-bedroom with balcony and fast links to central London.
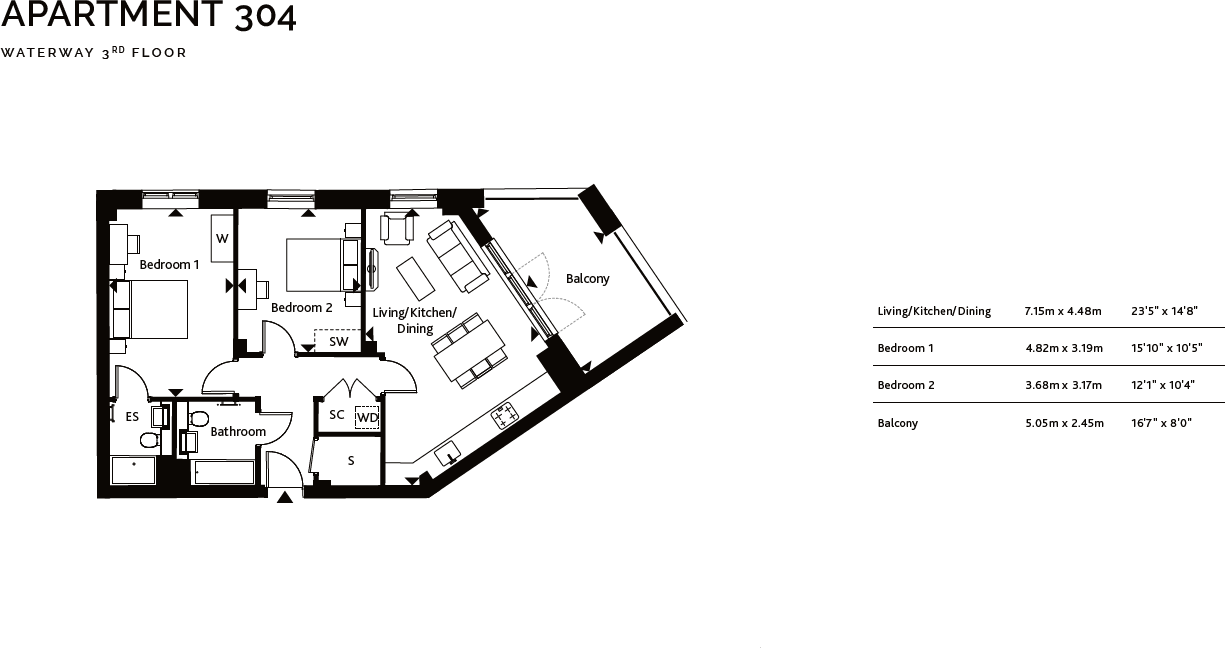
Third-floor two-bedroom with private balcony
A bright two-bedroom shared ownership flat set within a modern 2023 development beside the River Ravensbourne. The open-plan living area flows to a private balcony and benefits from energy-efficiency technology, communal roof terraces, bike storage and a 10-year build warranty for peace of mind. Transport links are strong: Lewisham station is approximately a seven-minute walk with fast services to central London and Canary Wharf.
This home is aimed at first-time buyers seeking a lower deposit route onto the ladder. The advertised 50% share value is £286,250 (full market value £572,500), with a 5% deposit from around £14,312.50 and monthly rent on the unsold share of £655.99. A completion incentive voucher of £3,500 is currently offered (terms apply).
Be clear on practicalities: the property is leasehold and sold via shared ownership. Local services are plentiful — shops, cafes, schools and green space are close — but the immediate area has above-average crime rates and pockets of deprivation. The building uses a community heating scheme; check service charges and lease length before committing.
Overall, this is a modern, low-maintenance option for buyers wanting fast transport into London and a lower-cost entry through shared ownership, provided you’re comfortable with the inner-city environment and communal tenure arrangements.
3 bedroom flat for sale in Silver Road, London, SE13 — £172,500 • 3 bed • 2 bath • 1024 ft²
2 bedroom flat for sale in Silver Road, London, SE13 — £140,000 • 2 bed • 2 bath • 630 ft²
2 bedroom flat for sale in Silver Road, London, SE13 — £280,000 • 2 bed • 2 bath • 758 ft²
2 bedroom flat for sale in Silver Road, London, SE13 — £196,000 • 2 bed • 1 bath • 758 ft²
3 bedroom flat for sale in Silver Road, London, SE13 — £245,000 • 3 bed • 2 bath • 1042 ft²
1 bedroom flat for sale in Silver Road, London, SE13 — £107,500 • 1 bed • 1 bath • 544 ft²


















































