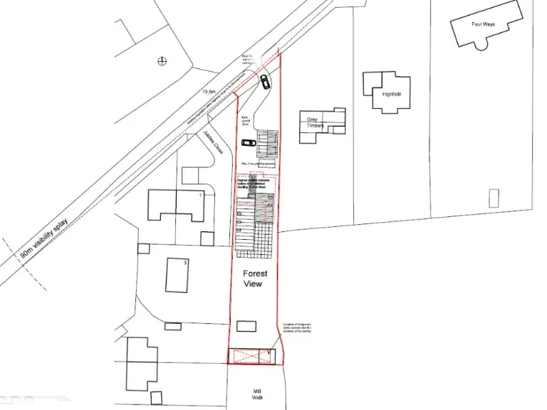
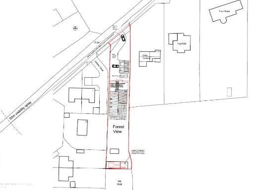
Large plot with active planning for a low-energy four-bedroom replacement home.
- Planning permission granted for a four-bed passive barn-style replacement
- Double garage construction started; planning active and registered with council
- Generous plot of around one third of an acre, abutting farmland
- Existing property requires renovation throughout or demolition option
- Oil-fired boiler, pre-2002 double glazing, assumed uninsulated cavity walls
- CIL charge applies; seller to settle after sale completion
- Off-street parking and south-facing rear garden with patio
- Broadband and mobile signal average; no recent flood risk
Set on around a third of an acre in peaceful Blaxhall, this detached two-bedroom bungalow offers clear scope for a buyer seeking renovation or redevelopment. Planning permission is granted and active to demolish and replace the existing dwelling with a four-bedroom barn-style passive house; works on a double garage have already started and the seller will settle the CIL charge post-completion. The passive-house design promises very low running costs once built.
The current bungalow provides a practical, traditional layout (entrance hall, living room, kitchen/diner, two double bedrooms, bathroom and a large storage/home office) across approximately 1,000 sq ft. The property needs renovation throughout and has older oil-fired boiler heating, pre-2002 double glazing and assumed uninsulated cavity walls — factors a buyer should budget to upgrade if retaining the existing house.
Positioned in a quiet hamlet that abuts farmland, the plot enjoys a south-facing rear garden, patio and good driveway parking. Local amenities include a village pub, church and hall, with schools rated Good nearby and easy access to walks and rural character. Broadband and mobile are average; there is no recent flooding history and crime levels are very low.
This is a compelling opportunity for someone wanting to build a low-energy family home in a tranquil countryside setting, or for a renovator/investor prepared to carry out works. All planning documentation is registered with the council and viewings should focus on the site potential as much as the existing accommodation.
3 bedroom detached bungalow for sale in Chillesford, Woodbridge, IP12 — £575,000 • 3 bed • 2 bath • 1787 ft²
3 bedroom detached bungalow for sale in Judith Avenue, Knodishall, Saxmundham, IP17 — £425,000 • 3 bed • 1 bath • 1843 ft²
4 bedroom bungalow for sale in Bromeswell, Suffolk, IP12 — £395,000 • 4 bed • 2 bath • 2234 ft²
4 bedroom detached bungalow for sale in Shop Road, Clopton, IP13 6QP, IP13 — £550,000 • 4 bed • 2 bath • 1512 ft²
3 bedroom semi-detached house for sale in Heath Walk, Blaxhall, Woodbridge, Suffolk, IP12 — £260,000 • 3 bed • 1 bath • 915 ft²
3 bedroom detached house for sale in Stone Common, Blaxhall, Woodbridge, Suffolk, IP12 — £400,000 • 3 bed • 1 bath • 1028 ft²


















































