Spacious family home with garden and driveway close to shops and transport.
Three bedrooms and one family bathroom
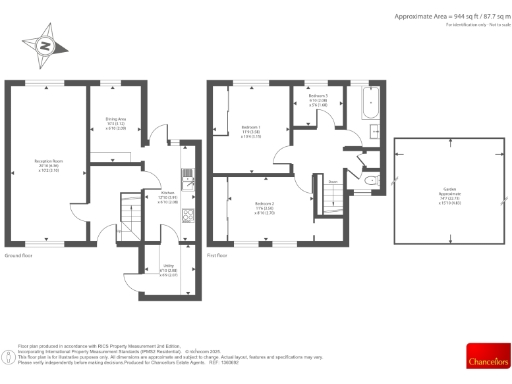
A solid mid-century three-bedroom semi-detached house in Rose Hill, offering comfortable family living within easy reach of Oxford city centre. The ground floor includes a bright living room, separate dining area and a kitchen with a useful separate utility room — practical spaces for everyday family routines. The landscaped rear garden and driveway parking are strong lifestyle benefits for families and commuters.
The property is freehold and spans about 944 sq ft across two storeys, with gas central heating and double glazing. Built in the 1950s–60s as a system-built home, the walls are assumed to lack modern insulation — buyers should budget for potential upgrade work to improve thermal performance and running costs. There is one family bathroom serving three bedrooms.
Location is a key selling point: 0.7 miles from Rose Hill shops and about 2.5 miles from Oxford city centre, with good road links to the ring road, A34 and M40. Local amenities, green spaces and bus routes are nearby, but note the wider area scores as deprived and local crime is above average. Schools in the area vary in Ofsted ratings, so check specific catchments if schooling is a priority.
This home suits first-time buyers upsizing from a smaller flat, couples or young families seeking a well-located property with scope to add value through energy and cosmetic improvements. The house is presented as a comfortable live-in option but will benefit from targeted maintenance and insulation upgrades to modernise and reduce running costs.
3 bedroom semi-detached house for sale in Newlin Close, Oxford, OX4 — £290,000 • 3 bed • 1 bath • 830 ft²
4 bedroom semi-detached house for sale in Thames View Road, Oxford, Oxfordshire, OX4 — £415,000 • 4 bed • 1 bath • 1236 ft²
3 bedroom terraced house for sale in Lambourn Road, Oxford, OX4 — £375,000 • 3 bed • 1 bath • 846 ft²
3 bedroom semi-detached house for sale in Napier Road, Oxford, OX4 — £425,000 • 3 bed • 1 bath • 884 ft²
4 bedroom terraced house for sale in St. Martins Road, Oxford, OX4 — £450,000 • 4 bed • 2 bath • 885 ft²
3 bedroom semi-detached house for sale in Stanway Road, Oxford, OX3 — £450,000 • 3 bed • 2 bath • 940 ft²


















































































