Four-bed semi with garage, garden and high-yield solar — scope to modernise and add value.
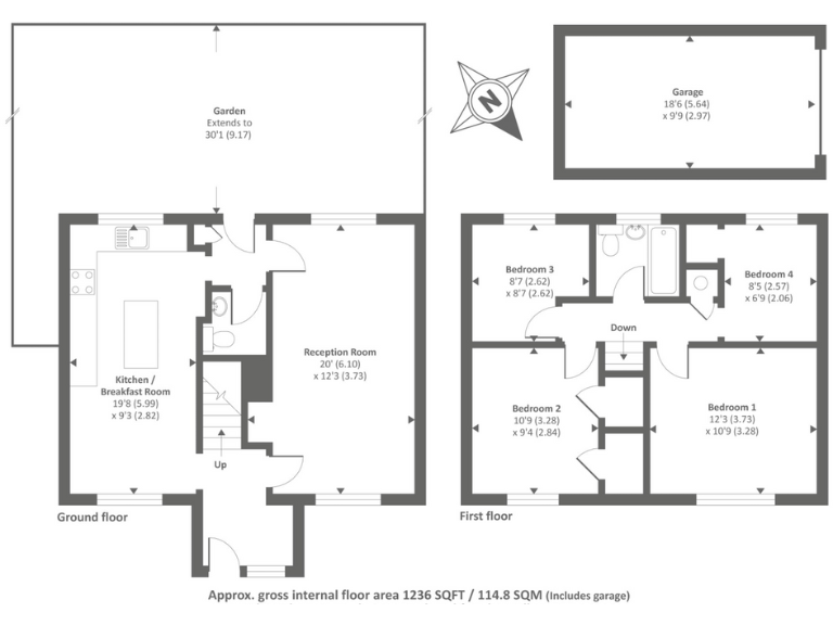
- Four bedrooms across two floors, suitable for families or rental income
- Large reception room and kitchen/diner with island, good natural light
- Private front and rear gardens, side access, single garage and outbuilding
- Solar panels on a high-yield feed-in tariff reduce running costs
- Constructed 1950s–1960s; cavity walls likely without added insulation
- Dated external and internal wear; cosmetic renovation likely required
- Only one family bathroom for four bedrooms
- Area: deprived classification and above-average crime rates
A spacious four-bedroom semi-detached house arranged over two floors, offering generous living space for families or investors. Ground floor comprises a large reception room, kitchen/diner with island and downstairs WC; upstairs provides two double bedrooms, two further bedrooms and a family bathroom. The property benefits from a private front and rear garden, side and rear access, a single garage and an outbuilding.
Practical running costs are helped by solar panels on a high-yield feed-in tariff and mains gas central heating with a boiler and radiators. The house is freehold and of mid-20th century construction, with double glazing fitted (install date unknown) and cavity walls that appear to lack added insulation — an opportunity to improve energy efficiency further.
Location is convenient for everyday needs: short walks to local shops, parks and bus routes, with Sainsbury’s and Florence Park a five-minute drive. Nearby green spaces along the River Thames and Rivermead nature park add outdoor amenity. Local schools are mixed in performance; options include Good-rated primaries and secondary provision that requires improvement.
Notable considerations: the area scores as deprived with above-average crime and the house shows dated external and internal wear consistent with needing cosmetic updating or possible targeted renovation. There is only one family bathroom for four bedrooms. Buyers seeking value can add insulation, modernise finishes and capitalise on the solar income to improve both comfort and resale potential.
3 bedroom terraced house for sale in Nowell Road, Oxford, OX4 — £360,000 • 3 bed • 2 bath • 851 ft²
4 bedroom semi-detached house for sale in Rose Hill, Iffley Borders, Oxford, OX4 — £500,000 • 4 bed • 1 bath • 1252 ft²
3 bedroom terraced house for sale in Overmead, Abingdon, OX14 — £300,000 • 3 bed • 1 bath • 904 ft²
3 bedroom semi-detached house for sale in Westminster Way, Oxford, Oxfordshire, OX2 — £500,000 • 3 bed • 3 bath • 1002 ft²
4 bedroom end of terrace house for sale in Reliance Way, Oxford, Oxfordshire, OX4 — £600,000 • 4 bed • 2 bath • 1484 ft²
4 bedroom semi-detached house for sale in Glanville Road, Oxford, OX4 — £975,000 • 4 bed • 3 bath • 1335 ft²






































