TS5 5DW - 1 bed investors rental flat in Clough Close, TS5 5DW

View on Property Piper

1 bedroom flat for sale in Clough Close, Middlesbrough, TS5

Summary - 15, Clough Close,MIDDLESBROUGH,TS5 5DW TS5 5DW

1 bed 2 bath Flat

Occupied, income-producing flat with private parking and strong gross yield.
One-bedroom flat with two bathrooms including en-suite
A compact one-bedroom flat in Clough Close, offered with an established long-term tenant and immediate rental income. The building is modern and low-maintenance, with private off-street parking and a communal front garden, making day-to-day management straightforward for a landlord. Broadband and mobile signals are strong locally, supporting tenant demand.

Financially this is a clear investment proposition: current annual gross rent is £6,240 against a purchase price of £53,000, producing a gross yield of about 11.8%. The tenant wishes to remain, so the property delivers occupied income from day one and suits investors seeking steady returns or portfolio growth.

Buyers should note material considerations: the property is leasehold with around 90 years remaining, it sits in a relatively deprived area with higher-than-average crime rates, and a buyer’s premium will apply to the sale. These factors affect mortgage options, resale prospects and management approach and should be priced into any offer.

Overall this flat is best for an investor or developer comfortable managing tenanted stock in urban locations. It offers immediate cashflow and simple, practical features but requires realistic expectations about local market challenges and leasehold terms.

Property Details

Brochure Descriptions

Image Descriptions

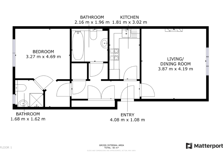
Floorplan Description

Rooms

Textual Property Features

Target Audience

AI Tags

Detected Visual Features

Nearby Schools

Nearest Bars And Restaurants

,,,,}

Nearest General Shops

,,}

Nearest Grocery shops

,,}

Nearest Supermarkets

,,}

Nearest Religious buildings

,,}

Nearest Medical buildings

,,,}

Nearest Leisure Facilities

,,,,}

Nearest Tourist attractions

,,}

Nearest Train stations

,,,,}

Nearest Bus stations and stops

,,,,}

Nearest Hotels

,,}

Tags

Local Market Stats

AirBnB Data

Similar Properties

Meta

High Res Images

Compatible Images

Low res Images

Thumbnails

Raw Images

High Res Floorplan Images

Compatible Floorplan Images

Low res Floorplan Images

FloorplanImages Thumbnail

Raw Floorplan Images