Large central village home with garden and scope to modernise and add value.
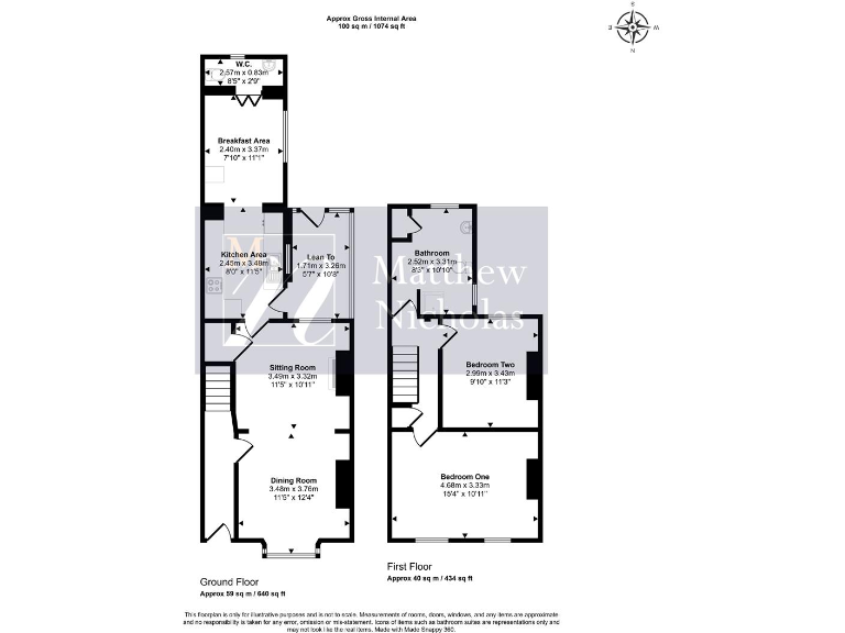
- Spacious 1,074 sq ft period semi with bay windows
- Refitted kitchen and separate breakfast area
- South-facing rear garden and small private driveway
- Gas central heating with radiators, mains supplies
- Two double bedrooms and a large four-piece bathroom
- Solid brick walls likely uninsulated; upgrade potential
- Some dated decor and wear; needs modernisation in places
- Local crime rate above average; consider security improvements
A roomy Victorian semi in the heart of Wollaston, this two-bedroom home combines period character with practical updates. Large bay windows, high ceilings and a generous sitting-and-dining layout give flexible living space for family life or home working.
The property already benefits from PVCu double glazing, a refitted kitchen with breakfast area and a gas-fired radiator heating system. A south-facing rear garden and a small private driveway add outdoor space and convenience. The upstairs bathroom is large and fitted with accessible bathing options.
The house offers clear potential to personalise further — cosmetic updating and thermal improvements would add value. Note the solid brick walls (likely uninsulated as built) and some dated internal decor; buyers should factor in modernisation and possible insulation works. Crime in the area is above average, so consider security measures when viewing. Council tax is very low, and the location is close to good primary and secondary schools and local amenities.
2 bedroom semi-detached house for sale in Stone Close, Wollaston, NN29 — £239,995 • 2 bed • 1 bath • 872 ft²
2 bedroom terraced house for sale in Hinwick Road, Wollaston, Wellingborough, NN29 — £190,000 • 2 bed • 1 bath • 762 ft²
3 bedroom detached house for sale in Holyoake Road, Wollaston, Wellingborough, NN29 — £324,995 • 3 bed • 1 bath • 884 ft²
2 bedroom detached bungalow for sale in South Street, Wollaston, NN29 — £375,000 • 2 bed • 1 bath • 1192 ft²
3 bedroom end of terrace house for sale in Irchester Road, Wollaston, Wellingborough, NN29 — £280,000 • 3 bed • 1 bath • 1245 ft²
4 bedroom semi-detached house for sale in Park Road, Wellingborough, NN8 — £300,000 • 4 bed • 1 bath • 1217 ft²






































































