Bright living, private garden and elevated countryside outlook for family life.
Chain free detached family house over three floors
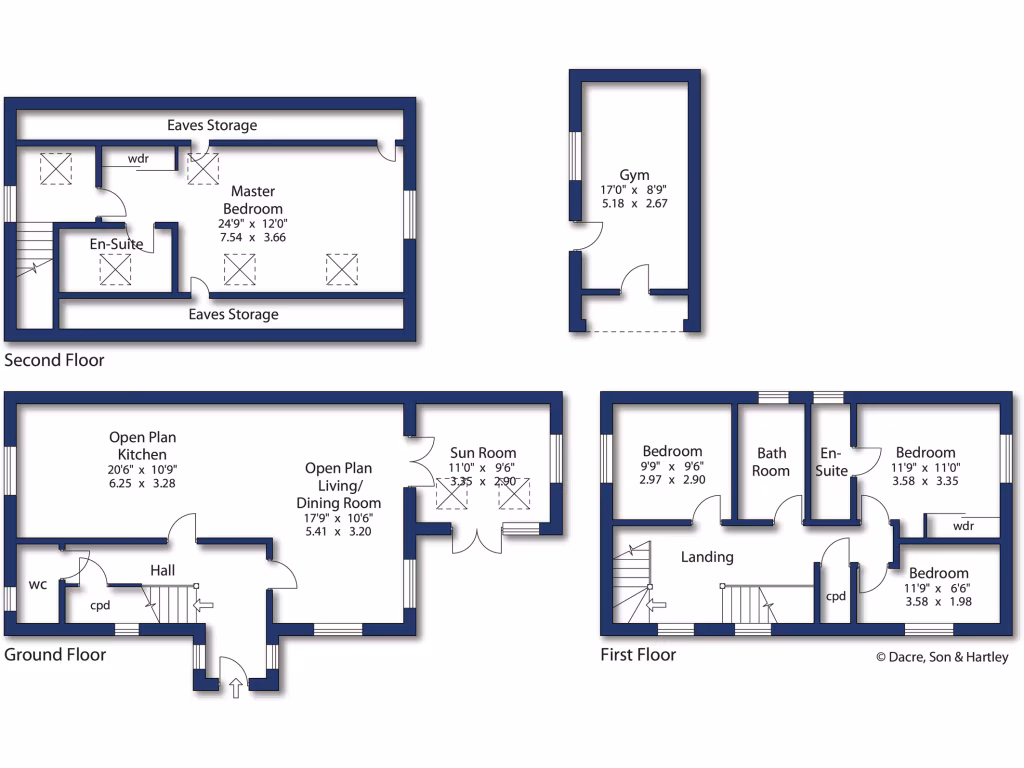
A substantial four-bedroom detached family home arranged over three floors, offering bright, flexible accommodation and far-reaching countryside views. The ground floor features open-plan living/dining/kitchen space with a wood-burning stove and a sun room that opens onto a private, enclosed garden — ideal for family life and entertaining. The property is presented to a good standard with quality kitchen fittings, electric underfloor heating on the ground floor and ample built-in storage throughout.
Upstairs provides three further bedrooms, two en-suites and a principal suite on the second floor with fitted wardrobes and Velux windows. The detached garage has been converted into a powered home gym but retains a small storage room and loft access. Off-street parking is available on a block‑paved driveway and the location benefits from very low local crime, excellent mobile signal and fast broadband — useful for home working and family connectivity.
Practical points to note: the property is offered chain free and sold freehold, with a modest annual maintenance charge of £100 for communal green areas and play space. Council tax is Band F and will be a higher running cost than lower bands. The house sits on a decent plot with well-maintained stone-flagged patio and lawned areas but the garage conversion means the original double-garage parking and storage have been altered.
Located on the fringe of Skipton town centre, the home is within easy reach of local schools, shops, rail and bus links while enjoying a quiet, elevated position with attractive long-distance views. The combination of generous living space, outside areas and convenient town access makes this a strong option for growing families seeking move-in ready accommodation.
4 bedroom detached house for sale in Hepworth Way, Skipton, North Yorkshire, BD23 — £515,000 • 4 bed • 3 bath • 1475 ft²
5 bedroom detached house for sale in Close House Road, Skipton, North Yorkshire, BD23 — £675,000 • 5 bed • 4 bath • 1509 ft²
4 bedroom detached house for sale in Clark House Way, Skipton, North Yorkshire, BD23 — £600,000 • 4 bed • 2 bath • 1366 ft²
4 bedroom detached house for sale in 14 Hepworth Way, Skipton, BD23 2UH, BD23 — £485,000 • 4 bed • 2 bath • 1192 ft²
3 bedroom house for sale in Gainsborough Court, Skipton, North Yorkshire, BD23 — £415,000 • 3 bed • 2 bath • 969 ft²
4 bedroom detached house for sale in 24 Close House Road, Skipton, North Yorkshire, BD23 6DN, BD23 — £625,000 • 4 bed • 2 bath • 1481 ft²


































































































