Four-bedroom detached home with large garden and sun room — scope to modernise..
Four generous bedrooms and two bathrooms
Large private garden with patio, greenhouse and brick shed
Stunning sun room opening onto landscaped gardens
Integral garage and private driveway parking
Double glazing installed; oil-fired central heating
Kitchen requires updating — good scope for renovation
Slow broadband and higher-than-average council tax
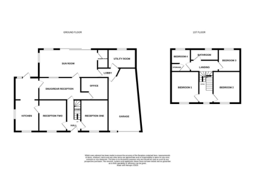
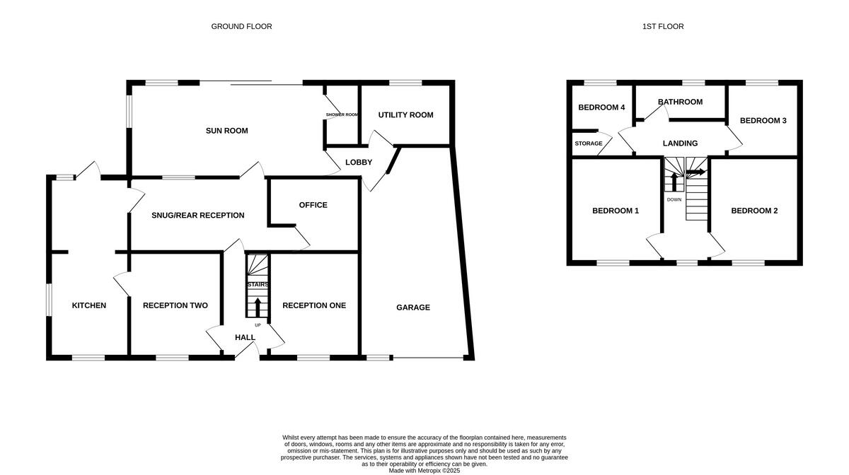
This four-bedroom detached house sits on a large plot in Rollesby village, combining period-style brickwork and generous room sizes. The layout includes two reception rooms, a cosy snug, a practical office and a stunning sun room that opens onto landscaped gardens — a clear family-focused floorplan.
The property benefits from double glazing and oil-fired central heating with a boiler and radiators. An integral garage, private driveway and useful outbuildings (greenhouse and brick shed) add practicality. The kitchen requires updating, offering clear potential for a contemporary refit to increase comfort and value.
Practical considerations: broadband speeds in the area are slow, main heating is oil (not a community supply), and council tax is above average. The house is freehold, has no flood risk and sits in a very low-crime, peaceful village location, though the immediate area is classified as remoter and ageing rural.
This will suit buyers seeking a sizeable family home with character and outdoor space, or those wanting renovation potential in a quiet Norfolk Broads-adjacent village. Local primary schools are rated Good; secondary provision is mixed. Viewings are recommended to appreciate the garden, sun room and scope for improvement.
 4 bedroom detached bungalow for sale in Main Road, Rollesby, NR29 — £300,000 • 4 bed • 2 bath • 1206 ft²
 4 bedroom detached bungalow for sale in Main Road, Rollesby, NR29 — £300,000 • 4 bed • 2 bath • 1206 ft² 4 bedroom detached house for sale in Martham Road, Rollesby, NR29 — £475,000 • 4 bed • 3 bath • 1902 ft²
 4 bedroom detached house for sale in Martham Road, Rollesby, NR29 — £475,000 • 4 bed • 3 bath • 1902 ft² 4 bedroom detached bungalow for sale in Rectory Close, Rollesby, NR29 — £465,000 • 4 bed • 2 bath • 2003 ft²
 4 bedroom detached bungalow for sale in Rectory Close, Rollesby, NR29 — £465,000 • 4 bed • 2 bath • 2003 ft² 3 bedroom terraced house for sale in Court Road, Rollesby, NR29 — £230,000 • 3 bed • 1 bath • 2442 ft²
 3 bedroom terraced house for sale in Court Road, Rollesby, NR29 — £230,000 • 3 bed • 1 bath • 2442 ft² 4 bedroom semi-detached house for sale in Main Road, Rollesby, NR29 — £245,000 • 4 bed • 1 bath • 840 ft²
 4 bedroom semi-detached house for sale in Main Road, Rollesby, NR29 — £245,000 • 4 bed • 1 bath • 840 ft² 3 bedroom detached bungalow for sale in Court Road, Rollesby, NR29 — £325,000 • 3 bed • 2 bath • 1367 ft²
 3 bedroom detached bungalow for sale in Court Road, Rollesby, NR29 — £325,000 • 3 bed • 2 bath • 1367 ft²














































































































































