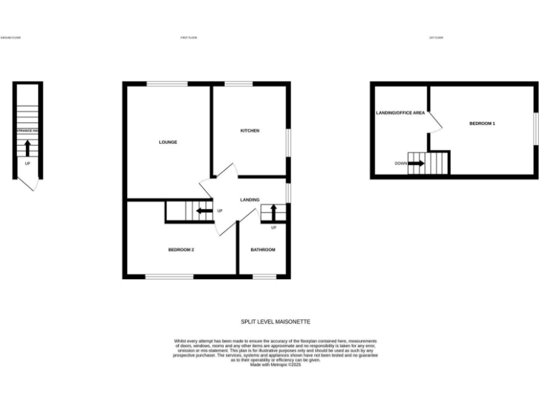
**Standout Features:**
- Split-level maisonette in popular Fareham location
- Two spacious double bedrooms
- Modern fitted kitchen and bathroom
- Newly landscaped enclosed rear garden
- Designated parking space
- Short walk to town centre and train station
- Excellent broadband speed and mobile signal
**Concise Summary:**
Discover the charm of this delightful split-level maisonette nestled on Paxton Road, Fareham, perfect for first-time buyers or investors alike. This well-presented home features two generous double bedrooms, a stylish modern kitchen, and a bright lounge/diner, creating an inviting environment for relaxation and entertaining. The newly landscaped enclosed garden offers a peaceful retreat, ideal for outdoor gatherings or quiet moments.
With a designated parking space and the convenience of nearby transport links to the town centre, this property ensures easy access to shops, restaurants, and local amenities. While the property is in good condition, potential buyers should be mindful of its leasehold status and the modest service charge. Don't miss the opportunity to secure this lovely home that perfectly balances comfort and practicality in an aspiring urban neighborhood. Act fast—properties like this don't last long!
2 bedroom maisonette for sale in Longfield Avenue, Fareham, PO14 — £170,000 • 2 bed • 1 bath • 776 ft²
1 bedroom maisonette for sale in Elms Road, Fareham, Hampshire, PO16 — £155,000 • 1 bed • 1 bath • 510 ft²
2 bedroom maisonette for sale in Bedford Drive, Fareham, Hampshire, PO14 — £205,000 • 2 bed • 2 bath • 689 ft²
2 bedroom maisonette for sale in St. Annes Grove, Fareham, PO14 — £209,995 • 2 bed • 1 bath • 409 ft²
2 bedroom maisonette for sale in Cannock Walk, Fareham, Hampshire, PO14 — £150,000 • 2 bed • 1 bath • 666 ft²
2 bedroom maisonette for sale in Ramillies House, Fareham, PO14 — £195,000 • 2 bed • 1 bath • 807 ft²






















































