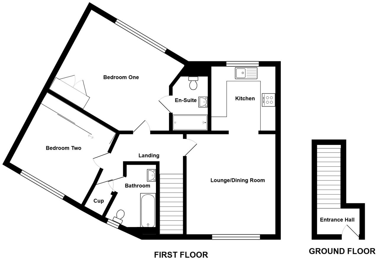
**Standout Features:**
- Two spacious double bedrooms, each with built-in wardrobes
- First-floor maisonette with modern design
- En-suite bathroom in the main bedroom
- Two allocated off-street parking spaces
- Well-equipped kitchen with built-in oven
- Fast broadband and excellent mobile signal
- Convenient location near J9 of the M27, Whiteley, and Fareham town center
- No chain, making for a quick move
This well-presented two-bedroom first-floor maisonette combines modern living with comfort, ideal for families or first-time buyers. Spanning 689 square feet, the property features generous double bedrooms, including an en-suite, ensuring privacy and convenience. The modern kitchen boasts built-in appliances and sets a minimalist tone that echoes throughout the home. With two dedicated off-street parking spaces and the added security of double glazing, this maisonette is both practical and stylish.
Explore the tranquil garden space and savor the peaceful community atmosphere, which is complemented by nearby amenities, including parks and schools rated within the top 10%. While the property boasts contemporary charm, it is also positioned for future personalization, allowing for your unique touch. With a competitive price of £205,000 in an affluent area, this opportunity won't last long—secure your viewing today and imagine the comfortable lifestyle this home offers. Don't miss out on this fantastic chance for stylish, low-maintenance living in a prime location!
2 bedroom maisonette for sale in Girton Close, Fareham, PO14 — £210,000 • 2 bed • 1 bath • 560 ft²
2 bedroom maisonette for sale in St. Annes Grove, Fareham, PO14 — £209,995 • 2 bed • 1 bath • 409 ft²
2 bedroom maisonette for sale in Westland Drive, Lee-on-the-Solent, Hampshire, PO13 — £220,000 • 2 bed • 1 bath • 737 ft²
2 bedroom maisonette for sale in Bedford Drive, PARK GATE Fareham, PO14 — £200,000 • 2 bed • 2 bath • 526 ft²
2 bedroom maisonette for sale in Seward Green, Hythe, SO45 — £230,000 • 2 bed • 1 bath • 614 ft²
2 bedroom apartment for sale in Chalford Grange, Fareham, Hampshire, PO15 — £210,000 • 2 bed • 1 bath • 679 ft²














































