Spacious four-bedroom home set in 2.5 acres with large outbuildings.
Approximately 2.5 acres with large barn and multiple outbuildings
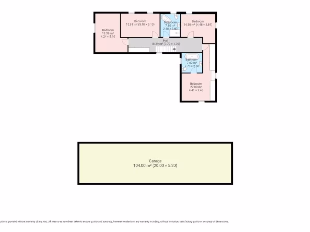
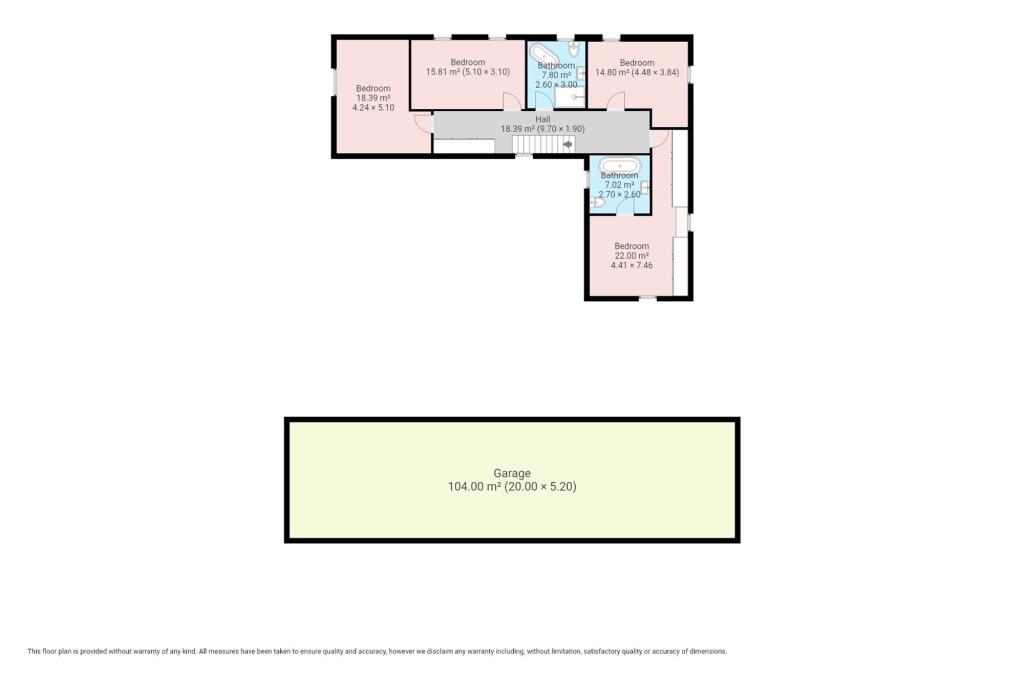
This converted barn sits in approximately 2.5 acres, offering rural seclusion with practical outbuildings. The house provides four bedrooms (master with en‑suite), a conservatory, modern kitchen with island, lounge/diner and a snug — living spaces arranged for family life and occasional entertaining. A large barn and additional outbuildings create genuine scope for equestrian use, hobby farming or storage and possible income opportunities.
The property is solid-brick, built before 1900, with double glazing added after 2002 and an EPC rating of C. Heating is by an LPG boiler and radiators; there is no assumed wall insulation in the original brickwork. Broadband speeds are very slow and mobile signal is average, so the location suits buyers who prioritise countryside living over superfast connectivity.
Practical considerations are straightforward: long private driveway and off-street parking, large plot requiring routine grounds maintenance, and an elevated council tax band described as expensive. Crime levels in the local area register above average; the hamlet is quiet and fairly isolated. Overall this is a strong option for families or buyers seeking rural lifestyle potential who are comfortable managing upkeep, energy costs from LPG, and connectivity limits.
4 bedroom detached house for sale in Main Street, Beeford, Driffield, YO25 — £700,000 • 4 bed • 2 bath • 3155 ft²
4 bedroom detached house for sale in The Shires, Main Street, Beeford, YO25 8AY, YO25 — £700,000 • 4 bed • 2 bath • 3723 ft²
5 bedroom semi-detached house for sale in Camerton Hall Lane, Camerton, Hull, HU12 9NP, HU12 — £695,000 • 5 bed • 2 bath • 2745 ft²
4 bedroom barn conversion for sale in The Stables, Camerton Hall Lane, Camerton, Hull, HU12 9NP, HU12 — £585,000 • 4 bed • 2 bath • 2260 ft²
4 bedroom barn conversion for sale in The Hay Barn, Bewholme Road, Atwick YO25 — £695,000 • 4 bed • 2 bath • 2110 ft²
6 bedroom detached house for sale in Greens Lane, Burton Pidsea, Hull, HU12 — £875,000 • 6 bed • 4 bath • 5792 ft²






















































































































