**Standout Features:**
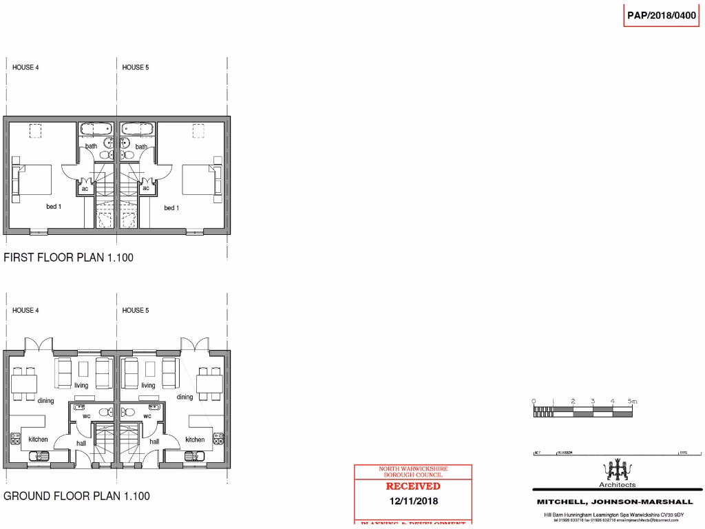
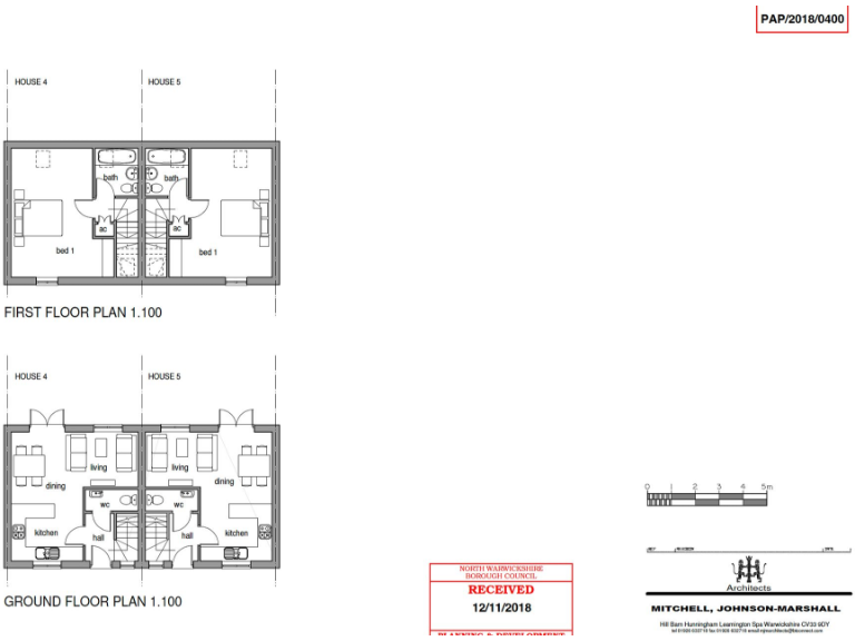
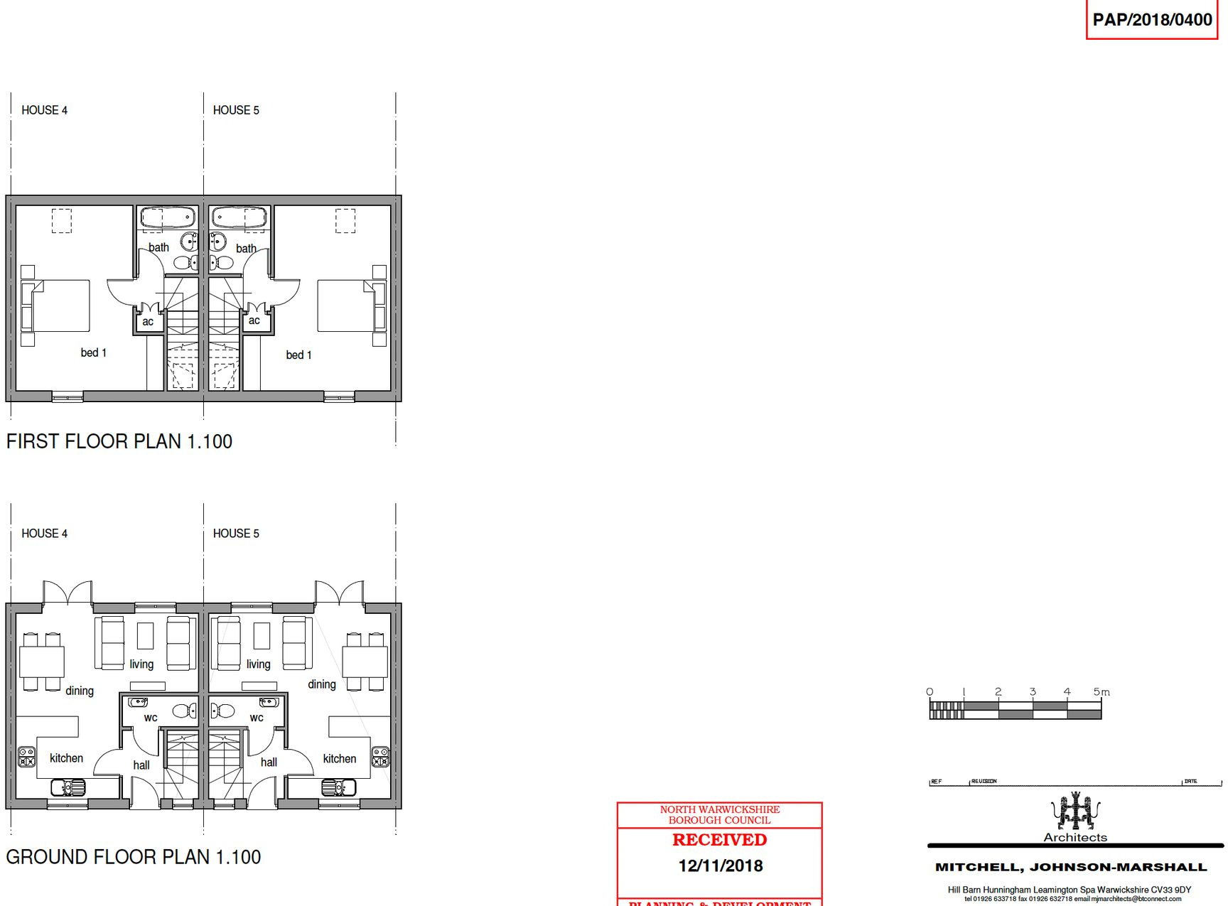
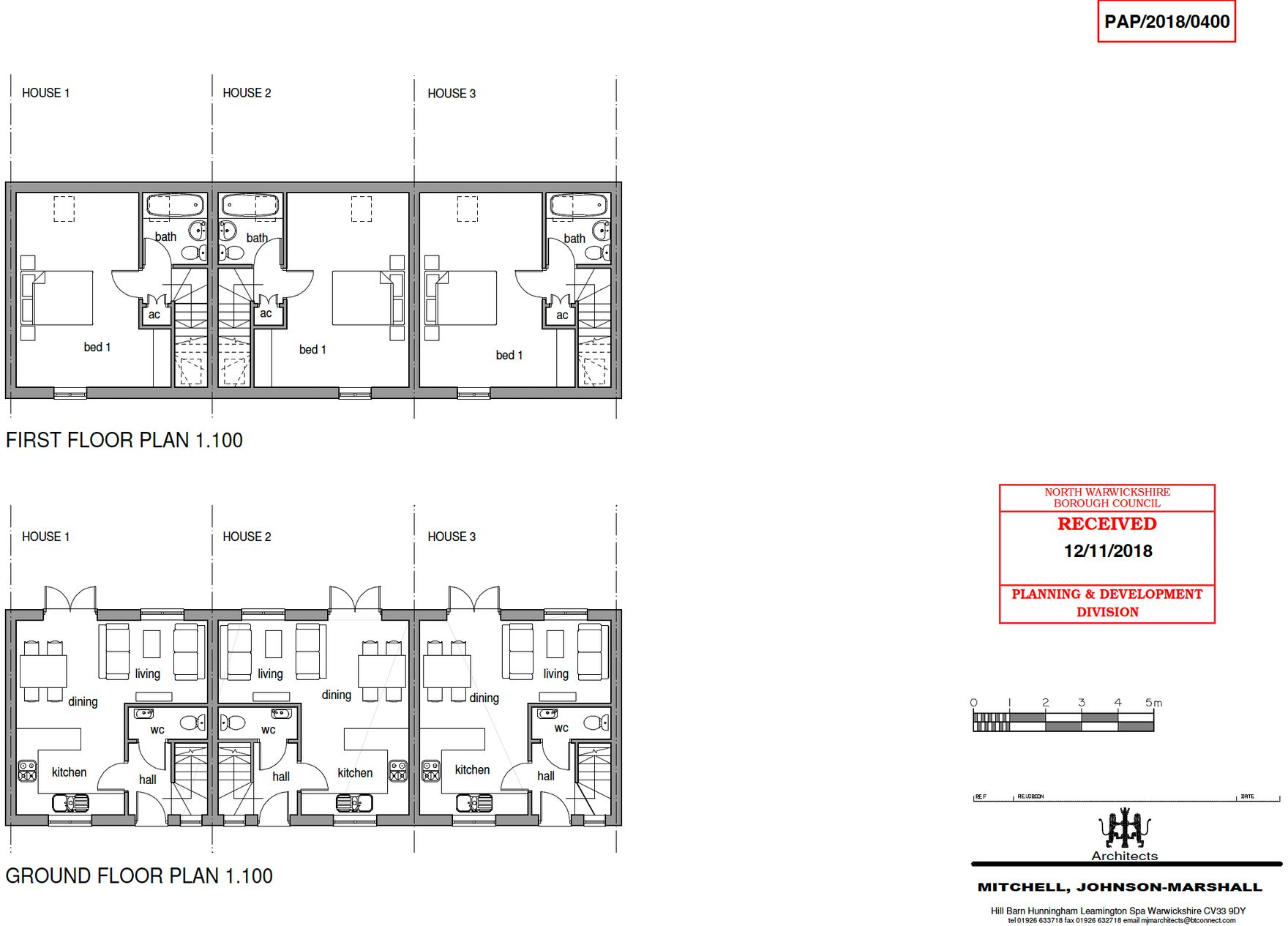
- **Development Opportunity:** Full planning approval for 5 one-bedroom detached homes and a coach house.
- **Prime Location:** Situated on Market Street in Polesworth with excellent transport links to A5, M69, and M6.
- **Current Condition:** Foundations for two plots completed, showcasing solid groundwork progress.
- **Large Plot Size:** Offers ample space for development with the potential for further expansion.
- **Community Amenities:** Close to schools, shops, and recreational facilities providing a family-friendly atmosphere.
This exceptional residential development site presents a unique chance for investors and builders to capitalize on a prime location in the charming town of Polesworth. With approved planning for five modern, two-storey one-bedroom homes and an additional coach house apartment, this property provides a lucrative opportunity to tap into the growing rental market amidst an affluent community. The location ensures easy access to key transport routes, perfect for commuting professionals or aspiring urban households.
While the site benefits from a semi-rural feel and an average crime rate, it's essential to consider that some groundwork is still in progress. Nevertheless, with the foundations already laid for two of the plots, the property is poised for swift development, allowing you to realize its full potential quickly. Don’t miss this chance to secure a promising investment in an area that boasts both charm and growth potential—ideal for those seeking exclusivity and comfort in their next project.
Plot for sale in Park Avenue, Nuneaton, CV11 — £379,950 • 1 bed • 1 bath
Plot for sale in Jean Street, Baddesley Ensor,CV11, CV9 — £300,000 • 1 bed • 1 bath • 3364 ft²
Plot for sale in Bonehill Road, Tamworth, B78 — £750,000 • 1 bed • 1 bath
5 bedroom detached house for sale in Station Road, Polesworth, Tamworth, Warwickshire, B78 — £495,000 • 5 bed • 4 bath • 1807 ft²
6 bedroom detached house for sale in Whitehouse Road, Tamworth, Staffordshire, B78 — £465,000 • 6 bed • 3 bath • 1675 ft²
Land for sale in Tamworth Road, Dosthill, Tamworth, Staffordshire, B77 — £250,000 • 1 bed • 1 bath










































