CV9 2EA - Plot for sale in Jean Street, Baddesley Ensor,CV11, CV9

View on Property Piper

Plot for sale in Jean Street, Baddesley Ensor,CV11, CV9

Summary - 1A, JEAN STREET CV9 2EA

1 bed 1 bath Plot

**Standout Features:**
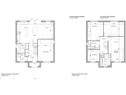
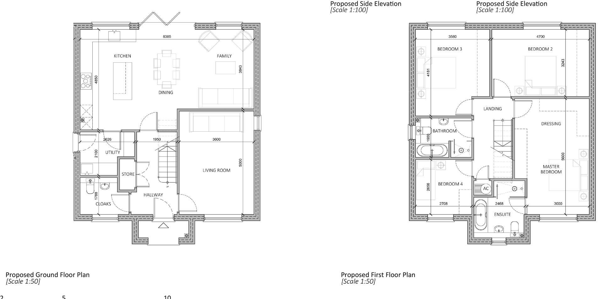
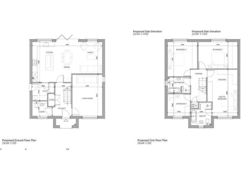
- **Planning Permission:** Full planning permission for the construction of two four-bedroom detached homes.
- **Spacious Plots:** Plot 1: 1,673 sqft; Plot 2: 1,691 sqft.
- **Great Location:** Easy access to Midlands road networks; approx. 3 miles from Atherstone with its railway station and amenities.
- **Freehold Tenure:** Immediate vacant possession upon completion.
- **Low Crime Rate:** Situated in a small town with a community atmosphere.
- **Ideal for Families:** Close to various "Good" rated schools and local amenities.

**Concise Summary:**
Discover a prime development opportunity with two generously sized plots in the tranquil village of Baddesley Ensor. With full planning permission already granted, envision the construction of two contemporary four-bedroom detached homes that capitalize on the area's serene environment and commuter-friendly location. Each plot is well over 1,600 square feet, offering flexibility for spacious living and tasteful design. While the area thrives with low crime rates and solid local schools, it retains a quaint charm that families and investors alike will appreciate.

This locale boasts a good mix of local shops, a community center, and scenic views, enhancing its attractiveness for future residents. Interested parties will appreciate the opportunity to build their dream homes or invest in a promising development site. Don’t miss out on this unparalleled chance to shape a key property in a rising neighborhood.

Property Details

Brochure Descriptions

Image Descriptions

Floorplan Description

Rooms

Textual Property Features

Detected Visual Features

Nearby Schools

Nearest Bars And Restaurants

,,,,}

Nearest General Shops

,,}

Nearest Grocery shops

,,}

Nearest Supermarkets

,,}

Nearest Religious buildings

,,}

Nearest Medical buildings

,,,}

Nearest Airports

,}

Nearest Leisure Facilities

,,,,}

Nearest Tourist attractions

,,}

Nearest Train stations

,,,,}

Nearest Bus stations and stops

,,,,}

Nearest Hotels

,,}

Tags

Local Market Stats

Similar Properties

Meta

High Res Images

Compatible Images

Low res Images

Thumbnails

Raw Images

High Res Floorplan Images

Compatible Floorplan Images

Low res Floorplan Images

FloorplanImages Thumbnail

Raw Floorplan Images