SE19 1XD - 6 bed spacious dulwich family home in Dulwich And West Norw…

View on Property Piper

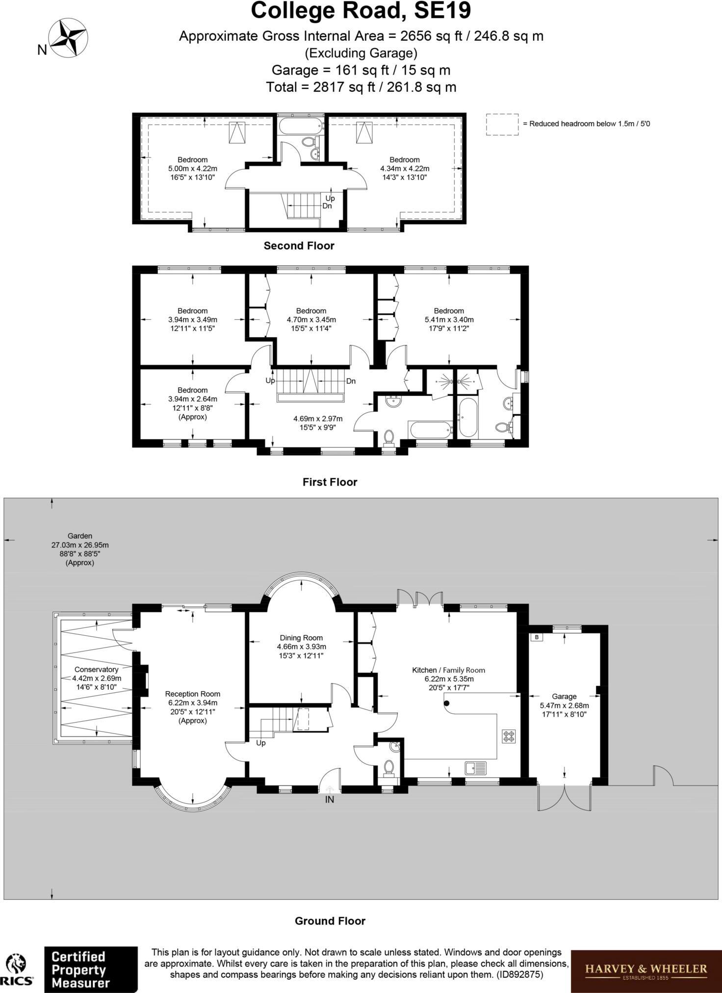
6 bedroom detached house for sale in College Road, Dulwich, SE19

Summary - 124 College Road SE19 1XD

6 bed 3 bath Detached

Large garden, garage and scope to extend near top schools and stations.
Six double bedrooms and three bathrooms including en suite
A substantial double-fronted detached house on College Road offering generous, flexible living across three floors — ideal for growing families wanting space and scope. The house has been well cared for and already provides six double bedrooms, three bathrooms (one en suite), two reception rooms plus a conservatory and a large open-plan kitchen/family room that opens onto a wide, mature rear garden and paved terrace.

Practical benefits include a private driveway, garage and excellent local transport links — Sydenham Hill and Gipsy Hill stations are both very close — and easy access to several sought-after schools. The plot is notably wide with potential to enhance or extend (subject to planning permission), so there is clear long-term value for buyers wanting to increase living space or modernise layouts.

Buyers should note some material considerations: the EPC is rated E and the property sits in Council Tax Band G, so running costs may be higher than average. The building dates from 1959 and external cavity walls are assumed to be uninsulated, so buyers wanting improved energy performance should allow for insulation and other upgrades. While well maintained, the house offers significant scope for modernisation and energy improvements.

Overall, this is a rare, roomy family home in a highly convenient Dulwich location. It will suit purchasers seeking immediate space with the possibility to personalise and extend, rather than those wanting a fully refurbished turnkey property.

Property Details

Image Descriptions

Floorplan Description

Rooms

Textual Property Features

Target Audience

AI Tags

Detected Visual Features

EPC Details

Nearby Schools

Nearest Bars And Restaurants

,,,,}

Nearest General Shops

,,}

Nearest Grocery shops

,,}

Nearest Supermarkets

,,}

Nearest Religious buildings

,,}

Nearest Medical buildings

,,,}

Nearest Airports

,,}

Nearest Leisure Facilities

,,,,}

Nearest Tourist attractions

,,}

Nearest Train stations

,,,,}

Nearest Bus stations and stops

,,,,}

Nearest Hotels

,,}

Tags

Local Market Stats

AirBnB Data

Similar Properties

Meta

High Res Images

Compatible Images

Low res Images

Thumbnails

Raw Images

High Res Floorplan Images

Compatible Floorplan Images

Low res Floorplan Images

FloorplanImages Thumbnail

Raw Floorplan Images