Spacious character home moments from town and station.
Bay-fronted living room with period features
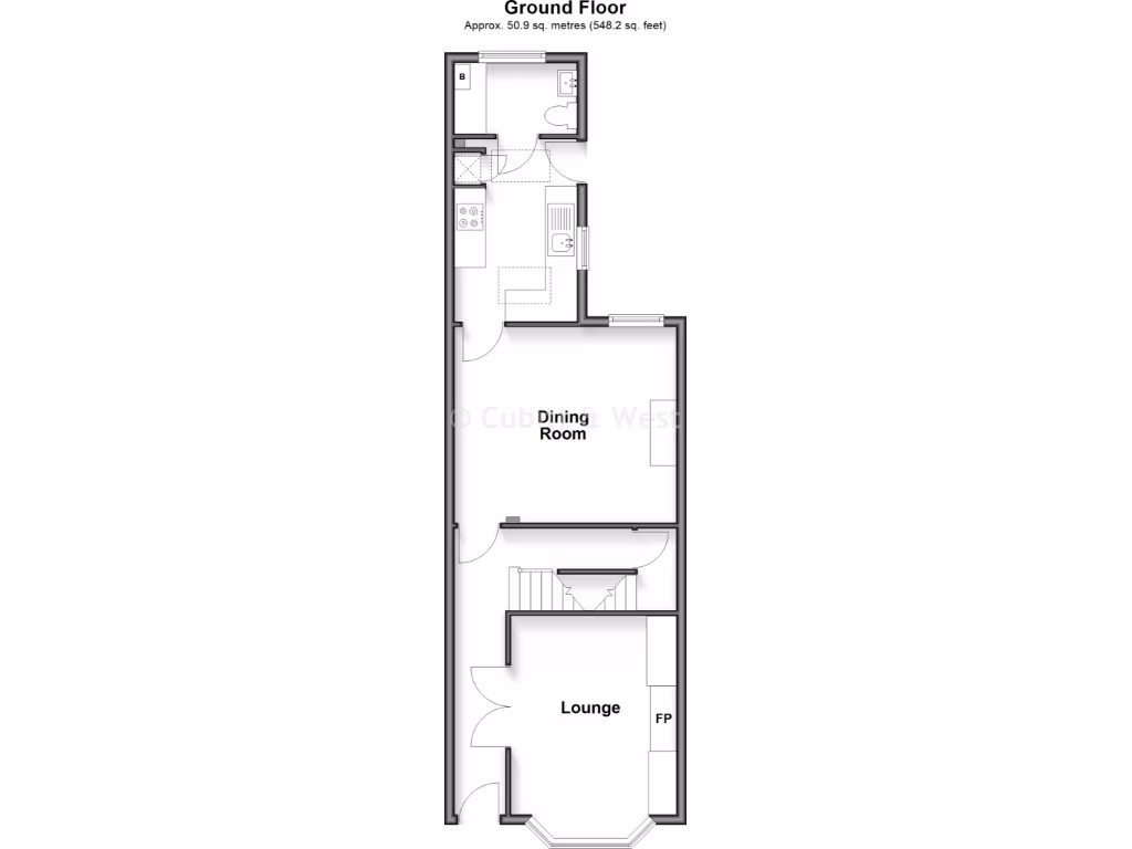
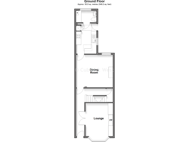
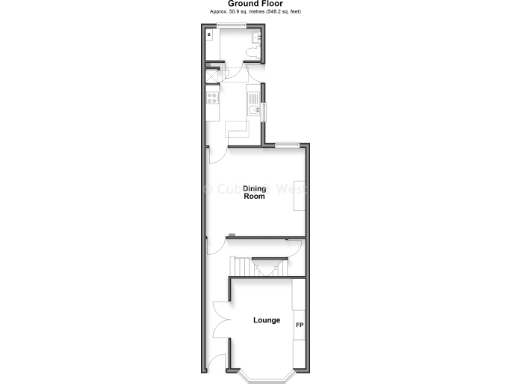
This Victorian mid-terrace blends original period detail with contemporary living across four floors. The bay-fronted living room, high ceilings and exposed brick fireplace give strong character, while a modern fitted kitchen and separate utility add everyday practicality. Three double bedrooms provide generous family accommodation and the property totals over 1,350 sq ft.
Outside, a private, secluded rear garden with gated access offers a calm outdoor space despite the small plot size. The house benefits from double glazing (post-2002), mains gas central heating and handy cellar and eaves storage. Its location is a key strength — a short walk to Dorking town centre and the mainline station, plus well-rated local schools and fast broadband.
Important practical points: the building is solid-brick (original construction) and is assumed to lack wall insulation, so upgrading thermal efficiency may be needed. There is a single bathroom serving three bedrooms, council tax is above average, and the immediate area records higher crime levels than average. Viewings are recommended for buyers who value period character and space close to transport links, and who are comfortable with potential retrofit or improvement works.
3 bedroom terraced house for sale in Vincent Road, Dorking, Surrey, RH4 — £396,500 • 3 bed • 1 bath • 1475 ft²
3 bedroom semi-detached house for sale in Howard Road, Dorking, RH4 — £799,950 • 3 bed • 1 bath • 1661 ft²
3 bedroom semi-detached house for sale in Falkland Road, Dorking, Surrey, RH4 — £525,000 • 3 bed • 1 bath • 911 ft²
2 bedroom semi-detached house for sale in Falkland Road, Dorking, Surrey, RH4 — £485,000 • 2 bed • 1 bath • 1038 ft²
3 bedroom terraced house for sale in Hart Road, Dorking, RH4 — £499,950 • 3 bed • 1 bath • 667 ft²
3 bedroom semi-detached house for sale in Hart Road, Dorking, RH4 — £575,000 • 3 bed • 1 bath • 1862 ft²






























































































