Spacious three-bedroom retirement home near Dorking station and town centre.
Bay-fronted living room with original Victorian features
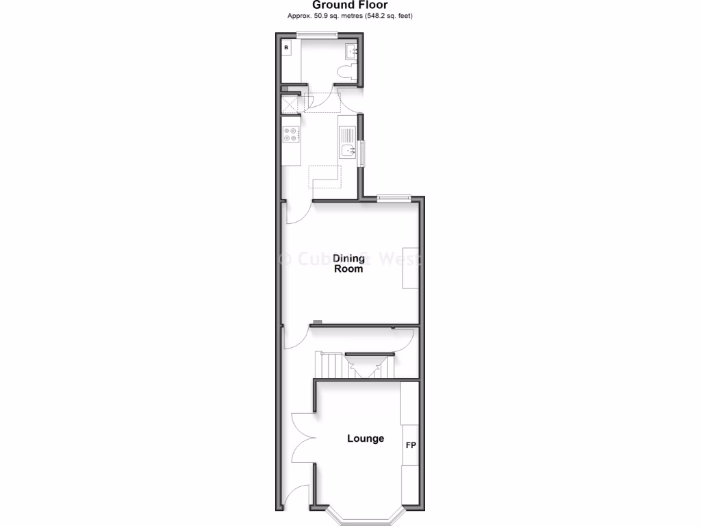
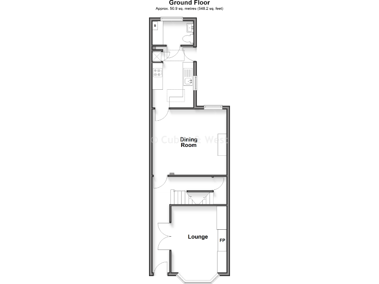
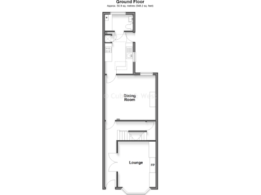
This bay-fronted Victorian terrace blends period character with contemporary updates across four floors, offering generous room sizes and a secluded rear garden. The living room's large bay window, separate dining room with exposed brick fireplace, and cellar provide versatile living and storage. The modern fitted kitchen, integral appliances and separate utility add everyday convenience while double glazing and gas central heating keep the home comfortable.
The property is offered with a Homewise Home for Life Lifetime Lease example price of £396,500 for buyers aged 60+, versus a full market value of £600,000; actual Lifetime Lease cost depends on age and circumstances and can secure up to a 50% share. The tenure is freehold and the house is suitable as a retirement/downsizing home close to Dorking town centre, shops and mainline station.
Practical points to note: the house sits on a small plot with gated rear access, has a single bathroom, and solid brick walls likely without cavity insulation. Local crime levels are reported as high and council tax is above average, so buyers should factor these into budgets. All measurements, tenure and historic works should be verified by your solicitor before purchase.
1 bedroom ground floor maisonette for sale in Dene Street, Dorking, Surrey, RH4 — £165,500 • 1 bed • 1 bath • 420 ft²
3 bedroom semi-detached house for sale in Chalkpit Terrace, Dorking, Surrey, RH4 — £380,000 • 3 bed • 1 bath • 701 ft²
2 bedroom flat for sale in Station Road, Dorking, Surrey, RH4 — £105,500 • 2 bed • 1 bath • 571 ft²
3 bedroom semi-detached house for sale in Howard Road, Dorking, RH4 — £799,950 • 3 bed • 1 bath • 1661 ft²
2 bedroom apartment for sale in High Street, Dorking, Surrey, RH4 — £198,500 • 2 bed • 1 bath • 636 ft²
3 bedroom maisonette for sale in Horsham Road, South Holmwood, Dorking, Surrey, RH5 — £195,000 • 3 bed • 1 bath • 448 ft²






























































































