**Standout Features:**
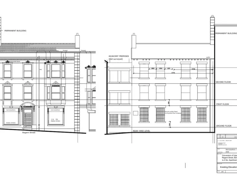
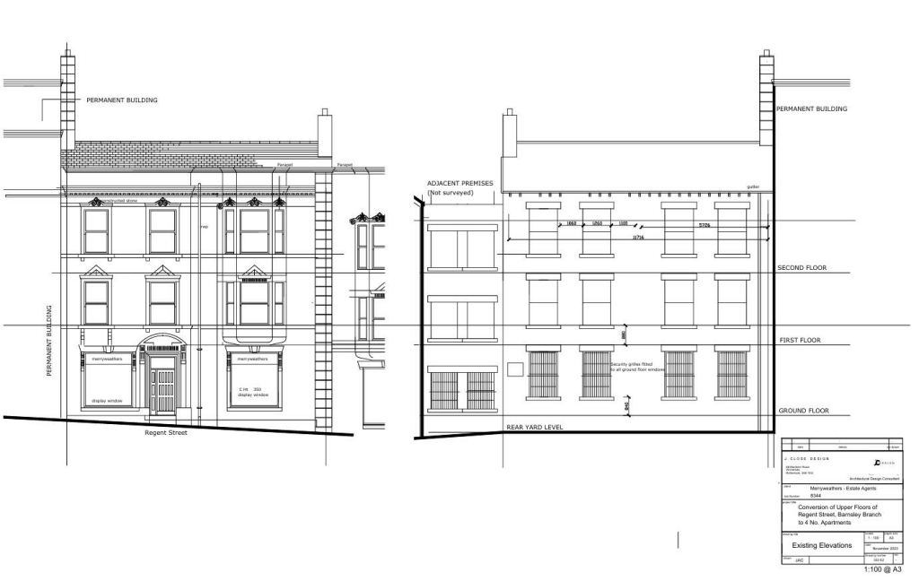
- **Prominent Town Centre Location:** Situated on Regent Street in Barnsley, this property benefits from high visibility and accessibility.
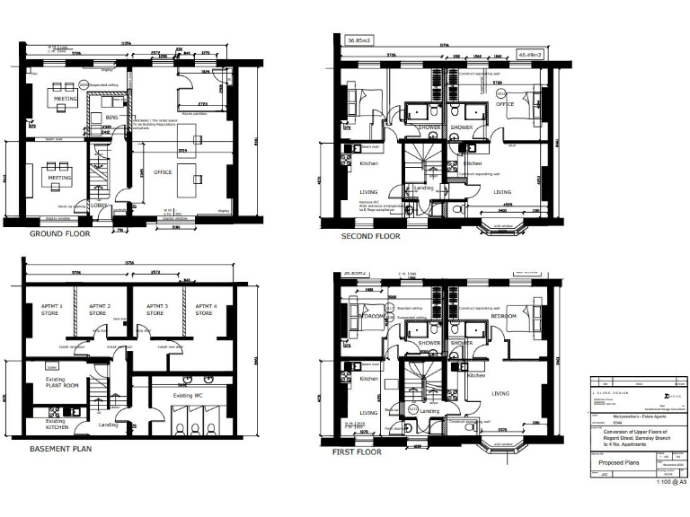
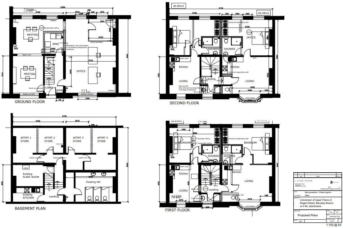
- **Planning Permission:** Outline planning consent has been granted to convert the upper floors into four one-bedroom apartments and utilize the ground floor for two offices (Application Number: 2024/0114).
- **Spacious:** The property encompasses approximately 3,813 sq ft, featuring high ceilings and traditional Victorian architectural details, providing impressive renovation potential.
- **Freehold Tenure:** Offers flexible ownership options for potential buyers.
- **Basement Utility Space:** Includes a kitchen area, toilet facilities, and a boiler room in the basement.
**Notable Concerns:**
- **Listed Status:** Being a listed building may pose challenges for renovations and adaptations.
- **High Crime Rate:** The area experiences a notably high crime rate, which potential investors or buyers should consider.
- **Current State:** While the building features a classic facade and structure, interior spaces may require substantial renovation depending on intended use.
**Summary Description:**
This impressive three-storey listed commercial property in Barnsley Town Centre offers an exceptional redevelopment opportunity with outline planning permission to transform the upper floors into four one-bedroom residential apartments and the ground floor into dual office spaces. The Victorian architecture, highlighted by high ceilings and decorative façades, ensures a charming character, while the strategic location boasts proximity to a range of retail, dining, and transport amenities. Investors and developers may find significant value in the potential for rental income and enduring local demand. However, it's important to note the complexities of listed building status and the high crime rate in the vicinity. Priced at £275,000, this is a unique chance to capitalize on a prime location in a vibrant market town. Don't miss out on this potential gem!
Commercial property for sale in Doncaster Road, Barnsley, S70 — £110,000 • 1 bed • 1 bath • 840 ft²
Commercial property for sale in Doncaster Road, Barnsley, S70 — £180,000 • 1 bed • 1 bath • 2385 ft²
Office for sale in Regent Street, Barnsley, South Yorkshire, S70 2EG, S70 — £265,000 • 1 bed • 1 bath • 2200 ft²
Shop for sale in Market Street, Barnsley, S70 — £99,999 • 1 bed • 1 bath • 857 ft²
Commercial property for sale in 31-33 Church Street, Barnsley, South Yorkshire, S70 2AH, S70 — £390,000 • 1 bed • 1 bath
Commercial property for sale in Racecommon Road, Barnsley, S70 — £120,000 • 1 bed • 1 bath • 873 ft²






































































































