YO24 2SU - 4 bed spacious four bedroom detached in Crummock, YO24 2SU

View on Property Piper

4 bedroom detached house for sale in Crummock, York, YO24

Summary - 1 CRUMMOCK YORK YO24 2SU

4 bed 1 bath Detached

Bright garden-facing living with garage and driveway, close to top-rated schools.
Detached four-bedroom family home in a quiet cul-de-sac
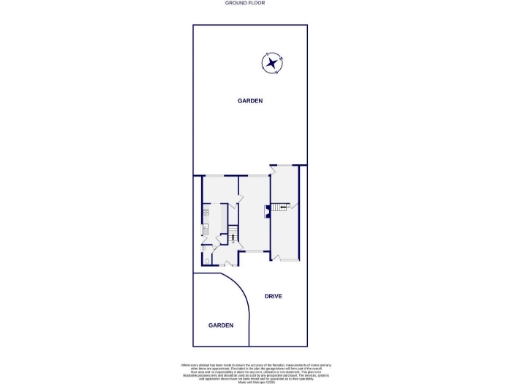
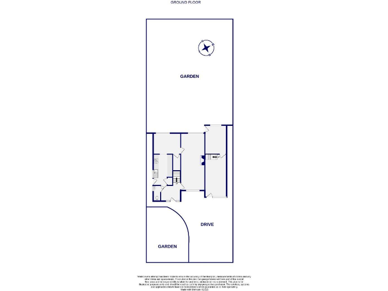
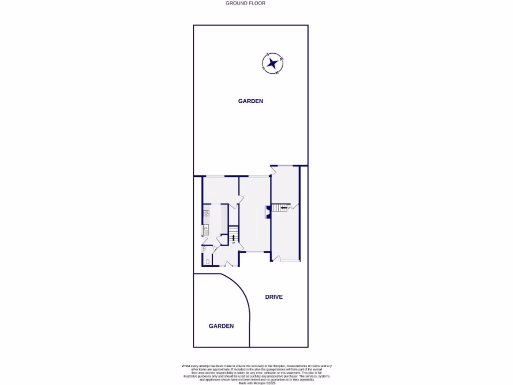
Set on a quiet cul-de-sac in sought-after Woodthorpe, this four-bedroom detached house offers practical family living with generous indoor and outdoor space. The ground floor includes a bright living room, separate dining area, study and a modern kitchen, arranged for everyday family routines and home working. The rear garden is established and private, ideal for children and summer entertaining, with a driveway and single garage for convenient parking and storage.

Upstairs are four well-proportioned bedrooms served by a single modern shower room. The house dates from the late 1960s–1970s and benefits from double glazing and gas central heating, but some internal areas show dated décor and will suit buyers seeking light refurbishment to modernise finishes. The property offers scope to adapt rooms or update fittings to add value.

Practical considerations: council tax band E and local crime levels are above average for the area. EPC is currently TBA and some windows and internal finishes predate 2002, so budget for further energy or cosmetic improvements if required. For families prioritising space, schools and a peaceful street, this home presents solid potential in a desirable suburb.

Property Details

Brochure Descriptions

Image Descriptions

Floorplan Description

Rooms

Textual Property Features

Target Audience

AI Tags

Detected Visual Features

EPC Details

Nearby Schools

Nearest Bars And Restaurants

,,,,}

Nearest General Shops

,,}

Nearest Grocery shops

,,}

Nearest Supermarkets

,,}

Nearest Religious buildings

,,}

Nearest Medical buildings

,,,}

Nearest Airports

}

Nearest Leisure Facilities

,,,,}

Nearest Tourist attractions

,,}

Nearest Train stations

,,,,}

Nearest Bus stations and stops

,,,,}

Nearest Hotels

,,}

Tags

Local Market Stats

AirBnB Data

Similar Properties

Meta

High Res Images

Compatible Images

Low res Images

Thumbnails

Raw Images

High Res Floorplan Images

Compatible Floorplan Images

Low res Floorplan Images

FloorplanImages Thumbnail

Raw Floorplan Images