Elevated four-bedroom home with huge gardens, estuary views and renovation potential.
South-facing terrace and balcony with panoramic estuary views
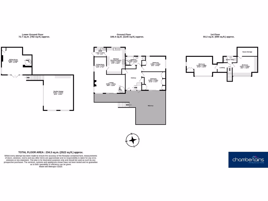
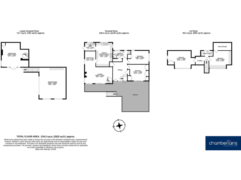
Set on an elevated plot with sweeping estuary and countryside views, this detached four-bedroom house offers versatile family living across multiple levels. The principal living room opens onto a large south-facing terrace and balcony, providing panoramic sunlight and an excellent space for outdoor entertaining. An additional sitting room at driveway level, with its own external access, offers scope for a home office, annexe or downstairs reception.
The home includes a modern-style kitchen/breakfast room, utility and separate dining area, plus a double garage and sweeping driveway. Extensive gardens to the front and rear include an orchard and areas of woodland, giving privacy and strong outdoor appeal for families and gardeners. Broadband speeds are reported ultrafast (up to 1000Mbps), and local primary schools include highly rated options close by.
Practical considerations are clear: heating is via warm-air mains gas vents (an older system), drainage is to a septic tank, and the property carries an EPC of E. The house, built in the mid-20th century with 1970s dormer features, shows good solid bones but offers clear potential for modernisation and improvement, particularly to raise energy performance and update some internal fittings.
For buyers seeking generous indoor/outdoor space, privacy and exceptional views within a very affluent, low-crime area, this home delivers rare plot size and flexible accommodation. Investors or families should factor in renovation costs, potential heating updates and ongoing maintenance of the large gardens and septic system.
4 bedroom detached house for sale in Holcombe Road, Teignmouth, TQ14 — £750,000 • 4 bed • 3 bath • 1917 ft²
4 bedroom detached house for sale in Long Lane, Shaldon, Devon, TQ14 — £750,000 • 4 bed • 2 bath • 1847 ft²
3 bedroom detached house for sale in Higher Holcombe Road, Teignmouth, TQ14 — £475,000 • 3 bed • 2 bath • 1390 ft²
5 bedroom detached house for sale in Larch Close, Teignmouth, TQ14 — £590,000 • 5 bed • 2 bath • 2116 ft²
5 bedroom detached house for sale in Ham Lane, Shaldon, Devon, TQ14 — £1,000,000 • 5 bed • 5 bath • 2884 ft²
4 bedroom detached house for sale in Manor Mead, Bickington, Newton Abbot, Devon, TQ12 — £695,000 • 4 bed • 2 bath • 2535 ft²


























































































































