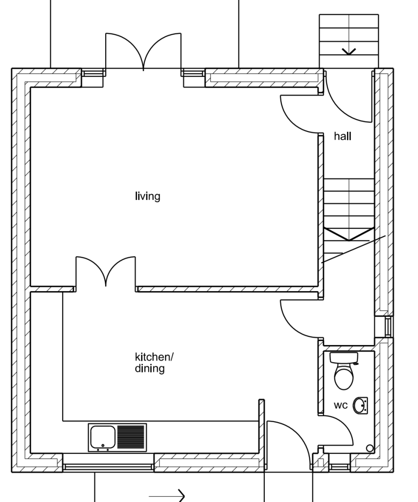
**Standout Features:**
- **Planning Permission**: Securely approved for a three-bedroom detached home.
- **Affordable Plot**: Priced at just £45,000, allowing for a cost-effective self-build experience.
- **Family-Friendly Location**: Situated in Great Clifton, with schools, shops, parks, and a pub within a 5-minute walk.
- **Spacious Layout**: Plans include a large lounge, kitchen/diner, downstairs WC, and two double bedrooms (one ensuite).
- **Convenient Transport**: Easy access to Workington and Cockermouth; regular bus service available.
**Potential Downsides:**
- **Unconventional Location**: Nestled between an ex-council semi-detached house and a church, which may not appeal to everyone.
- **No Garage Space**: Off-street parking available, but no designated garage.
Seize the opportunity to design your ideal family haven on this affordable and well-located plot in Great Clifton. With planning permission already secured for a thoughtfully designed three-bedroom home, you can bypass the lengthy paperwork and embark on a manageable self-build project that’s perfect for first-time builders or small developers. The home is positioned in a scenic village, just a short walk from a "Good" rated primary school, local amenities, and beautiful countryside. With the flexibility to tailor your new home to your preferences, this is a unique chance to create a space that blends comfort, community, and convenience. Act fast—properties like this at such a competitive price won’t last long!
Plot for sale in Gilgarran, Workington, CA14 — £120,000 • 4 bed • 2 bath • 883 ft²
Plot for sale in Self-Build Bungalows, Bonny Meadows, Moresby Parks, CA28 — £125,000 • 1 bed • 1 bath • 1308 ft²
Plot for sale in Plot 13 Self-Build Bungalows, Bonny Meadows, Moresby Parks, CA28 — £125,000 • 1 bed • 1 bath • 1441 ft²
3 bedroom semi-detached house for sale in Mabel Wood Close, Great Clifton, CA14 — £195,000 • 3 bed • 2 bath • 876 ft²
Plot for sale in Plot 19, Self Build House, Bonny Meadows, Moresby Parks, CA28 — £135,000 • 1 bed • 1 bath • 5618 ft²
Plot for sale in Great Broughton, Cockermouth, Cumbria , CA13 0DE, CA13 — £140,000 • 1 bed • 1 bath


















